لوگو رسانه جهان معماری

ساختمان مسکونی گلدیس – استودیو پیمان گردان

ساختمان مسکونی گلدیس

پیمان گردان

استان تهران

ساختمان مسکونی گلدیس

پیمان گردان

استان تهران

ویدیو
ویدیو و انیمیشنی برای نمایش وجود ندارد
دیاگرام های طراحی
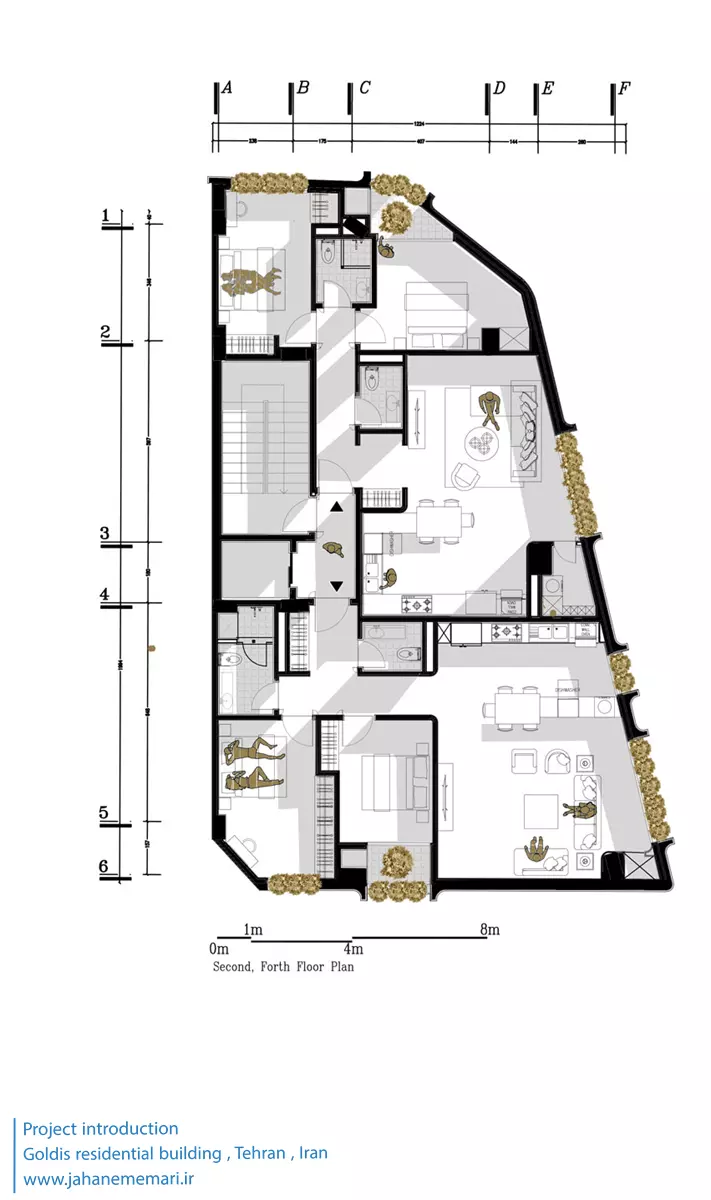
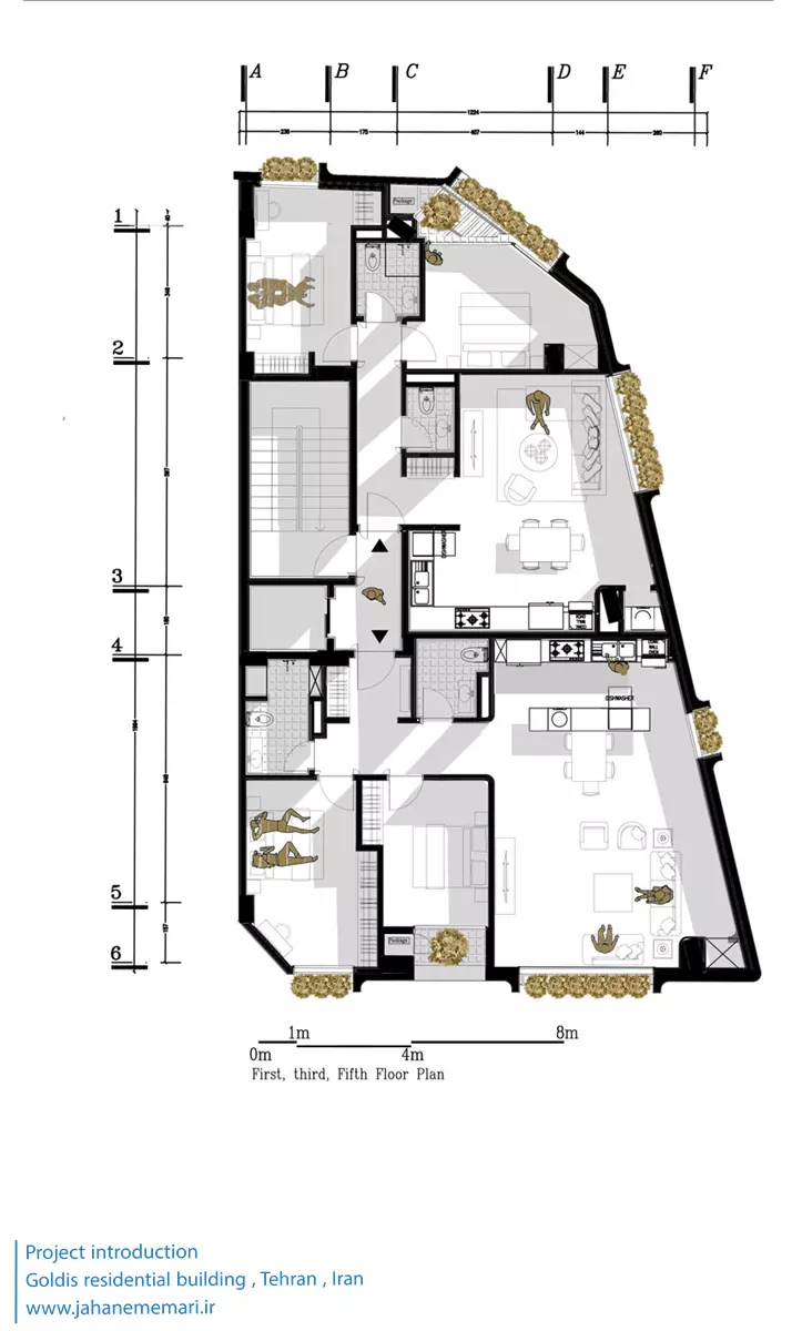
پلان و نما
مقاطع و جزییات

این پروژه فاقد مدارک مقاطع و جزییات اجرایی می باشد.

اطلاعات پروژه
نام پروژه :
ساختمان مسکونی گلدیس
موقعیت پروژه :
استان تهران
آدرس پروژه :
ایران، تهران، مرزداران، خیابان کمالو، نبش گلدیس سوم
شرکت مشاور :
استودیو پیمان گردان
معمار مسئول :
پیمان گردان
تیم طراحی :
آرین ابوالفضلی
تاریخ آغاز پروژه :
1404
تاریخ پایان پروژه :
1404
مساحت زمین ( متر مربع ) :
335
مساحت زیر بنا ( متر مربع ) :
1700
دسته بندی کاربری :
مسکونی
تیم اجرایی :
شراره ناصری، مهدی طاهری، مهدی محمود پور
كارفرما :
آقای حسینیان
عکاسی پروژه :
محمد حسن اتفاق
توضیحات فارسی

توضیحات پروژه

این پروژه بازطراحی یک خانه ۳۰ ساله در منطقه ی مرزداران تهران است که علاوه بر محل سکونت، شامل یک سوپرمارکت در نبش بنا بود. با مستقل شدن اعضای خانواده، ساختمان جدید به‌صورت مشارکتی در ۵ طبقه ۲ واحدی در هر طبقه طراحی و بخش تجاری نیز حفظ شد.
در روند طراحی پروژه برای کاهش تداخل فضای تجاری با سکونت، ورودی آن به کوچه شمالی منتقل شد. در فرم پروژه  با ایجاد فضاهای منفی و نیمه‌باز تلاش شده، ارتباطی پویا میان داخل و خارج ساختمان برقرار و حضور سبزینگی در زندگی ساکنان تقویت ‌شود.
یک پوسته سنگی ممتد، انسجام بصری نما را حفظ کرده و متریال‌های خنثی، گیاهان را به نقطه کانونی طراحی تبدیل کرده‌اند. استفاده کنترل‌شده از چوب در بالکن‌ها نیز حس گرما و صمیمیت را افزایش داده است.
این پروژه با رویکردی ساده و منسجم، میان معماری، سبزینگی و زندگی روزمره پیوندی پایدار ایجاد کرده و هویتی جدید به این خانه قدیمی بخشیده است.

جهت دسترسی به پروژه های بیشتر به این صفحه از سایت مراجعه کنید.

English Description
There is no description for this item

نظرات پست

یک دیدگاه بنویسید

آدرس ایمیل شما منتشر نخواهد شد

” تمامی حقوق مادی و معنوی محتوا متعلق به پایگاه خبری جهان معماری می باشد “