- خانه
- معرفی پروژه
- پروژه های داخلی
- ساختمان مسکونی گلدیس – استودیو پیمان گردان

































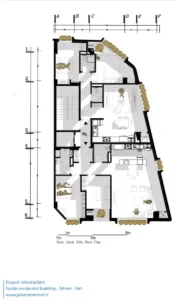
این پروژه بازطراحی یک خانه ۳۰ ساله در منطقه ی مرزداران تهران است که علاوه بر محل سکونت، شامل یک سوپرمارکت در نبش بنا بود. با مستقل شدن اعضای خانواده، ساختمان جدید بهصورت مشارکتی در ۵ طبقه ۲ واحدی در هر طبقه طراحی و بخش تجاری نیز حفظ شد.
در روند طراحی پروژه برای کاهش تداخل فضای تجاری با سکونت، ورودی آن به کوچه شمالی منتقل شد. در فرم پروژه با ایجاد فضاهای منفی و نیمهباز تلاش شده، ارتباطی پویا میان داخل و خارج ساختمان برقرار و حضور سبزینگی در زندگی ساکنان تقویت شود.
یک پوسته سنگی ممتد، انسجام بصری نما را حفظ کرده و متریالهای خنثی، گیاهان را به نقطه کانونی طراحی تبدیل کردهاند. استفاده کنترلشده از چوب در بالکنها نیز حس گرما و صمیمیت را افزایش داده است.
این پروژه با رویکردی ساده و منسجم، میان معماری، سبزینگی و زندگی روزمره پیوندی پایدار ایجاد کرده و هویتی جدید به این خانه قدیمی بخشیده است.
جهت دسترسی به پروژه های بیشتر به این صفحه از سایت مراجعه کنید.
” تمامی حقوق مادی و معنوی محتوا متعلق به پایگاه خبری جهان معماری می باشد “