- خانه
- معرفی پروژه
- پروژه های داخلی
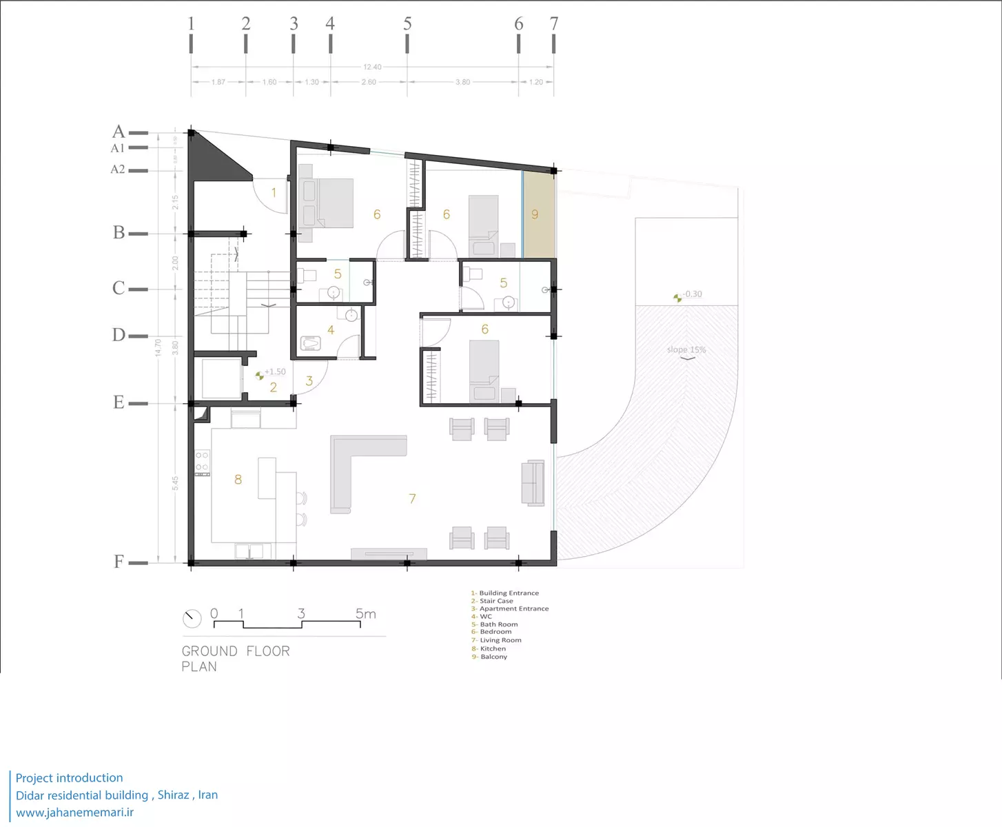
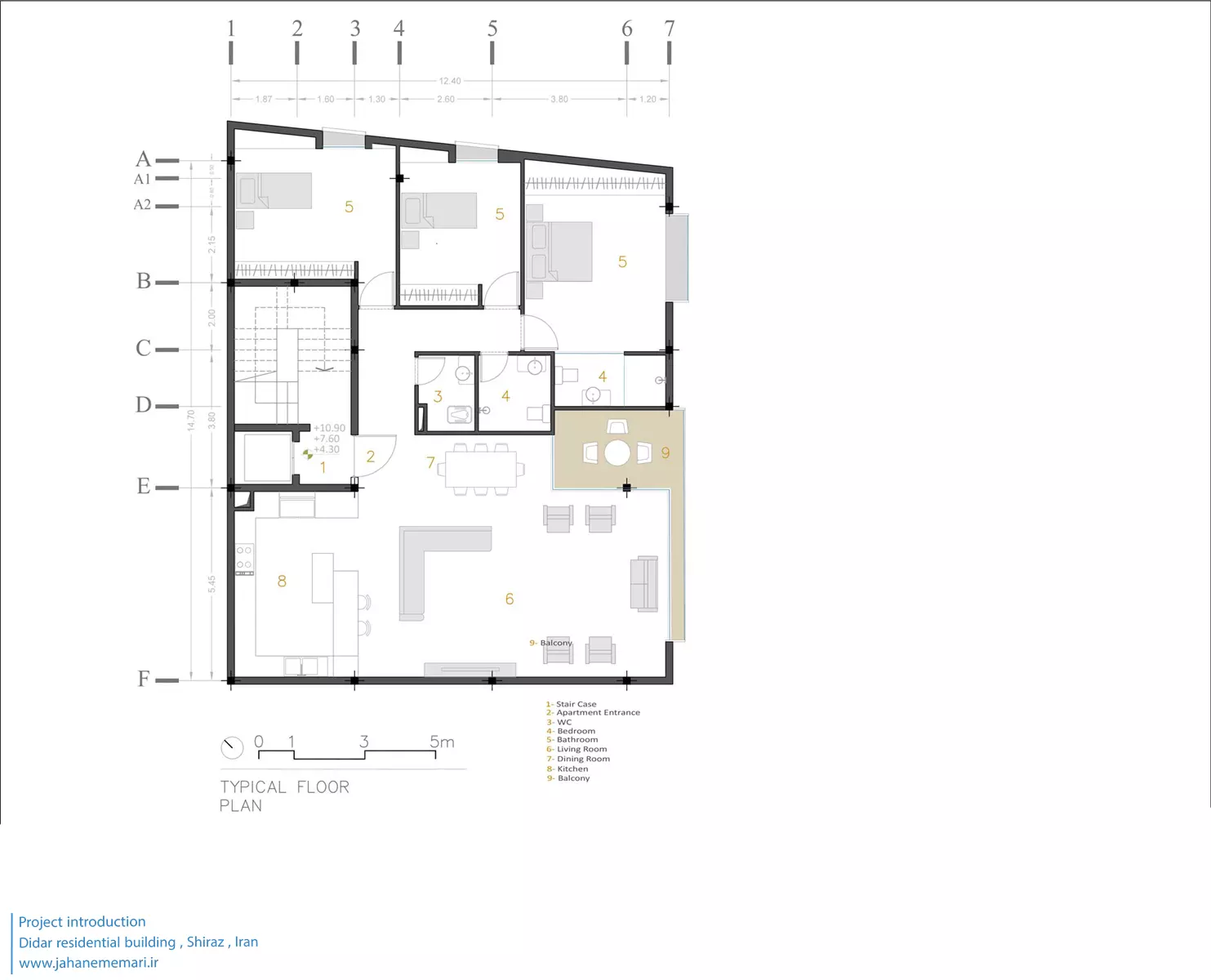
- ساختمان مسکونی دیدار – مان آفیس































دیدار؛ مرز درون و بیرون.
دیدار از گونه از پروژه های میان بافتی (infill) می باشد که عموما شهرها با این گونه پروژه ها شکل گرفته اند. در این پروژه تلاش کردیم پاسخ متفاوتی به این گونه از آپارتمانهای مسکونی بدهیم که عموما درگیر رویکردهای سختگیرانه اقتصادی هستند.
در شهرهای ما زندگی واقعی در فضاهای خصوصی جریان دارد و فضاهای عمومی منتج از قوانین اجتماعی سختگیرانه، فاصله زیادی با نیازها و واقعیت های زندگی امروزه دارند. این پروژه تلاش می کند با استفاده از تایپولوژی هایی از بازشو، تراس و حرکت جعبه های فضایی این مرزها را به چالش بکشد. همچنین ماهیت زندگی در آپارتمان ها نیاز جدی ایجاد کرده که درون خانه ها با شهر دارای ارتباط باشند و تا حد امکان شفاف تر شوند و این شفافیت واکنشی به صلبیت گونه های متداول است.
این پروژه به لحاظ توده گذاری به صورت موازی با کوچه قرار گرفته و توده و حیاط در ارتباط درجه اولی با فضای شهرقرار دارند. تلاش کردیم در قسمت توده مشرف به کوچه جانمایی بازشوها از پروجکت کردن درختان کهنسال بر روی نما ایجاد شود به نحوی که باعث رمز آلود شدن و ایجاد حس درونگرایی در قسمتهای خصوصی تر پروژه شود و همچنین ارتباط بی واسطه با درختان حفظ گردد. در فضاهایی که به سمت حیاط بودند با حداکثر شفافیت عمل کردیم و با چیدمان و حرکت جعبه های فضایی و بیرون زدن این جعبه ها بر شفافیت تاکید کردیم و این امکان را به ساکنین دادیم که در مرزهای ملتهب درون و بیرون حس تعلیق را تجربه کنند. در معماری پروژه به دنبال ایجاد بافتی ساده و در عین حال متفاوت از به کارگیری مصالح متداول بودیم و از سنگ خام در ابعاد متغیر و چیدمان غیر منظم استفاده کردیم وتلاش کردیم با بکارگیری جزییات معماری لایه غنی تر به پروژه بیافزاییم.
جهت دسترسی به پروژه های بیشتر به این صفحه از سایت مراجعه کنید.
” تمامی حقوق مادی و معنوی محتوا متعلق به پایگاه خبری جهان معماری می باشد “