- خانه
- معرفی پروژه
- پروژه های خارجی
- موزه هنر کیمبل | Kimbell Art Museum




















معمار: Louis Kahn
سال: 1972
شهر: فورت وُرث
کشور: ایالات متحده آمریکا
عکاس: Zereshke, Andreas Praefcke
توضیحات پروژه ارائهشده توسط معماران: (متن ترجمه شده از انگلیسی)
موزهٔ هنر کیمبل که در شهر فورت وُرثِ ایالت تگزاس واقع شده و توسط لویی کان طراحی شده است، به یکی از زیارتگاههای مهم برای علاقهمندان به معماری مدرن تبدیل شده است. عنصر نور طبیعی، محور اصلی طراحی این بنا را شکل میدهد و فضاهایی ظریف و سنجیده خلق میکند که بهطور کامل با آثار هنریِ درون خود سازگار هستند.
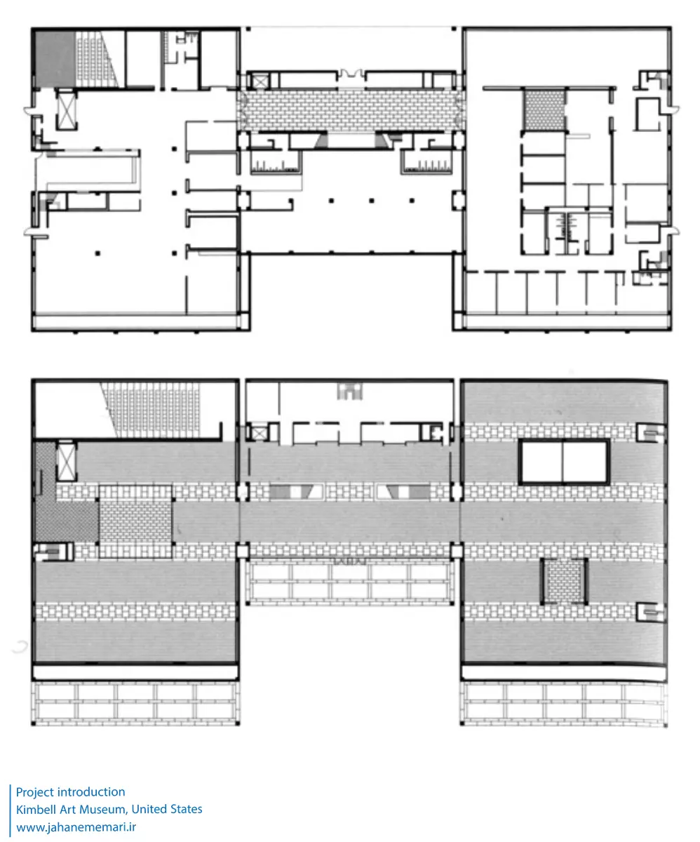
فرم شاخص طاقهای بشکهای سیکلوئیدیِ موزهٔ کیمبل، با نورگیرهای باریک پلکسیگلاسی در امتداد لبهها احاطه شده است که امکان نفوذ نور طبیعی به فضاهای داخلی را فراهم میکنند. برای پخش و کنترل این نور، بازتابدهندههایی از آلومینیوم سوراخدار، با فرمی شبیه به بال، در زیر نورگیرها معلق شدهاند. این عناصر با بازتاب نور بر سطح صاف طاقهای بتنی، شرایط نوری لطیف، یکنواخت و شاعرانهای را برای نمایش آثار هنری ایجاد میکنند.
نمای اصلی ساختمان در سمت غرب، از سه دهانهٔ ۱۰۰ فوتی تشکیل شده که هر یک با یک ایوانِ طاقدار بشکهای تعریف میشوند. ورودی مرکزی بنا با عقبنشینی از سطح نما و استفاده از شیشه، بهوضوح از سایر بخشها متمایز شده است. ساختمان همچنین با سه حیاط داخلی قطع میشود که امکان ورود نور بیشتر، جریان هوا و برقراری ارتباط میان فضاهای داخلی و خارجی را فراهم میکنند.
این بنا، با وجود نداشتن تزئینات و با تکیه بر جزئیات بازتفسیری، کاملاً مدرن است؛ بااینحال، نشانههایی از معماری روم باستان در قالب طاقها و قوسهای عظیم آن قابلتشخیص است. تحقق این فرمها با استفاده از بتن، سنگ تراورتن و چوب بلوط سفید ممکن شده است؛ متریالهایی که عناصر اصلی پروژه را تشکیل میدهند. اغلب گالریها در طبقهٔ فوقانی قرار گرفتهاند تا بیشترین بهره را از نور طبیعی ببرند. کانالهای هوا و تأسیسات مکانیکی در فضاهایی جانمایی شدهاند که لبههای طاقها به یکدیگر نزدیک میشوند.
کِی کیمبل و همسرش، ولمـا فولر، در سال ۱۹۳۵ «بنیاد هنر کیمبل» را بهعنوان یک مؤسسهٔ هنری بنیان نهادند. پس از درگذشت کیمبل در سال ۱۹۶۴، مجموعهای ارزشمند از آثار استادان قدیمی گردآوری شده بود و اموال او با هدف ساخت یک موزهٔ درجهیک به بنیاد واگذار شد. «بیانیهٔ سیاستگذاری»ای که توسط مدیر بنیاد، ریچارد براون، تدوین شد، دستورالعملهای روشنی را دربارهٔ طراحی ساختمان جدید بهعنوان یک اثر هنری تعیین میکرد.
براون تصریح کرد که «نور طبیعی باید نقشی حیاتی در طراحی ایفا کند» و در این راستا با معماران متعددی از جمله مارسل بروئر، میس ون در روهه، پیر لوییجی نِروی، گوردون بانشَفت و ادوارد لارَبی بارنز مصاحبه کرد. بااینحال، در اواخر سال ۱۹۶۶، این پروژه به لویی کان واگذار شد. این انتخاب بسیار سنجیده بود، چراکه براون همواره تحسینکنندهٔ تأکید کان بر نور طبیعی در معماری بود.
در سالهای بعد، معمار رنتسو پیانو برای طراحی یک ساختمان الحاقی به مجموعهٔ موجود انتخاب شد؛ سازهای که با هدف تأمین فضاهای گالری اضافی و کاربریهایی مانند کلاسهای آموزشی و استودیوها طراحی شده است.
سالن اجتماعات موزه از نظر آکوستیکی بسیار موفق و از نظر ابعاد قابلتوجه است. نکتهٔ جالب آنکه بسیاری از بازدیدکنندگان در گذشته از مسیری وارد ساختمان میشدند که کان آن را ورودی پشتی در سمت شرق تلقی میکرد. با اجرای طرح توسعهٔ جدید، ساختمان الحاقی و پارکینگ بهعنوان مانعی در برابر این مسیر عمل میکنند و بازدیدکنندگان را به سمت ورودی اصلی و از پیش طراحیشده هدایت میکنند. پروژهٔ جدید به ساختمان کان متصل نشده است، اما با احترام به مقیاس، پلان و متریال آن، در عین حال ویژگیهای بازتر و شفافتری را نیز مورد کاوش قرار میدهد.
جهت دسترسی به پروژههای بیشتر به این صفحه از سایت مراجعه کنید.
” تمامی حقوق مادی و معنوی محتوا متعلق به پایگاه خبری جهان معماری می باشد “