- خانه
- معرفی پروژه
- پروژه های خارجی
- موسسه مطالعات زیست شناسی سالک | Salk Institute




















معمار: Louis Kahn
سال: 1965
شهر: سندیگو
کشور: ایالات متحده آمریکا
عکاس: Liao Yusheng
توضیحات پروژه ارائهشده توسط معماران: (متن ترجمه شده از انگلیسی)
این مقاله نخستینبار در تاریخ ۲۷ اوت ۲۰۱۷ منتشر شد. برای مطالعهٔ روایتهای مربوط به دیگر پروژههای شاخص معماری، به بخش AD Classics مراجعه کنید.
در سال ۱۹۵۹، «جوناس سالک» ـ دانشمندی که واکسن فلج اطفال را کشف کرده بود ـ با «لویی آی. کان» برای طراحی یک پروژه تماس گرفت. شهر سندیگو در ایالت کالیفرنیا، سایتی چشمنواز در لا خویا و در امتداد ساحل اقیانوس آرام به سالک اهدا کرده بود؛ جایی که او قصد داشت یک مرکز پژوهشی زیستشناسی بنیانگذاری و احداث کند. سالک، که دستاورد علمیاش نقشی بنیادین در پیشگیری از این بیماری ایفا کرده بود، بهشدت تأکید داشت که طراحی این مجموعه باید به پیامدهای علوم برای بشریت بپردازد.
او در عین حال، دستورالعملی گستردهتر و در عین حال عمیقتر برای معمار منتخب خود مطرح کرد: «ساختن مجموعهای که شایستهٔ بازدید پیکاسو باشد.» نتیجهٔ این همکاری، «مؤسسهٔ سالک» بود؛ مجموعهای که هم بهواسطهٔ کارکرد عملکردی خود و هم به دلیل زیباییشناسی قدرتمندش ستایش شده است—و بهویژه بهخاطر نحوهای که این دو کیفیت یکدیگر را تقویت میکنند.
در کنار این خواستههای بلندپروازانه، سالک مجموعهای از الزامات عملی نیز مطرح کرد. فضاهای آزمایشگاهی باید باز، وسیع و بهراحتی قابل بهروزرسانی میبودند تا با پیشرفتهای علمی و فناوری همگام شوند. کل ساختمان باید ساده و بادوام طراحی میشد و نیاز به نگهداری حداقلی داشته باشد. در عین حال، فضا میبایست روشن، خوشایند و الهامبخش باشد؛ محیطی که پژوهشگران بتوانند در آن با انگیزه و تمرکز فعالیت کنند.
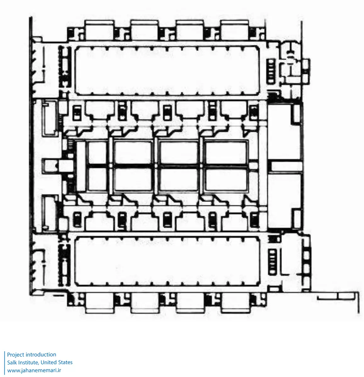
طرح کان برای مؤسسهٔ سالک، از نظر سازماندهی فضایی، شباهتی به یک صومعه دارد: جامعهای فکری و منزوی. سه بخش مجزا پیشبینی شده بود که همگی رو به اقیانوس در سمت غرب قرار میگرفتند: «خانهٔ گردهمایی»، «دهکده» و «آزمایشگاهها». خانهٔ گردهمایی قرار بود فضای اجتماعی و کنفرانسی بزرگی باشد و دهکده شامل واحدهای اقامتی شود؛ هر بخش نیز بهوسیلهٔ باغهای آبی از بخش مجاور خود جدا میشد. در نهایت، خانهٔ گردهمایی و دهکده از پروژه حذف شدند و تنها آزمایشگاهها به مرحلهٔ ساخت رسیدند.
آزمایشگاههای مؤسسهٔ سالک که در ابتدا بهصورت دو برج جداشده توسط یک باغ تصور شده بودند، در فرآیند طراحی به دو بلوک کشیده و موازی تبدیل شدند که در دو سوی یک میدان سنگفرششدهٔ مرکزی قرار دارند. این میدان مرکزی با مجموعهای از برجهای مستقل در لبهها تعریف میشود که پیشآمدگیهای مورب آنها امکان ایجاد پنجرههایی رو به غرب و بهسوی اقیانوس را فراهم میکند.
این برجها از طریق پلهای کوچک به بلوکهای مستطیلی آزمایشگاهی متصل شدهاند و عبور از شکافهای میان دو حیاط فرورفته را ممکن میسازند؛ حیاطهایی که نور طبیعی را به فضاهای پژوهشی زیرین هدایت میکنند. کان این حیاطها را نهتنها بهعنوان نورگیر، بلکه بهعنوان ارجاعی به صومعهٔ سنفرانسیس آسیزی در نظر گرفت—نمونهای که سالک پیشتر تحسین خود را نسبت به آن ابراز کرده بود.
بسیاری از تصمیمات طراحی کان در مؤسسهٔ سالک، از تجربههای او در پروژهٔ «آزمایشگاههای پژوهشی پزشکی ریچاردز» در دانشگاه پنسیلوانیا نشأت میگرفت. مشکلات تراکم و ازدحام در آن پروژه، کان را به سوی سازماندهی بازتر و بدون مانع در مؤسسهٔ سالک سوق داد. همچنین، نخستینبار در پنسیلوانیا بود که کان ایدهٔ جداسازی فضاهای پژوهشی از زیرساختهای تأسیساتی در ترازهای متفاوت را مطرح کرد—نوآوریای که در پروژهٔ سالک بهصورت کاملتری اجرا شد. تناوب طبقات آزمایشگاهی و تأسیساتی این امکان را فراهم میکند که تعمیرات و نگهداری ساختمان بدون ایجاد اختلال در فعالیتهای پژوهشی انجام شود.
مطابق دستور سالک، کان آزمایشگاهها را بهگونهای طراحی کرد که بهراحتی قابل ارتقا باشند. تیرهای سازهای به لبههای فضا محدود شدهاند تا انعطافپذیری بیشتری در بازچیدمان تجهیزات و فضاهای داخلی فراهم شود. سیستمهای مکانیکی پشت دیوارهای بلوکی قرار گرفتهاند، نه پشت بتن صلب، تا در زمان تعمیر یا نوسازی بتوان آنها را بهسادگی جابهجا کرد. پنجرههای آزمایشگاه با پیچ در جای خود ثابت شدهاند و میتوان آنها را موقتاً باز کرد تا تجهیزات بزرگ بدون تخریب سازه وارد یا خارج شوند. سالک در سال ۱۹۶۷ گفت: «این ساختمان میتواند فردا را حدس بزند.»
آزمایشگاهها عمداً بهعنوان فضاهایی برای کار جمعی و تعامل خودانگیخته طراحی شدهاند؛ افرادی که به خلوت نیاز دارند، باید از طریق پلها وارد یکی از ده برج پیرامون میدان مرکزی شوند. این برجها شامل اتاقهای مطالعهٔ کوچکی هستند که پنجرههای آنها رو به میدان و اقیانوس آرام باز میشود. در انتهای غربی هر دو بال آزمایشگاهی نیز فضاهای اداری قرار دارند، بهگونهای که هم دفاتر و هم اتاقهای مطالعه از چشمانداز دریا بهرهمند شوند.
در میان برجهای مطالعاتی که با ریتمی منظم جانمایی شدهاند، سطحی تقریباً خالی از سنگ تراورتن روشن قرار دارد. کان در ابتدا قصد داشت این فضا را به باغ تبدیل کند، اما به توصیهٔ معمار لوئیس باراگان، آن را بهصورت فضایی تهی باقی گذاشت. یک جوی باریک آب میدان را به دو نیم تقسیم میکند و نگاه را به سوی افق آبی هدایت مینماید.
بتن ناتمام دیوارهای مؤسسه از نظر رنگ تقریباً با تراورتن میدان یکسان است و به فضا حالتی بدوی و در عین حال والا میبخشد؛ حالتی که یادآور معماری روم باستان است، بیآنکه بهطور مستقیم از آن تقلید کند. (این قیاس البته با انتخاب بتن پوزولانی—همان نوع مورد استفاده در معماری رومی—تقویت میشود.) تنها عنصر متریالی که این یکنواختی بتن و سنگ را میشکند، پانلهای چوب ساجِ فرو رفته در نما هستند که محل پنجرههای فضاهای مطالعه و اداری را مشخص میکنند.
در پنج دههای که از افتتاح مؤسسهٔ سالک در سال ۱۹۶۵ میگذرد، ظاهر بیرونی این شاهکار کان تقریباً بدون تغییر باقی مانده است. بتن و سنگ در برابر شرایط ساحلی بهخوبی مقاومت کردهاند و یک پروژهٔ مرمتی اخیر بهوسیلهٔ بنیاد گتی، پانلهای چوب ساج را تعمیر کرد، در حالی که حدود ۷۰ درصد از متریال اصلی حفظ شد.
دوراندیشی سالک و کان در طراحی آزمایشگاهها باعث شده است که این مجموعه همچنان بهعنوان مرکزی فعال برای پژوهشهای پیشرفته عمل کند؛ مرکزی که از زمان تأسیس تاکنون میزبان چندین برندهٔ جایزهٔ نوبل بوده است. با طراحی انعطافپذیر و تعامل استادانهٔ فضا و متریال، مؤسسهٔ سالک بهاحتمال زیاد در آینده نیز جایگاه خود را هم بهعنوان یک مرکز پژوهشی و هم بهعنوان شاهکاری معماری حفظ خواهد کرد.
جهت دسترسی به پروژههای بیشتر به این صفحه از سایت مراجعه کنید.
” تمامی حقوق مادی و معنوی محتوا متعلق به پایگاه خبری جهان معماری می باشد “