- خانه
- معرفی پروژه
- پروژه های داخلی
- خانه فرهنگ و هنر سپند – محمدرضا سمواتی، مریم کریمیان

































خانه فرهنگ و هنر سپند نمایانگر احیای یک اقامتگاه ارزشمند از دههٔ ۱۹۶۰ است؛ خانهای که در اصل توسط دکتر پاکنیا طراحی شده بود. این بنا که زمانی منزل و مطب دکتر اسماعیلزاده، متخصص قلب، بود، اکنون از مکانی برای مراقبت جسمانی به بستری برای فرهنگ و اجتماع تبدیل شده است.
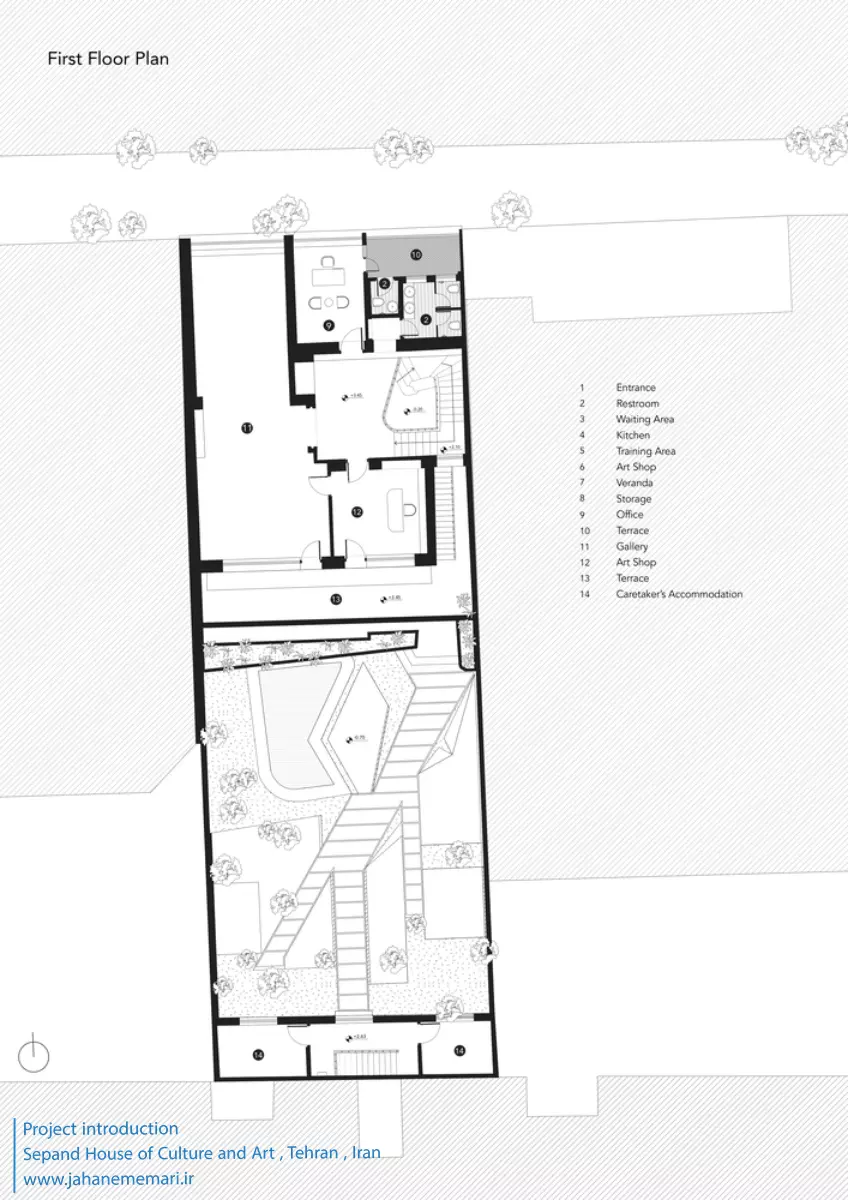
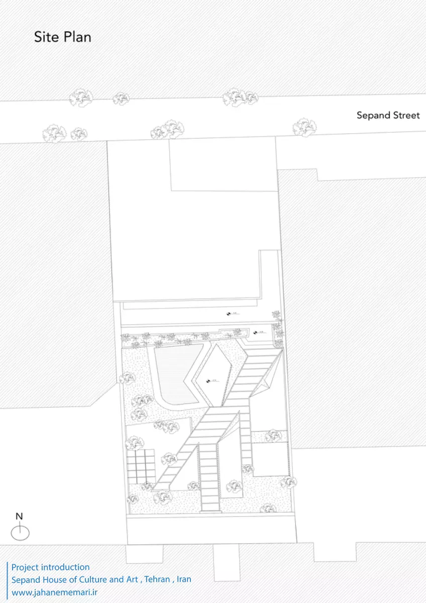
ساختار اولیه از سه بخش خطی تشکیل میشد: بنای اصلی، حیاط، و ساختمان خدمه. در فرآیند باززندهسازی، حیاط به قلب پروژه بدل شد. صفحات بتنی تاخورده و شکسته در این بخش بهعنوان سکوهای نشستن قرار گرفتند تا مردم را به گردهمایی و گفتگو دعوت کنند. این سطوح، که استعارهای از لایههای زمان و تجربه انسانی هستند، کیفیتهای فضایی متنوعی ایجاد میکنند—از خلوت و گفتگوی صمیمانه گرفته تا رویدادهای جمعی بزرگتر—که بازتابدهندهٔ تنوع اجتماعی کاربران است.
بنای اصلی با کمترین تغییرات بنیادی حفظ شد. فضاهای داخلی آن بهصورت انعطافپذیر برای میزبانی عملکردهای جدیدی همچون گالری، کلاسهای آموزشی و یک سینمای کوچک تطبیق داده شد. این رویکرد نشان میدهد که باززندهسازی در اینجا بازسازی نوستالژیک نیست، بلکه بازتفسیر حافظهٔ فضایی است.
ساختمان کوچکتر خدمه، که زمانی فرسوده و کهنه بود، با یک پوشش مشبک فلزی احاطه شد که میزبان گیاهان بالارونده است. این پوستۀ ثانویه گذشته را محو نمیکند، بلکه آن را از طریق یک فرآیند زنده به آینده پیوند میزند.
در این مجموعه، گالری به طبقهٔ اول منتقل شد تا فضایی بازتر و انعطافپذیرتر برای مخاطبان فراهم کند. در همین حال، تالار پذیرش طبقهٔ همکف—with اختلاف سطحهای موجود—به یک فرصت تبدیل شد: صحنهای پویا و چندلایه برای اجراهای زنده، نمایش فیلم و کارگاهها. بدین ترتیب، فضاها شخصیت جدیدی یافتند—جایی میان گذشته و حال—که در آن، زندگی جمعی از خلال تجربههای فرهنگی معاصر بازآفرینی میشود.
این ساختمان که در اصل ویلایی از دههٔ ۱۹۵۰ بود، علیرغم دههها دگرگونی شهری، یکپارچگی معماری خود را حفظ کرده است. خیابان ویلا زمانی پر از خانههایی مشابه این بنا بود که امروز تنها تعداد کمی از آنها باقی ماندهاند. در میان آنها، این خانه بهعنوان یکی از شاخصترین و تأثیرگذارترین نمونهها شناخته میشود. اهمیت آن تنها در قدمت یا بقا نیست، بلکه در زندهکردن لایههای تاریخ معماری و هویت شهری است.
بنابراین رویکرد طراحی بر حفظ ساختار، تقویت انسجام فضایی، و بازتفسیر ارزشهای اساسی آن متمرکز بود. با انجام این کار، پروژه هم جزئیات هنری و اصالت تاریخی را صیانت میکند و هم به بنا امکان میدهد بار دیگر نقشی فعال در زندگی معاصر شهر ایفا کند.
جهت دسترسی به پروژه های بیشتر به این صفحه از سایت مراجعه کنید.
” تمامی حقوق مادی و معنوی محتوا متعلق به پایگاه خبری جهان معماری می باشد “