- خانه
- معرفی پروژه
- پروژه های داخلی
- ساختمان شماره 9 – استودیو اتفاق
























امروزه زندگی شهری به سمت سکونت در آپارتمانهای جدا افتاده از طبیعت کشیده شده، واحدهایی که بسیاری از لذتها و کیفیتهای فضای زندگی را فدای محدودیتها، ضوابطهای شهرداری و ابعاد زمین کردهاند.
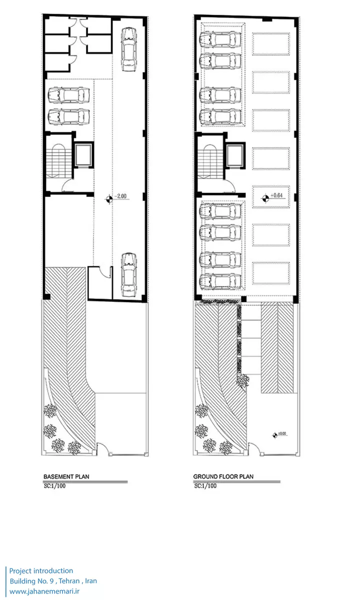
ساختمان شماره ۹ واقع در محلهی مرزداران نزدیک مسیل پونک در زمینی به ابعاد ۱۰×۳۸ در ۵ طبقه مسکونی تک واحدی به متراژ ۲۱۴ مترمربع دارای ۳ خواب مستر، لاندری، انباری داخل واحد و ۱۷ مترمربع تراس قابل چیدمان و ۲ طبقه فضای عمومی شامل ورودی پارکینگ انباری و اتاق تاسیسات بنا شده است.
آجر سنتی به عنوان متریال اصلی ساختمان به کار گرفته شده که نماد معماری اصیل ایرانی و سازگار با اقلیم تهران میباشد.
چیدمان و آرایش آجر به صورت افقی و عمودی و استفاده از المانهای آجری معماری اصیل ایرانی از جمله هره و فخر و مدین با ایجاد سایه روشن در پوستهی ساختمان در کنار گیاهان مقاوم و همیشه سبز و بافت طبیعی چوب وعدهی محیطی گرم و صمیمی را به ساکنین میدهد.
در طراحی با ایجاد تراسهای کشیده و سراسری با عمق مناسب جهت مبلمان و فضای حرکتی که دارای دسترسیهای جداگانه به آشپزخانه و سالن پذیرایی است سعی در تعامل افراد خانواده با هم در فضای آزاد و محیطی دلنشین بوده است.
ساختمان شمارهی ۹ تجربهای است برای خلق خانهای در تعامل با نور و طبیعت که با وجود محدودیتها بتواند تجربهی زیستی خوشایندی را برای ساکنان فراهم آورد.
جهت دسترسی به پروژه های بیشتر به این صفحه از سایت مراجعه کنید.
” تمامی حقوق مادی و معنوی محتوا متعلق به پایگاه خبری جهان معماری می باشد “