- خانه
- معرفی پروژه
- پروژه های داخلی
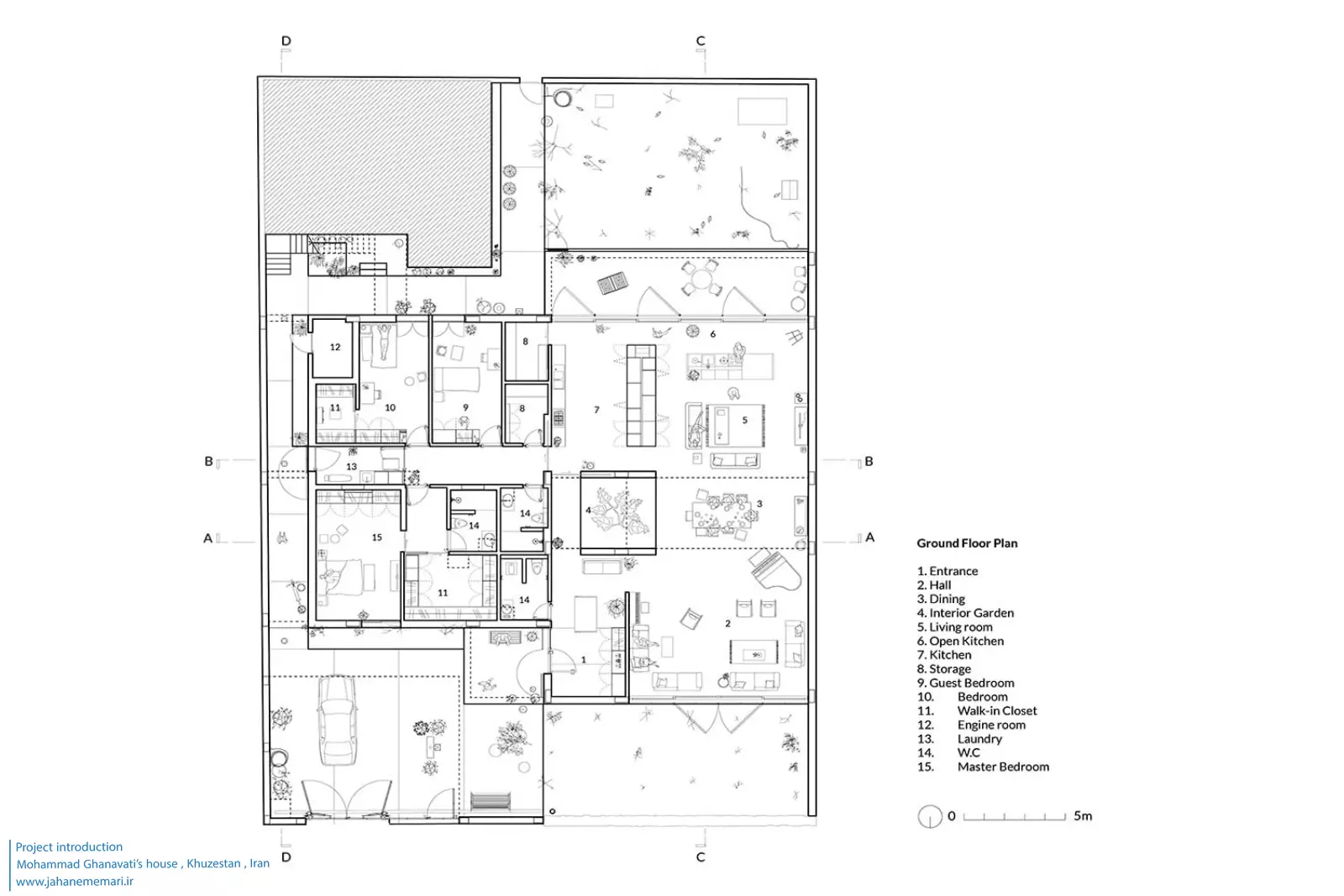
- خانه محمد قنواتی – دفتر معماری تموز



























خانهای متعلق به یک خانوادهی سه نفره- محمد قنواتی، همسر و دختر نوجوانشان- و خانهی مادر که در چند سال اخیر در انتهای جنوب شرقی زمین توسط ایشان ساخته شده بود. خانهی پیشین تخریب شد و خانهی مادر باید حفظ میشد، خانوادهی قنواتی خواستار طراحی خانهای در یک طبقه شدند، زیرا تصور میکردند در خانهی یک طبقه امکان تعامل، ارتباط و برخورد بیشتری خواهند داشت. بدین ترتیب سعی بر آن شد که این ویژگی و درخواست تبدیل به فضا شود.
اختلاف ارتفاع در مقاطع امکان تنوع در خانهی یک طبقه را فراهم کرد. باغچهی میانی فضای زندگی، علاوه بر تامین نور و تهویه وسیلهای شد جهت برآوردن علاقهی همیشگی صاحبخانه به گل و گیاه. خانهای به دور از پیچیدگی، ساکنین جزوی از کالبد خانه هستند که در آرامش و سکون خانه، پویایی و حرکت ایجاد میکنند. مانند همان گلدانهای رها شده در گوشههای حیاط.
هدف، حل مسئله و هماهنگ کردن نیازهای زندگی خانواده، خصوصیات آنها و عملکرد های مورد نیاز یک خانه با توجه به وضع موجود زمین، بستر، آب و هوا و اقلیم در جهت دستیابی به پایدارترین جواب موجود بود، و در نهایت کشف ساختار هندسی منطبق با آن در جهت سازماندهی فضا. فضاهای خرد و خدماتی در شرق (با توجه به حضور خانهی مادر) و فضای زندگی در غرب و در ارتباط با حیاطهای شمالی و جنوبی، جای گرفتند. دیوارههای بام افراشته شدهاند، و فضایی محفوظ در ارتباط با خانهی مادر شکل گرفت و پلی آن دو را به یکدیگر متصل کرد، شاید در آینده جایی برای قرار گیری گلخانه باشد. از این رو خط آسمان آرام گرفته و خانه از برون ساده می نمایاند. از برون بسته، در پناه از آفتاب، و همهی فضاها و دسترسیها در هماهنگی با اقلیم گرم و مرطوب منطقه میباشد.
خانهی محمد قنواتی در استان خوزستان، بندر ماهشهر، در شهرکی مسکونی و سبز در ناحیهی صنعتی شهر قرار گرفته است.
جهت دسترسی به پروژه های بیشتر به این صفحه از سایت مراجعه کنید.
” تمامی حقوق مادی و معنوی محتوا متعلق به پایگاه خبری جهان معماری می باشد “