- خانه
- معرفی پروژه
- پروژه های داخلی
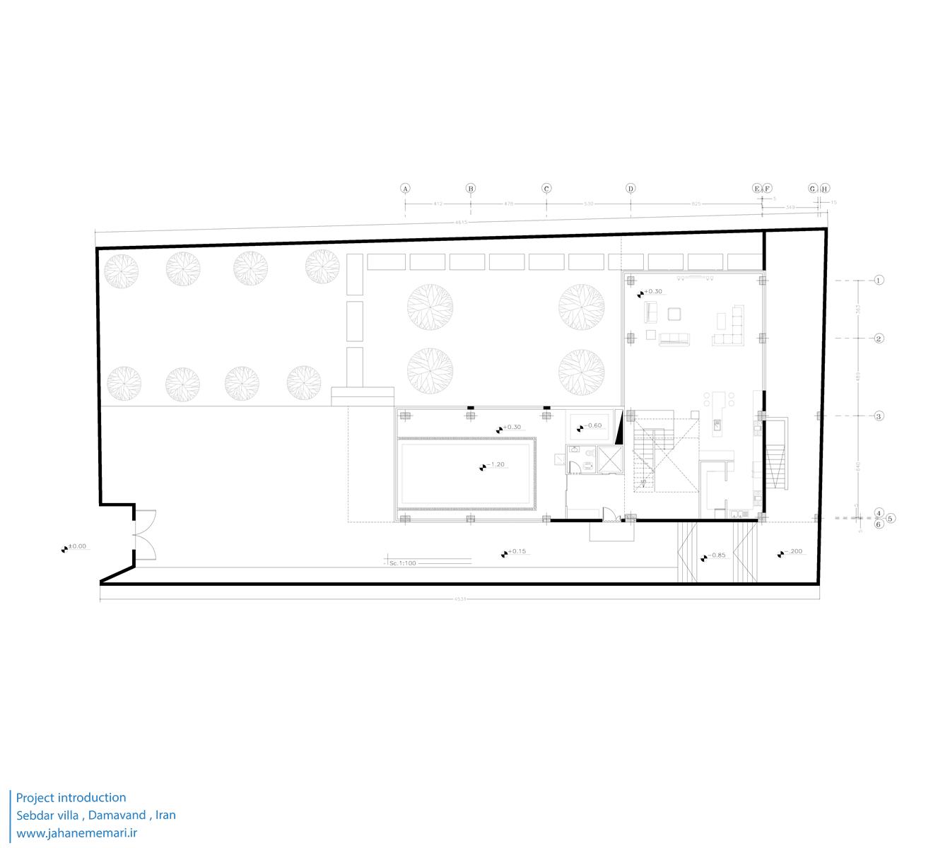
- ویلا سب دار – گروه سرمایه گذاری و ساختمانی آرتور

























طراحی ویلای «سب دار» یا «باغ سیب» از مرحله نخست با بازخوانی نسبت میان بافت و فرم معماری آغاز شد. پس از مطالعهی دقیق منطقه جابان، واقع در جنوب شرقی رشتهکوههای البرز، ایدهی پروژه از دل یک پارادوکس جغرافیایی شکل گرفت: دعوت همزمان دید به سوی کوههای شمال و باغات جنوبی، و تمرکز آن به میانهی فضا، به گونهای که چشمانداز و تجربهی سکونت در یک همنشینی پویا قرار گیرد.
دو مکعب شفاف و نیمهباز در دو جهت مخالف بر یکدیگر قرار گرفتند، به نحوی که نسبت درون و بیرون از طریق نماهای شفاف و قابهای توخالی بازتعریف شود. این سازمان فضایی با تمایل به سادگی و پرهیز از پیچیدگی در فرم، حول یک فضای تهی مرکزی سامان یافته است؛ فضایی که جریان نور، هوا و دید را هدایت میکند و پیوستگی فضایی میان طبقات و عملکردهای مختلف را تقویت مینماید.
با توجه به ماهیت ویلا، مفهوم برون گرایی متناسب با اقلیم و مناظر طبیعی در طراحی لحاظ شده است و فضاهای عمومی متنوع، امکان بهرهگیری منعطف از فضاهای درونی و نیمه باز را فراهم آوردهاند. در ویلای «سب دار»، سبزینگی و منظر بیرونی از طریق قابهای توخالی به درون امتداد یافته و باغ را به هستهی فضایی و تجربهی زیست ساکنان پیوند میدهد؛ بدین ترتیب مرز میان طبیعت و معماری نه بهواسطه دیوار، بلکه از طریق جریان بصری، نور و دید بازتعریف میشود.
جهت دسترسی به پروژه های بیشتر به این صفحه از سایت مراجعه کنید.
” تمامی حقوق مادی و معنوی محتوا متعلق به پایگاه خبری جهان معماری می باشد “