- خانه
- معرفی پروژه
- پروژه های داخلی
- پروژه پتی – آتلیه طراحان اگر در همکاری با دفتر مِیدان






























معنی «پتی» در فرهنگ معین (پ) (ص .) (عا )۱- خالی ، ساده. ۲ – برهنه ، لخت. ۳ – آشکار
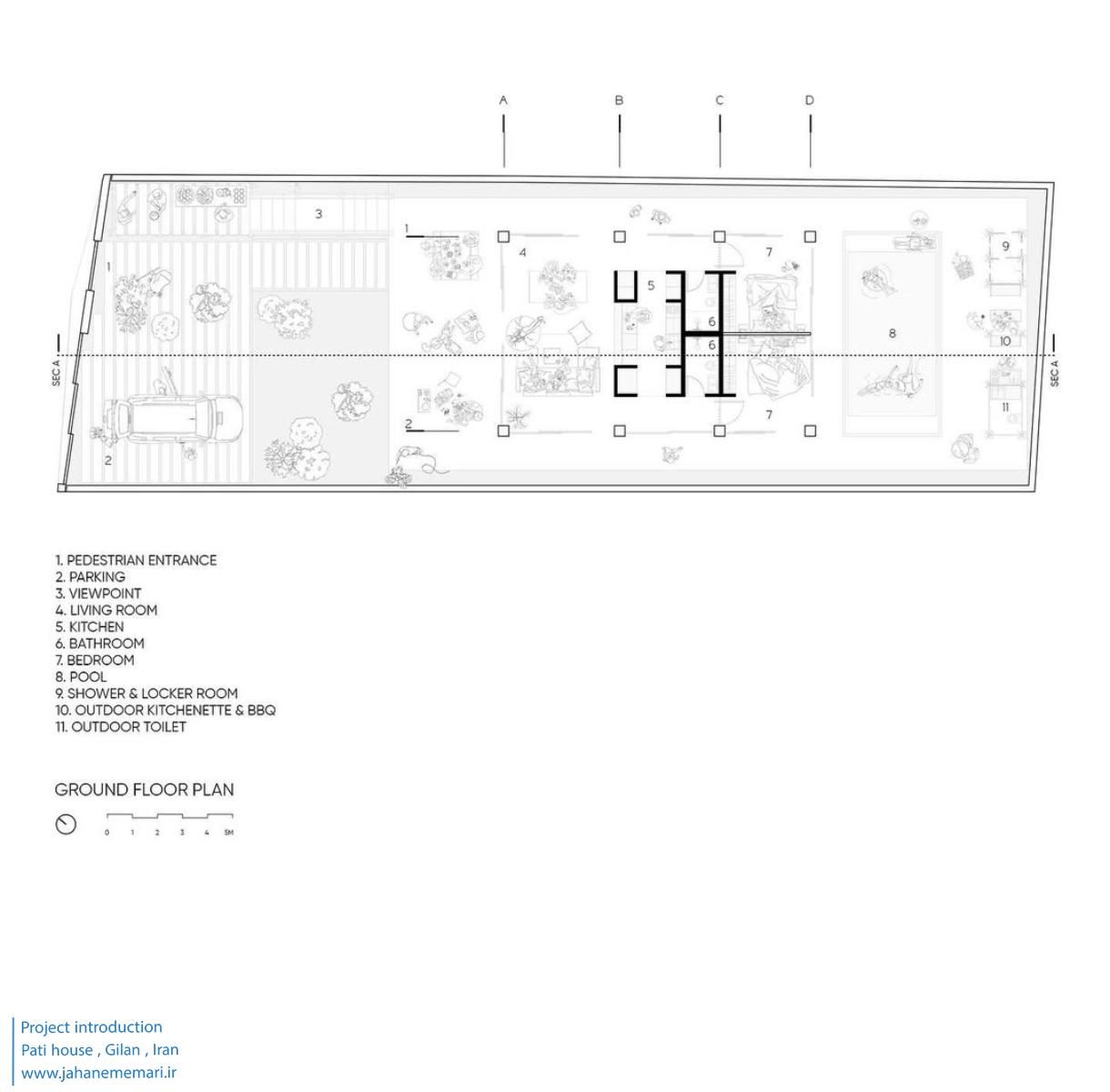
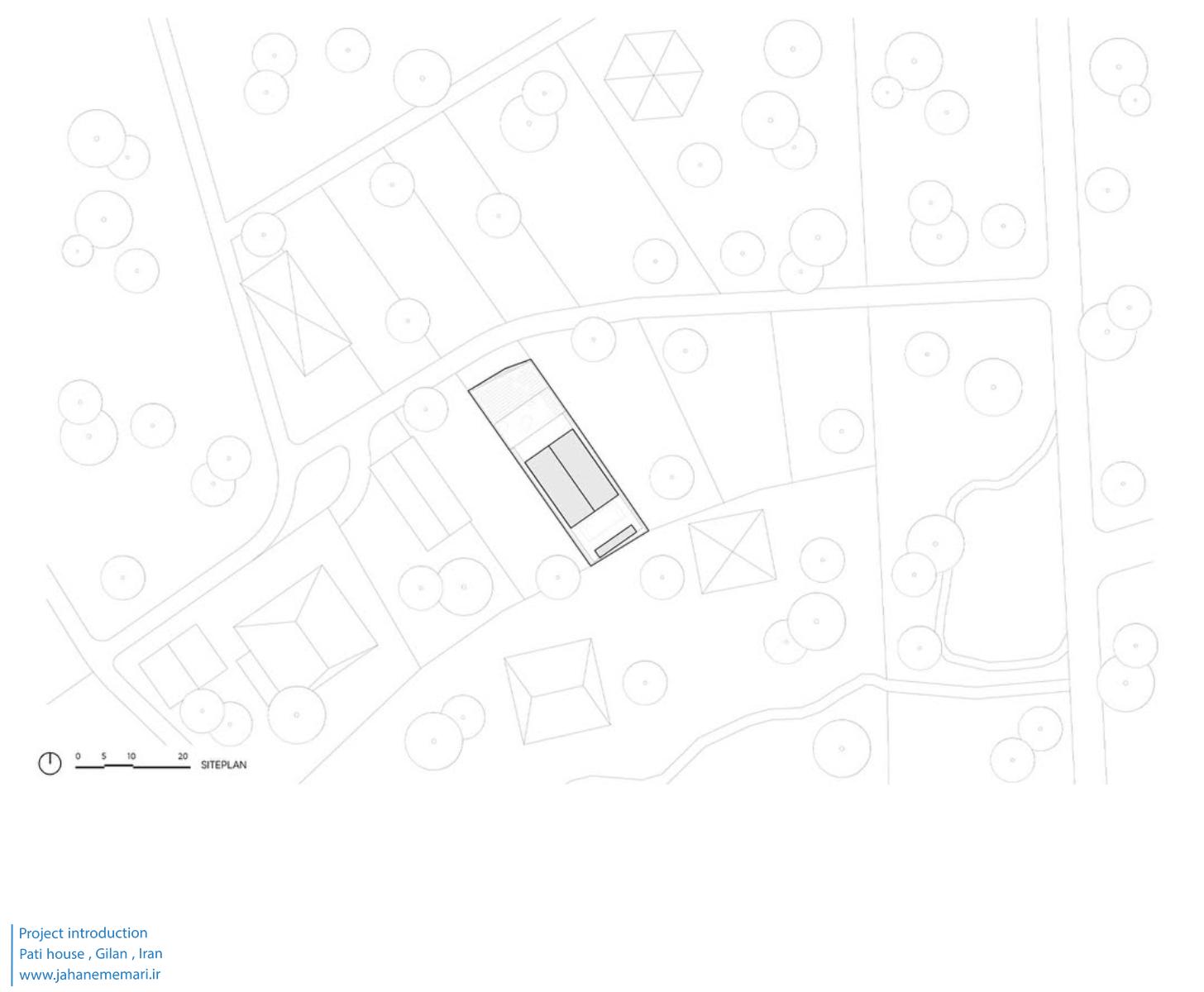
پروژه در مرحله ای به ما پیشنهاد شد که کالبدی با هشت ستون بتنی و تیرهایی در تراز اولش اجرا شده بود موضوع پروژه در ابتدا طراحی ویلایی با مساحتی حدود صد متر مربع، کمی با کیفیت تر از ساخت و سازهای مشابه بود نحوه ی جانمایی سازه در سایت موجب میشد کریدورهای ارتباطی در کنار پروژه که اتصال شمال و جنوب را برقرار میکرد بسیار کم عرض باشد . به این فکر کردیم که چه میشود اگر کاربری های خدماتی در جعبه ای متراکم به درون جمع شوند تا امکان ارتباط و نورگیری جداره های ویلا از هر سمت فراهم باشد. در پی این تصمیم پروژه از هم نشینی سه عرصه ی کلی شکل گرفت و تلاش کرد در پلان و مقطع نیز به آنها وفادار بماند. عملکردهای خدماتی نظیر آشپزخانه سرویسهای بهداشتی و کلوزت های خصوصی در قامت یک جعبه چوبی طوری در مرکز پروژه جانمایی شده اند که از هر جبهه نقشی متفاوت ایفا میکنند.(Service Zone) تجربه ی استراحت بر سقف این جعبه یا وجه پنجم آن نیز از دیگر نقشهایی بود که در این عرصه آزموده شد. فضاهای زندگی در قالب نشیمن غذاخوری و اتاق های خواب در اطراف این هسته ی خدماتی با رابطه ای دو سویه میان درون و بیرون جای گرفته اند(Living Zone) و بیرون که در برگیرنده ی فضاهایی مثل پلتفرم امتداد یافته ،استخر فضای تماشای فیلم و دورهمی است عرصه ی خوش گذرانی نامیده می شود.(Chilling Zone)
به عبارت دیگر، انگار پروژه اطراف خود را طوری تمیز کند که از هر سو شفاف شده و فقط بخش هایی از خود را با پرده بپوشاند که نیاز به حریم دارد درست مثل لحظه ی بیرون آمدن از زیر دوش که با در دسترس ترین و حداقلی ترین پوشش برطرف میشود. این وضعیت نیمه عریان ،و آشنا ما را یاد واژه ی «یتی» انداخت به این ترتیب مسئله ی پتی به این بدل شد که پلتفرمی برهنه و وسیع تر از محدوده ی تعیین شده اش باشد و سفرهاش را تا جای ممکن پهن تر کند این گسترش در کف به واسطه ی ادامه دار شدن اسلب بتنی موجود و در سقف با تعبیه ی پوششی ساده و شلترگونه شبیه بافت منطقه روی تیرهای موجود فراهم شد پروژه از طریق تصمیماتی مانند تعبیه ی سقف دوپوسته گسترش کف در تراز کرسی چینی بالا آمده، بازشوهای دوجداره و استفاده از پارچه های سفید، زیست پذیر شد.
پنی شدن این شجاعت را به پروژه داد تا در مرحله ی جزئیات اجرایی نیز تقریباً از هر پوشاننده ی اضافه ای پاکیزه ،شود طوری که هر چیزی خودش باشد و خود را به بی پیرایه ترین شیوه نمایان کند. از سویی تلاش پروژه این بود تا با احترام به ادبیات جاری بستر کالبد خود را در نسبت با داشتههای محیط تنظیم کند. از این رو به دنبال عناصر آشنای همان جا بود تصمیماتی مانند برپایی سقف شلترگونه متشکل از عناصر چوبی و پوشاننده ی فلزی با استفاده از جداره های بلوک سیمانی از دل این جست وجو پدید آمد. این بی پیرایگی در تصمیمات بعدی نیز مانند ایجاد سازه های فلزی نیمه باز در سایت تأسیسات مکانیکی و الکتریکی جزئیات بازشوها و ساخت مبلمان پروژه تمرین شد.
جهت دسترسی به پروژه های بیشتر به این صفحه از سایت مراجعه کنید.
” تمامی حقوق مادی و معنوی محتوا متعلق به پایگاه خبری جهان معماری می باشد “