- خانه
- معرفی پروژه
- پروژه های داخلی
- خانه نارنج – استودیو معماری مورب
































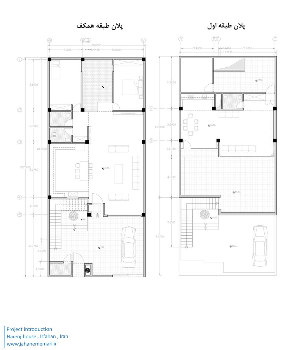
خانه ی نارنج، خانه ایست ساده، برای زیستن!
خانه ایست برای اعتراض! اعتراض به اوضاع و احوال شهرهای کوچک امروزی با جداره های ناهمگن و بی ربط در بافت و بدنه ها که هر یک، ساز خود را میزنند. خانه نارنج، پاسخی است به وضعیت موجود. حجمی آجرپوش که دیوارهایش با بافتی زبر و جزئیاتی ساده، حریمی آرام اما قاطع برای درون و بیرون، میسازد. پشت این مرز، فضایی قرار دارد که بر اساس شیوه زیست کارفرما، طراحی شده است. برای جلوگیری از صلب بودن حجم، دریچه ها و روزنه هایی خالی شد تا هم از بیرون دیده نشویم و هم گاهی از آن ها سرک بکشیم و نسیمی ملایم در آن، بوزد.
وجود درخت نارنج 10 ساله ای که در موقعیت مناسبی قرار داشت، بسیاری از خطوط فکری حاضر را برای ما ترسیم میکرد. خواست کارفرما خانه ای دلباز و کاربردی به همراه یک سوییت با دسترسی مجزا بود که مزاحمتی برای واحد اصلی نداشته باشد. واحد اصلی در همکف و سوییت در بالا، تعبیه شد. پله ای فلزی، به دور درخت میچرخد و حجم آجری را میشکافد تا به بالا برسد. حیاط بالا، فضایی است برای مهمانی ها و شب نشینی های تابستانه، و حیاط پایین، خلوتگاهی است درون گودال باغچه زیر سایه ی نارنج با عطر بهار و پاییز! در داخل نیز، نشیمنی تماما از آجر طراحی شد برای دورهمی ها در شب های سرد زمستان برای کنار هم بودن!
نارنج خانه ایست ساده برای زیستن!
جهت دسترسی به پروژه های بیشتر به این صفحه از سایت مراجعه کنید.
” تمامی حقوق مادی و معنوی محتوا متعلق به پایگاه خبری جهان معماری می باشد “