- خانه
- معرفی پروژه
- پروژه های خارجی
- مرکز فناوری کشمیر | Cashmere Tech Center



































معمار: waa
سال: 2025
مساحت: 4578 متر مربع
شهر: اوردوس
کشور: چین
عکاس: whyseeimage
توضیحات پروژه ارائهشده توسط معماران: (متن ترجمه شده از انگلیسی)
مرکز فناوری کشمیر، که بخشی از یک مجموعهی کارخانهای بسیار بزرگتر است، نخستین بار در ابتدای هزارهی جدید توسعه یافت. این مجموعه در دوردستهای شهر اوردوس، در چشمانداز بیابانی خشک منطقهی خودمختار مغولستان داخلی واقع شده و تقریباً بهصورت یک شهر خودکفا طراحی شده بود. این مجموعه شامل اقامتگاههایی برای کارکنان کارخانه و مجموعهای گسترده از امکانات تولید پارچههایی بود که برای برندهای داخلی و بینالمللی در نظر گرفته میشدند. در درون این مجموعه، مرکز فناوری بهعنوان ساختمانی ویژه برای پیشبرد پژوهش و تولید کشمیر ایجاد شد. این مرکز مجهز به آزمایشگاهها، اتاقهای تست نمونه و استودیوها بود و در ابتدا برای پشتیبانی از فرآیندهای بسیار تخصصی طراحی شده بود.
وظیفهی ما بازآفرینی این تأسیسات فرسوده و تبدیل آن به یک جامعهی تحقیق و توسعهی معاصر بود — جامعهای که بازتابدهندهی شیوههای همکاری و محیطهای کاری باز امروزی باشد.
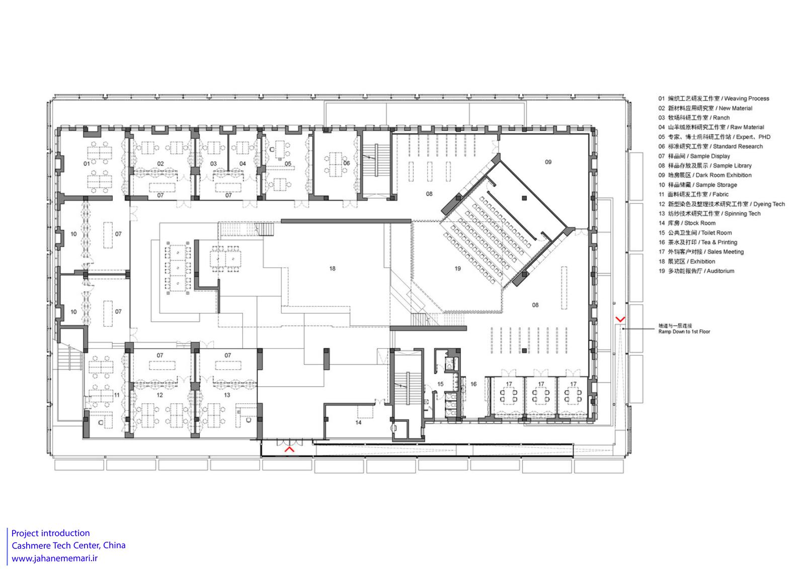
حس «محل کار» را میتوان در نهایت به مجموعهای از فضاهای اجتماعی تقسیم کرد که در آن فعالیتهای افراد بهصورت فیزیکی یا بصری با هم تلاقی میکنند. برای حمایت از محیط کاری جامعهمحورتر، نخستین اقدام، بهبود اتصال فضایی بود — به مرکز کشمیر ورودی مستقلی در طبقهی دوم اختصاص داده شد. برای تحقق این هدف، یک رمپ جدید طراحی شد که در میان پوستهی جدید و دیوار نمای موجود جای گرفته است. این طراحی، مسیر حرکتیای را فراهم میکند که از طبقهی همکف عبور نمیکند و بدینترتیب نوعی استقلال عملکردی برای کاربران و بازدیدکنندگان ایجاد مینماید.
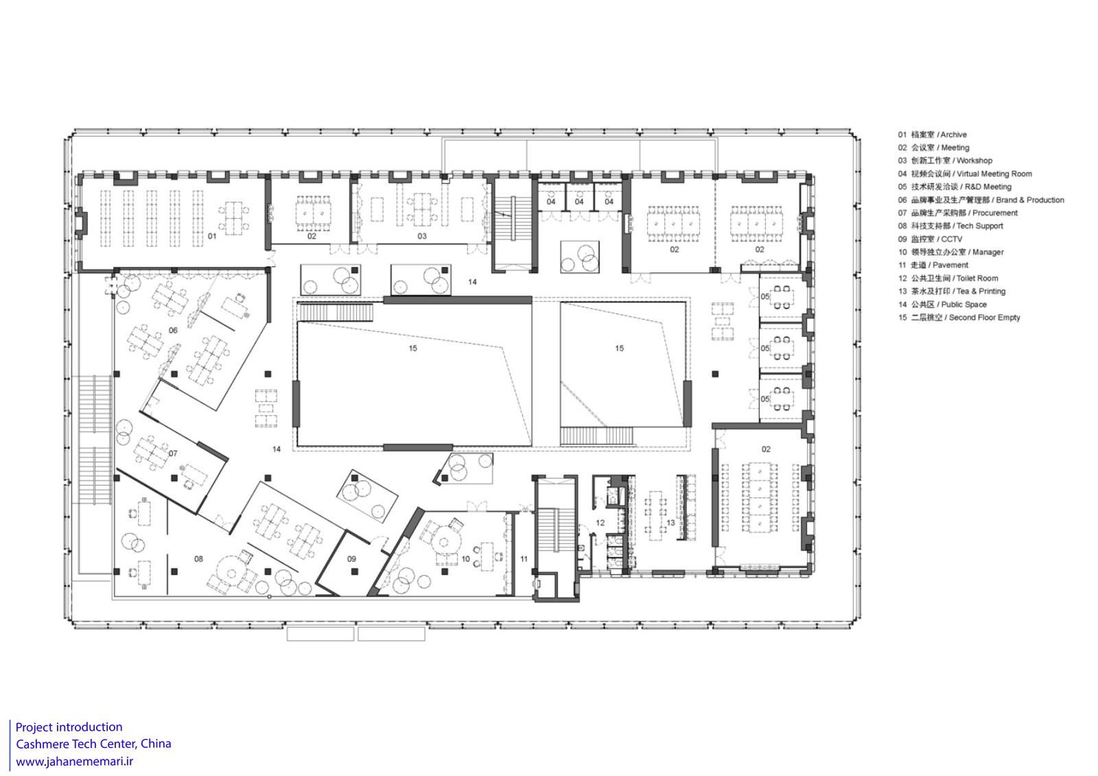
طرح اصلی، فضاها را بهصورت محیطی بسته و حلقوی («دوناتشکل») سازماندهی کرده بود. ما این ساختار را در بخشهایی حفظ کردیم اما قسمتهایی از اطراف آتریوم مرکزی را باز و چرخاندیم. فضاهای کلیدی شامل دفاتر مدیریت، مرکز فناوری، دفاتر تحقیق و توسعه (R&D) و کتابخانهی نمونهها هستند. جعبههای شیشهای با پوشش گیاهی به اندازهی ۴۵ درجه روی شبکه چرخانده شدند تا مسیرهای فرعی متنوعتری شکل گیرد، بهطوریکه گردش در طبقهی سوم دیگر حالت حلقوی و متعارف نداشته باشد. این کار سبب میشود مرز میان هر منطقهی کاری انعطافپذیرتر شود و افراد فرصتهای بیشتری برای تعامل فیزیکی با یکدیگر پیدا کنند.
هدف ما از بازچیدمان فضای داخلی، خلق محیطی باز و انعطافپذیر برای کار بود، جایی که افراد بتوانند بسته به نیاز، بین کار گروهی و فردی انتخاب داشته باشند؛ آنها میتوانند اتاقهای خصوصی برای بحثهای کوچک یا جلسات آنلاین انتخاب کنند و یا فضاهای بزرگ و باز برای گفتوگوهای گروهی.
بهجای حفظ چیدمان اداری متعارف با دفاتر خصوصی و آتریومی صرفاً برای نمایش، ما به این نتیجه رسیدیم که مهمتر است بر جنبههای پژوهشی و توسعهای تیم تمرکز شود؛ جایی که گفتوگوها و مباحث متعدد در فضاهای مختلف تشویق شوند. اقلام موجود بر دیوار و قفسهها نمایشگاههای تزئینی نیستند، بلکه برای مشاهده و بررسی تعاملی طراحی شدهاند. با بازتعریف کتابخانهی نمونهها بهعنوان فضایی برای گفتوگو و بررسی محصولات در حین تحقیق، ما خواستیم بر اهمیت مشارکت در فرآیند طراحی تأکید کنیم. از آنجا که برخی از کارکنان محلی ترجیح میدادند دفاترشان حالت بستهتری داشته باشد، اتاقهای نمونهگیری هر استودیو را در لایهای رو به آتریوم عمومی و مسیر عبور قرار دادیم و دفاتر اصلی کارکنان را پشت آن، با دید به بیرون، جای دادیم.
سالن همایش (Auditorium) با زاویهی ۴۵ درجه نسبت به شبکهی موجود طراحی شد. این چیدمان تعامل میان کتابخانهی مواد، نمونههای متریال و فضای تئاتر را بهبود میبخشد. پلی جدید از فضای خالی عبور میکند و بهصورت نیمهمجزا، سالن سخنرانی را از تالار اصلی جدا میسازد؛ هم به حرکت کمک میکند و هم بهعنوان بالکنی با دید مناسب، نقاط تلاقی مسیرها را افزایش میدهد.
راهبرد بازآفرینی بر اساس تمایل به حفظ ساختمان موجود و درعینحال اعطای هویتی معماری تازه به آن شکل گرفت. پوستهی جدید نمای ساختمان که همچون «ردایی صنعتی و جواهرنشان» طراحی شده، اکنون بنای اصلی را دربر میگیرد. پشت این پوسته، رمپ دسترسی جدیدی قرار دارد که امکان ورود مستقیم به لابی ورودی در طبقهی دوم را فراهم میکند.
حرکات کلیدی طراحی شامل موارد زیر است:
بازمقیاسدهی بنا با استفاده از ماژولهایی به اندازهی ۱.۵ در ۵.۸ متر، که موجب بهبود تناسبات حجم و سازماندهی مجدد جرم بنا شد. پانلهای بلندتر باعث ایجاد مانعی تمیز در برابر خیابان میشوند و درعینحال با توهم کوچکسازی، مقیاس بصری را متعادل میسازند.
پانلهای مشبک (Perforated Panels) دید بصری از روزنههای موجود را افزایش میدهند.
پانلهای قوسیشکل (Arced Panels) در پاسخ به نیاز دید داخلی طراحی شدند و موقعیت آنها با توجه به ورودیها و مسیرهای حرکتی تعیین گردید.
تمرکز طراحی: مبلمان بهعنوان عامل معماری
طراحی مبلمان نقش اساسی در شکلدهی به فرهنگ کاری جدید داشت و مفاهیمی چون گشودگی و همکاری را تقویت کرد. طراحی داخلی جدید، الگوی سنتی دفاتر بسته را کنار گذاشت و محیطهایی برای گفتوگوی آزاد فراهم نمود که بهویژه مورد استقبال نسل جوان کارکنان قرار گرفت.
i) نمایش باز (Open Display) — فضای بزرگ پذیرش مرکزی دو عملکرد اصلی بخش جلویی (Front of House) را در خود جای میدهد. هرچند بهصورت رسمی فضای نمایشگاهی نیست، اما حجم بلند و نور یکنواخت آن برای نمایش پروژههای بزرگمقیاس قابل استفاده است. نشیمنگاههای پیرامونی نیز میتوانند بهعنوان محل ذخیره و نمایش موقت به کار روند.
ii) آمفیتئاتر باز (Open Auditorium) — با پل جدید به سایر بخشها متصل شده است. این فضا دارای پردههای جمعشونده است که امکان برگزاری رویدادهای کوچک یا بزرگ را فراهم میکند. نشیمنهای پلکانی قابلیت افزودن صندلی دارند و دیدگاههایی از بالکنهای بالا باعث میشوند فعالیتهای این بخش برای همگان قابل مشاهده باشد. در هنگام استفاده از نمایشگرها، فضا به نقطهی کانونی برای سمینارها و بحثهای تخصصی تبدیل میشود.
iii) نمونههای باز (Open Samples) — فضای مرور نمونههای تحقیق و توسعه حول میزهای طولی و دیوارهای عمودی آویزان سازماندهی شده است. در اینجا مواد نهتنها ذخیره میشوند بلکه بهصورت فعال در معرض دید و بررسی قرار میگیرند، بهگونهای که نمونهسازیها به گفتوگو و نقد متقابل منجر میشوند و روش کاری را بر پایهی بحث عمومی هدایت میکنند.
iv) دفاتر باز (Open Offices) — نقاط نورپردازی غشایی (Membrane Lighting Pockets) بهصورت پراکنده در مکانهای نامنظم در میان چیدمان میزهای کاری قرار گرفتهاند. این رویکرد باعث خودانگیختگی، برخورد میانرشتهای و گفتوگوهای همپوشان میشود.
ترکیب زیرساخت صنعتی موجود، الزامات سختگیرانهای را بر هر پروژهی نوسازی صنعتی تحمیل میکند و معماری در پاسخ مستقیم به همین شرایط شکل گرفته است. تصمیم ما برای استفاده از شبکهای سختگیرانه باعث ایجاد توهم کاهش مقیاس حجم و سبکتر شدن تودهی سنگین سابق شد. پوستهی جدید همچون صندوقچهای گرانبها (Reliquary) عمل میکند که ساختمان پیشین را دربر گرفته و درعینحال به هویت اصلی برند اشاره دارد — دگرگونی مادهای خام و طبیعی به محصولی پالوده و لوکس.
جهت دسترسی به پروژههای بیشتر به این صفحه از سایت مراجعه کنید.
” تمامی حقوق مادی و معنوی محتوا متعلق به پایگاه خبری جهان معماری می باشد “