- خانه
- معرفی پروژه
- پروژه های داخلی
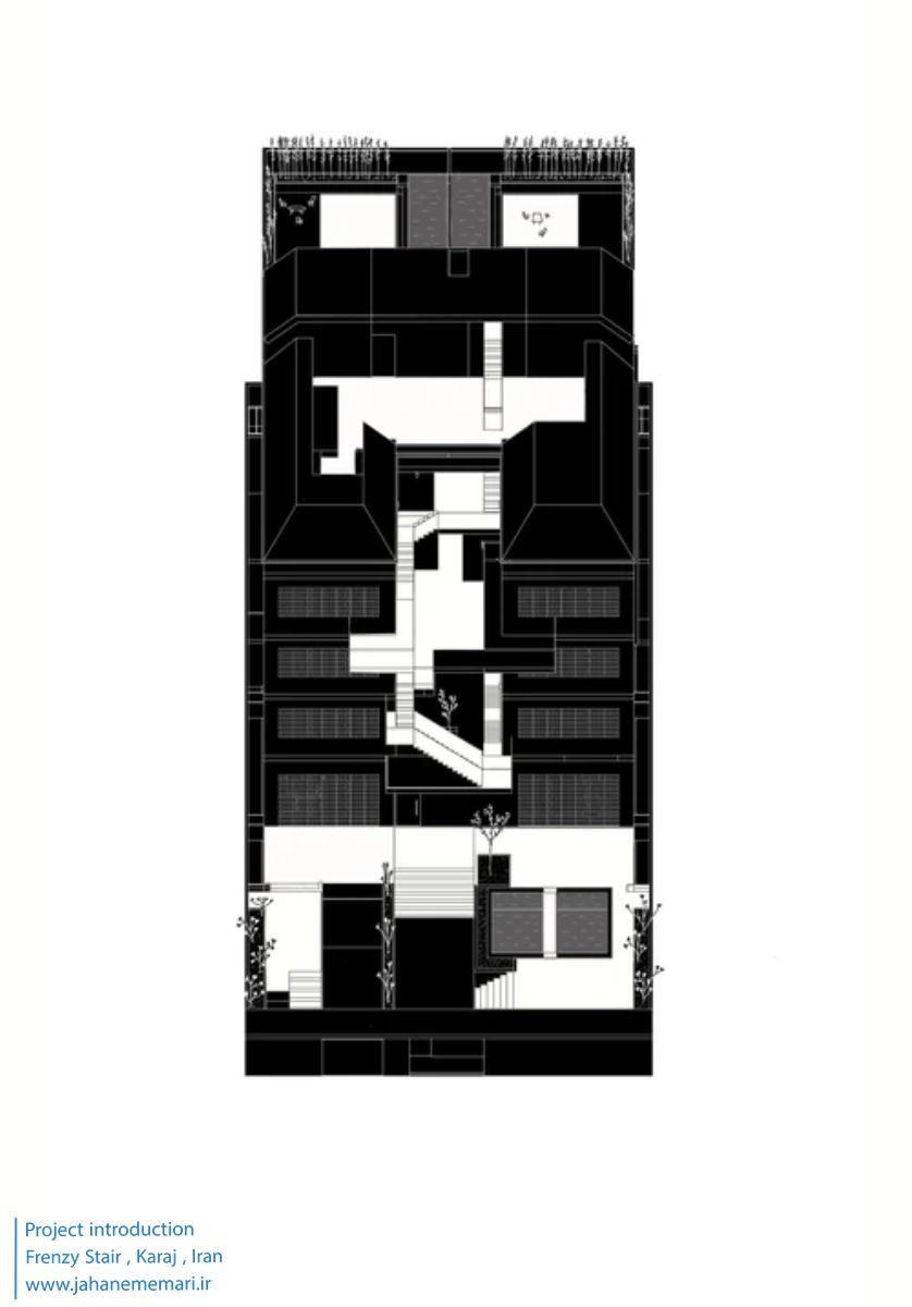
- ساختمان مسکونی پله بی قرار – استودیو سپیده علمی




















































از نگاه من، پلهها همیشه بایگانی خاطرات بودهاند — فضاهای میانیای که اغلب نادیده گرفته میشوند و درون جعبهای محبوس میمانند.
آنها مکانهایی غیرمتعارفاند: برای بوسیدن، در آغوش گرفتن، سوگواری، گوش دادن به موسیقی، طراحی، نوشتن، افتادن و بیشتر از آن.
پروژه پلهی بیقرار بخشی جداییناپذیر از زبان معماری است — یک نصب معماری که از محدودیتهای همیشگیاش گریخته و به فضایی اجرایی و نمایشی برای زندگی روزمره تبدیل شده است.
این پله با حرکت از مرکز به لبه، مرز میان فضای عمومی و خصوصی را اشغال میکند و نما — که اغلب به سطحی دوبعدی تقلیل یافته — را به صحنهای برای گفتوگو با عرصهی عمومی بدل میسازد.
تفاوت میان زندگی عمومی و خصوصی، رفتار، پوشش و حتی حرکات بدن ما را شکل میدهد. در برهههایی از تاریخ، این تمایز بهصورت خودخواسته بوده و در زمانهایی دیگر تحمیلی.
پلهی بیقرار بر ضد این جدایی تحمیلی شورش میکند. در حالیکه دیگر عناصر معماری در شکلهای معمول خود باقی ماندهاند، پله — که معمولاً سطوح را به هم متصل میکند — از این نقش سر باز میزند.
این پروژه بخشی از پژوهشی گستردهتر در دفتر طراحی دربارهی «معماری اجرایی» است؛ تلاشی برای پرسش از اینکه فضا چگونه بر زندگی روزمره، و بر وضعیت «دیدن و دیده شدن» تأثیر میگذارد.
جهت دسترسی به پروژه های بیشتر به این صفحه از سایت مراجعه کنید.
” تمامی حقوق مادی و معنوی محتوا متعلق به پایگاه خبری جهان معماری می باشد “