- خانه
- معرفی پروژه
- پروژه های داخلی
- ویلا 12-70 – استودیو معماری صاحب





















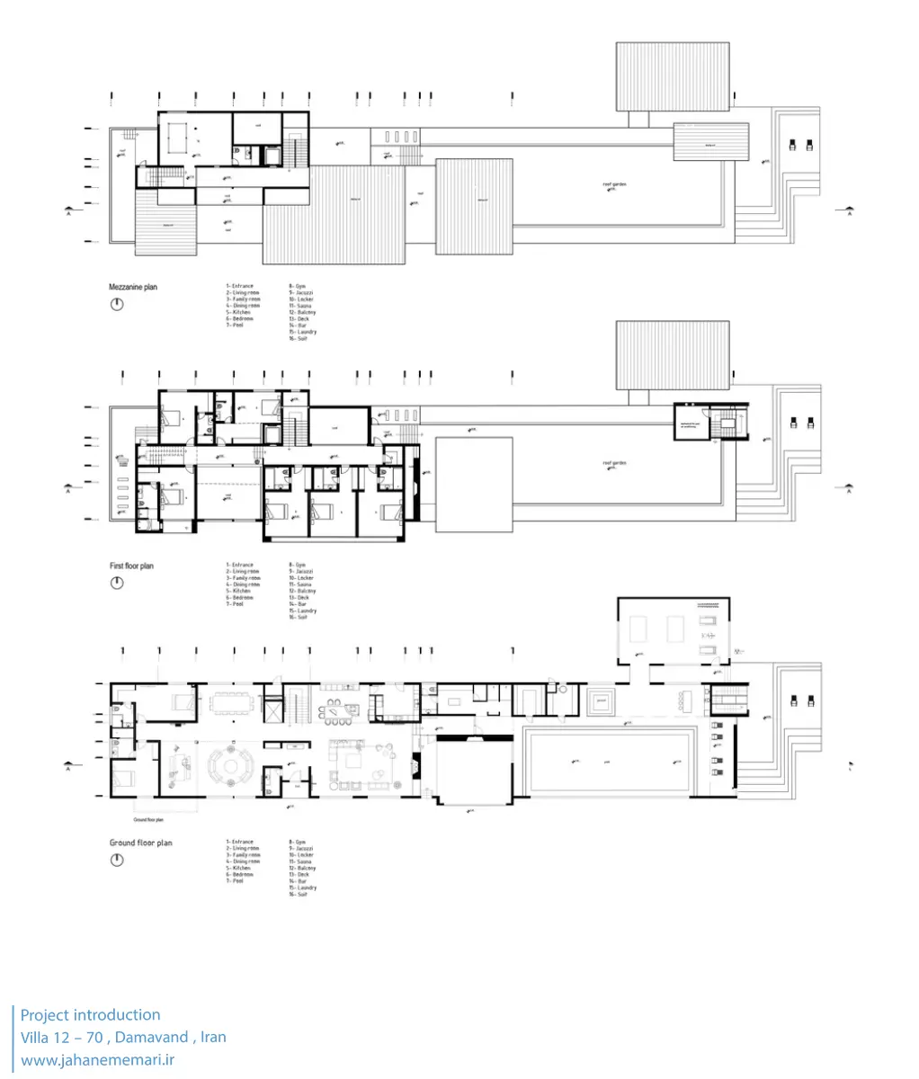
این پروژه شامل گسترش یک ویلای موجود در نزدیکی تهران است که در ابتدا برای دورهمی های خانوادگی آخر هفته استفاده می شد. خانه اصلی ۱۲ × ۱۲ متری، شامل سه اتاق خواب، دیگر نیازهای یک خانواده رو به رشد را برآورده نمی کرد و به فضای زندگی بیشتری نیاز داشت.
فرآیند طراحی ویلا بر تعریف مجدد رابطه بین اتاق های خصوصی و فضاهای مشترک متمرکز بود. به جای ایجاد یک حجم بزرگ واحد، این پروژه به هر اتاق هویتی متمایز و مستقل اختصاص می دهد که مستقیماً نیاز به گسترش را منعکس می کند. این مفهوم استقلال، هم سازماندهی فضایی و هم فرم بیرونی را شکل داده و به هر فضا اجازه می دهد تا در ساختار کلی به وضوح قابل مشاهده باشد.
این استراتژی بعداً به عملکردهای ثانویه نیز گسترش یافت. یک فضای گردهمایی نیمه باز در مرکز ویلا قرار داده شد تا امکان استفاده در تمام طول سال را فراهم کند، که با یک راه پله منتهی به پشت بام و یک فضای ورزشی همراه است. این فضاها به صورت حجم های سفید مجزا با سقفهای شیبدار تصور می شوند که از طریق یک زبان معماری منسجم، متحد شده اند.
این گسترش به سمت شرق امتداد می یابد و طول ساختمان را از ۱۲ متر به ۷۰ متر و ارتفاع کلی آن را به ۶.۵ متر افزایش می دهد. این ویلا که به سمت جنوب جهت گیری شده است، نور روز را در تمام فضاهای داخلی به حداکثر می رساند و در عین حال ارتباط بصری قوی با باغ را حفظ می کند.
جهت دسترسی به پروژه های بیشتر به این صفحه از سایت مراجعه کنید.
” تمامی حقوق مادی و معنوی محتوا متعلق به پایگاه خبری جهان معماری می باشد “
بادرود بااینکه پروژه تهرانی است ولی از زمین استفاده متراکم نشده؟
نما وحجم چالبه.