- خانه
- معرفی پروژه
- پروژه های داخلی
- آپارتمان مسکونی صفری – دفتر معماری اشعری


















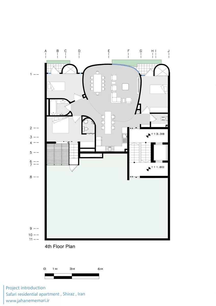
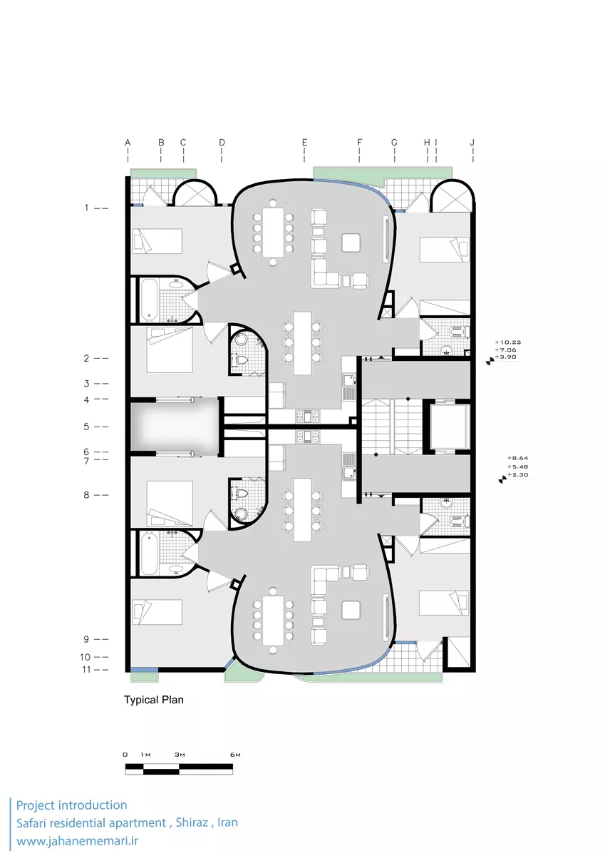
پروژه مسکونی صفری در جنوب شرقی شیراز در یکی از قدیمی ترین قسمت های شهر واقع شده است. امروزه توجه معماران در شهر بیشتر تمرکز بر نواحی ثروتمند و عدم انجام پروژه های خلاقانه در نواحی فقیرتر است. وضعیت محیط سایت در حال کاهش و معماری فراموش شده است که بر ساختار شهر و جنبه بصری منطقه تاثیر می گذارد. به همین دلیل، چشم انداز اولیه برای ساخت این پروژه تلاش کوچکی است برای احیای وضعیت رکود طراحی سایت است.
ایده طراحی بر پایه ساخت یک ارتباط و وابستگی در همه طبقات بود. این عنصر مرکزی که در پوسته داخلی آجر است، اثری انتقالی از نمای دو بعدی به نمای سه بعدی دارد. با چرخش و خم شدن دیوار این هسته اصلی (حلقه) یک قسمت از فضای شخصی داخلی به فضای تراس اختصاص داده شده است و نمای ساختمان به عنوان رابط بین فضای شهری و داخل ساختمان شکل گرفته بود. در نتیجه، اتاق نشیمن و نهار خوری در هر طبقه ساخته شد. بر این اساس، بیشتر فضاهای داخلی و بیرونی برای کمک به ایجاد زوایای دید بیشتر بر روی چشم انداز نمای بیرونی با هم ترکیب شدند.
همچنین دیوارهای شخصی(اتاق ها) با یک عقب نشینی کوچک -درعین داشتن تراس- به سطح بالایی از حریم خصوصی رسیده اند. تشکیلات نمای سه بعدی به ایجاد سلسله مراتب و تشخیص نواحی خصوصی و عمومی واحدهای مسکونی در نمای بیرونی کمک می کند. با توجه به محدودیت هایی که شهرداری در غیاب اشرافیت با آن مواجه بود ما مجبور بودیم دید را به ارتفاع ۱٫۷ متر متصل کنیم. ایده ما برای جذب حداکثر دید فضای بیرونی ایجاد پوسته آجری متخلخل و ترکیب آن با نما بود. ساخت این دیوارهای آجری، علاوه بر دید مستقیم از بیرون، باعث شده است ساکنان در حین استفاده از فضاهای ساختمان از بیرون دیده نشوند. زیر این دیوارهای شبکه ای باز است و نوارهایی برای رشد گیاهان گذاشته شده اند که به خوبی دید را محدود می کنند. با استفاده از نور طبیعی به جای روشنایی بی شکل و فرم تلاش کردیم با ایجاد کنتراست نوری و عبور آن از “فخرو مدین” حالت احساسی در ساکنان به وجود بیاوریم. به علاوه در طول شب، روشنایی داخل از بیرون در ایجاد دید و تجسم بصری کمک می کند. به علاوه با گذاشتن دریچه های آجری – به منظور دنبال کردن و انتقال نور طبیعی- در بخش های آجری نما با چرخاندن حدود ۲۰ درجه آجر ها بر روی قوس ۱۸۰ درجه ای، سعی شده تا با نور و سایه ها بازی شود و در نهایت پویایی و تغییر به وجود بیاید.
ما در زمان های مختلف بافت داشتیم، به علاوه از آجرهای شیشه ای به عنوان متریالی شفاف و کنترل کننده نور در چشم انداز داخلی ساختمان استفاده کردیم.
جهت دسترسی به پروژه های بیشتر به این صفحه از سایت مراجعه کنید.
” تمامی حقوق مادی و معنوی محتوا متعلق به پایگاه خبری جهان معماری می باشد “