- خانه
- معرفی پروژه
- پروژه های خارجی
- موزه ملی زاید | Zayed National Museum




























































معمار: Foster + Partners
سال: 2025
مساحت: 88870 متر مربع
شهر: ابوظبی
کشور: امارات متحده عربی
عکاس: Nigel Young
توضیحات پروژه ارائهشده توسط معماران: (متن ترجمه شده از انگلیسی)
موزهٔ ملی زاید درهای خود را به روی عموم گشوده است. این موزهٔ ملی جدید امارات متحدهٔ عربی، که در قلب منطقهٔ فرهنگی سعدیات در ابوظبی واقع شده، تاریخ امارات را از نخستین شواهد سکونت انسانی تا شکلگیری تمدنهایی که فرهنگ و هویت آن را ساختهاند، روایت میکند؛ روایتی که ریشه در ارزشهای بنیانگذار امارات، مرحوم شیخ زاید بن سلطان آل نهیان دارد. فرم بنا بهگونهای طراحی شده است که هم به چالشهای تداوم حیات در محیط بیابانی پاسخ دهد و هم بازتابدهندهٔ سنتهای فرهنگی عمیق امارات باشد.
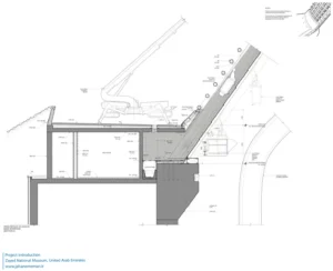
پنج بال سبکوزن فولادی موزه بخشی از سامانهٔ تهویهٔ طبیعی بنا هستند. دریچههای هوا در بالای برجها باز میشوند و با بهرهگیری از فشار منفی در سمت پناهبادِ فرم، هوای گرم را از آتریوم به بیرون میکشند؛ فرآیندی که با اثر حرارتی ناشی از تجمع گرما در نوک بالها تقویت میشود. هوایی که بهطور طبیعی از طریق لولههایی مدفون در عمق زمین بیابانی خنک شده است، سپس از طریق سامانهٔ تهویهٔ کمارتفاع وارد آتریوم میشود. بالها با شیشه پوشیده شدهاند تا نور طبیعی را به گالریهای زیرین هدایت کنند و هر یک از آنها بهصورت مستقل قابل تنظیم است.
فضاهای موزه درون تودهای تپهمانند قرار گرفتهاند که دارای پنلهای بافتدار و چندوجهی است؛ انتزاعی از توپوگرافی امارات متحدهٔ عربی. این تودهٔ حجمی، فضاهای داخلی را از جذب تابش خورشید محافظت کرده و همچون سپری حرارتی، از ورود گرما به ساختمان جلوگیری میکند. هنگامی که بازدیدکنندگان وارد موزه میشوند، به آتریوم نورگیر یا اللیوان قدم میگذارند؛ فضایی که هم نقش محل گردهمایی و هم جهتیابی را بر عهده دارد و میزبان اجراهایی چون رقصها و اشعار سنتی است.
از میان شش گالری دائمی، چهار گالری کپسولیشکل بر فراز اللیوان معلق هستند و محیطهایی کنترلشده فراهم میکنند تا از آثار حساس به نمایشدرآمده محافظت شود. شیشههای سهلایهٔ برجها میزان نور روز ورودی به لابی و فضاهای گالری را تنظیم میکنند. این شیشهها شامل یک لایهٔ مشبک متراکم هستند و هر کپسول دارای نورگیر سقفی از شیشهٔ الکتروکرومیک است که شفافیت خود را متناسب با میزان نور بیرونی تغییر میدهد.
نورمن فاستر، بنیانگذار و رئیس اجرایی دفتر معماری فاستر + همکاران، میگوید:
«موزهٔ ملی زاید داستان شکلگیری امارات به رهبری شیخ زاید و ابعاد گوناگون میراث او—از جمله چشماندازش برای سبزکردن بیابان—را روایت میکند. خودِ ساختمان تجلی پایداری است؛ با پنج بال آیرودینامیک که بخشی جداییناپذیر از سامانهٔ زیستمحیطی بنا هستند و همچون دودکشهای حرارتی عمل کرده و هوای خنک را به فضاهای عمومی میکشانند. این بالها همچنین نمادی از علاقهٔ شیخ زاید به ورزش سنتی شاهینبازیاند و به نشانههایی شاخص در خط آسمان شهر تبدیل شدهاند.»
هر یک از گالریهای کپسولیشکل بر اساس یک موضوع مشخص ساماندهی شدهاند، در حالی که فضاهای گرهایِ میان آنها اطلاعات زمینهای ارائه میدهند که این گالریها را به یکدیگر پیوند میدهد. بازدیدکنندگان میتوانند مسیر خود را در میان گالریها انتخاب کرده و از طریق یک پلکان مارپیچ مجسمهگون یا آسانسورها به تراز فوقانی دسترسی یابند. در تراز همکف نیز دو فضای گالری دائمی دیگر در نزدیکی ورودیهای موزه قرار دارند، بههمراه یک فضای نمایش موقت، رستوران سطح بالا و یک کافه.
در بیرون ساختمان موزه، علاقهٔ شیخ زاید به طبیعت در قالب باغ المسار بازتاب یافته است؛ باغی که بنا را به ساحل متصل میکند. این باغ با تلفیق منظر و میراث، بهعنوان یک دارایی اجتماعی جدید برای جامعه طراحی شده و فضاهایی برای تعامل اجتماعی، بازی و تأمل فراهم میآورد. بازدیدکنندگان همچنین میتوانند از مسیری سایهدار از تراز همکف به سکوی دید در بالای تپه، در پای برجهای فولادی، دسترسی یابند؛ سکویی که چشماندازهای پانورامایی از پیرامون ارائه میدهد.
مصالح با دقت انتخاب شدهاند تا با بستر محلی همخوانی داشته و بازتابدهندهٔ بناهای تاریخی در سراسر هفت امارت باشند؛ بناهایی که تغییر رنگ شن در مناطق مختلف را منعکس میکنند. در ادامهٔ این سنت، هم نمای بیرونی و هم فضاهای داخلی موزه، رنگ سفیدِ گرم و شاخص شنهای جزیرهٔ سعدیات را بازتاب میدهند. این پروژه با همکاری نزدیک ادارهٔ فرهنگ و گردشگری ابوظبی به انجام رسیده است.
عالیجناب محمد خلیفه المبارک، رئیس ادارهٔ فرهنگ و گردشگری ابوظبی، میگوید:
«موزهٔ ملی زاید به داستان ملت ما خانهای دائمی میبخشد. این موزهٔ ملی، گذشتهٔ ما را حفظ و روایت میکند و نسلها را به یکدیگر پیوند میدهد. اینجا مکانی است که فرزندان و نوههای ما با ارزشهایی آشنا میشوند که این کشور را بنا نهاد: اتحاد، فروتنی، گشودگی و احترام به میراث. اینها اصولی زندهاند که همچنان ما را هدایت میکنند و بازدیدکنندگان از سراسر جهان، با عبور از این گالریها، درکی عمیقتر از امارات متحدهٔ عربی—گذشته، حال و آینده—بهدست خواهند آورد.»
جرارد اوِندن، رئیس استودیو در دفتر معماری فاستر + همکاران، نیز بیان میکند:
«این پروژه به ما امکان داد تا در مقیاسی بزرگ، بسیاری از موضوعات مرتبط با معماری و طراحی پایدار—که دههها در مرکز فعالیت حرفهای ما قرار داشتهاند—را محقق کنیم. همکاری با ذینفعانی آیندهنگر که شناخت عمیقی از منطقه داشتند، تجربهای ارزشمند بود و کار ما را بهشکل معناداری ریشهدار کرد.»
جهت دسترسی به پروژههای بیشتر به این صفحه از سایت مراجعه کنید.
” تمامی حقوق مادی و معنوی محتوا متعلق به پایگاه خبری جهان معماری می باشد “