- خانه
- معرفی پروژه
- پروژه های خارجی
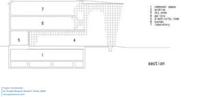
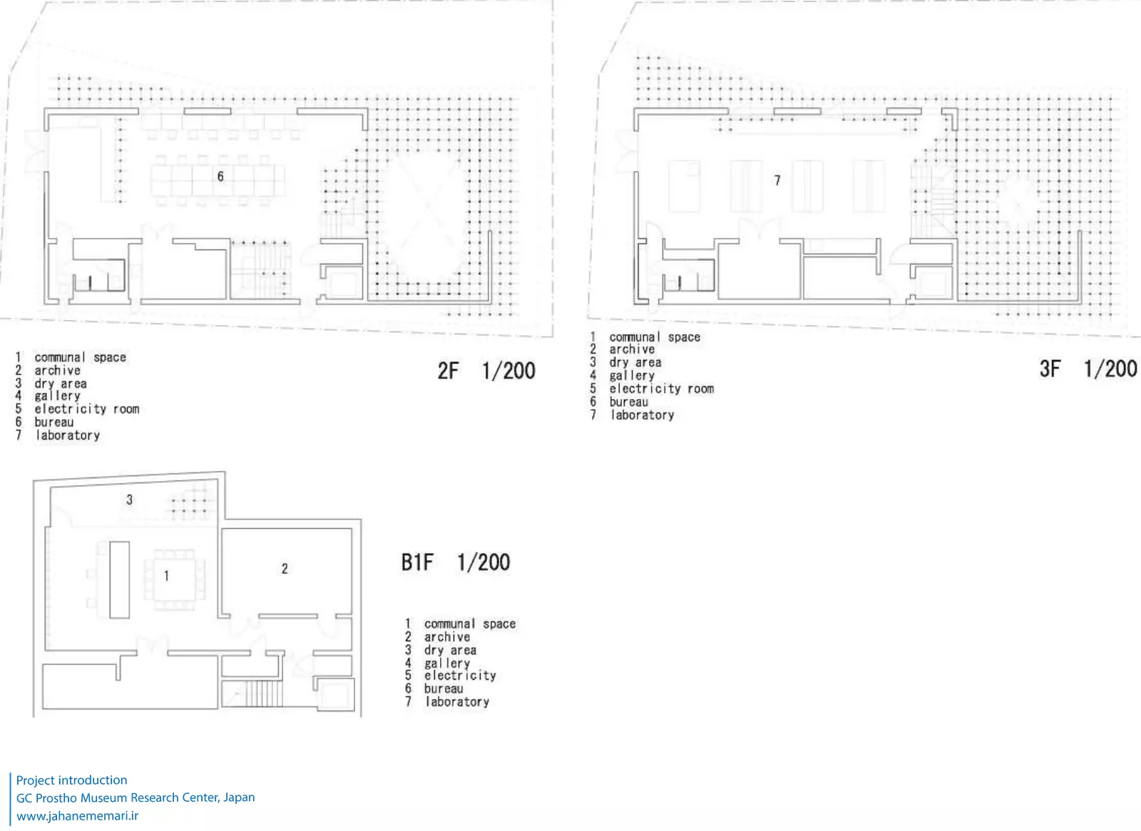
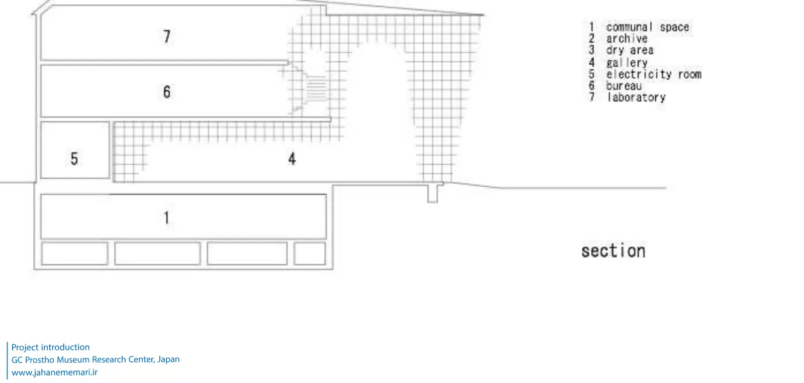
- مرکز تحقیقات موزه پروستو جیسی | GC Prostho Museum Research Center











معمار: Kengo Kuma & Associates
مساحت: 421 متر مربع
شهر: کاسوگای
کشور: ژاپن
عکاس: Daici Ano
توضیحات پروژه ارائهشده توسط معماران: (متن ترجمه شده از انگلیسی)
این معماری از سامانهای به نام سیدوری سرچشمه میگیرد؛ اسباببازیای سنتی ژاپنی. سیدوری از مونتاژ چوبدستهایی با اتصالاتی با شکل خاص تشکیل میشود که تنها با چرخاندن قطعات در یکدیگر گسترش مییابند و برای اتصال آنها نیازی به میخ یا اتصالات فلزی نیست. سنت این اسباببازی در هیدا تاکایاما—شهری کوچک در منطقهای کوهستانی—نسلبهنسل منتقل شده است؛ جایی که هنوز تعداد زیادی صنعتگر ماهر در آن فعالیت میکنند.
عنصر پایهٔ سیدوری، مقطع چوبی مربعی به ابعاد ۱۲ میلیمتر در ۱۲ میلیمتر است که در این پروژه به مقیاسهای متفاوتی تبدیل شده است. قطعات مورد استفاده ابعادی برابر با ۶۰×۶۰ میلیمتر با طول ۲۰۰ سانتیمتر یا ۶۰×۶۰ میلیمتر با طول ۴۰۰ سانتیمتر دارند و شبکهای مکعبی با مدول ۵۰ سانتیمتر در ۵۰ سانتیمتر ایجاد میکنند. این شبکهٔ مکعبی، بهطور همزمان بهعنوان شبکهٔ اصلی ویترینها و فضاهای نمایش در موزه نیز عمل میکند.
جون ساتو، مهندس سازهٔ پروژه، آزمایشهای فشاری و خمشی را برای بررسی مقاومت این سیستم انجام داد و تأیید کرد که حتی سازوکاری برگرفته از یک اسباببازی نیز میتواند برای ساختمانهایی در مقیاس بزرگ مورد استفاده قرار گیرد. این معماری امکان خلق یک «جهان» را از طریق ترکیب واحدهای کوچک—همچون اسباببازیها—با دستان انسان نشان میدهد. ما این پروژه را با این امید پیش بردیم که دوران معماریهای صرفاً ماشینی به پایان برسد و انسانها بار دیگر خود، سازندگان معماری باشند.
جهت دسترسی به پروژههای بیشتر به این صفحه از سایت مراجعه کنید.
” تمامی حقوق مادی و معنوی محتوا متعلق به پایگاه خبری جهان معماری می باشد “