- خانه
- معرفی پروژه
- پروژه های خارجی
- مرکز پمپیدو–متز | Centre Pompidou-Metz













معمار: Shigeru Ban Architects
سال: 2010
مساحت: 11330 متر مربع
شهر: متز (متس)
کشور: فرانسه
توضیحات ارائهشده توسط معماران: (متن ترجمه شده از انگلیسی)
نخستین اندیشههای من در آغاز فرایند طراحی، به دو پدیدهٔ معاصر مربوط میشد که امروزه در موزههای هنری سراسر جهان مشاهده میشوند. نخستین گرایش، که بهطور گسترده با عنوان «اثر بیلبائو» شناخته میشود، از موزهٔ گوگنهایم بیلبائو در اسپانیا—طراحیشده توسط فرانک او. گهری و تکمیلشده در سال ۱۹۹۸—نشأت گرفت. راهبرد این پروژه، خلق معماریای مجسمهگون در شهری بود که در سطح بینالمللی ناشناخته محسوب میشد، با هدف جذب گردشگر؛ راهبردی که در نهایت موفقیتآمیز بود. با این حال، دیدگاهی وجود دارد که معتقد است چنین معماریای با نادیدهگرفتن نیازهای هنرمندان و کارکنان، کارایی فضا را فدا میکند و به تولید یادمانی شخصی میانجامد که شرایط نامناسبی برای نمایش و مشاهدهٔ آثار هنری فراهم میآورد.
در سوی دیگر این طیف، رویکردی وجود دارد که به بازسازی معماریهای صنعتی قدیمی برای ایجاد فضاهایی بهینه جهت نمایش آثار هنری میپردازد؛ فضاهایی که معماری آنها، هرچند خنثی، عملکردی بسیار موفق دارند. تیت مدرن در لندن و دیا:بیکن—تکمیلشده در سال ۲۰۰۳ در شمال ایالت نیویورک برای بنیاد هنری دیا—نمونههایی موفق از این رویکرد هستند. من بهجای انتخاب هر یک از این دو قطب، تصمیم گرفتم مفهومی طراحی کنم که هم سهولت نمایش و مشاهدهٔ آثار هنری را در نظر بگیرد و هم از نظر معماری، تأثیری عمیق بر بازدیدکنندگان بر جای بگذارد.
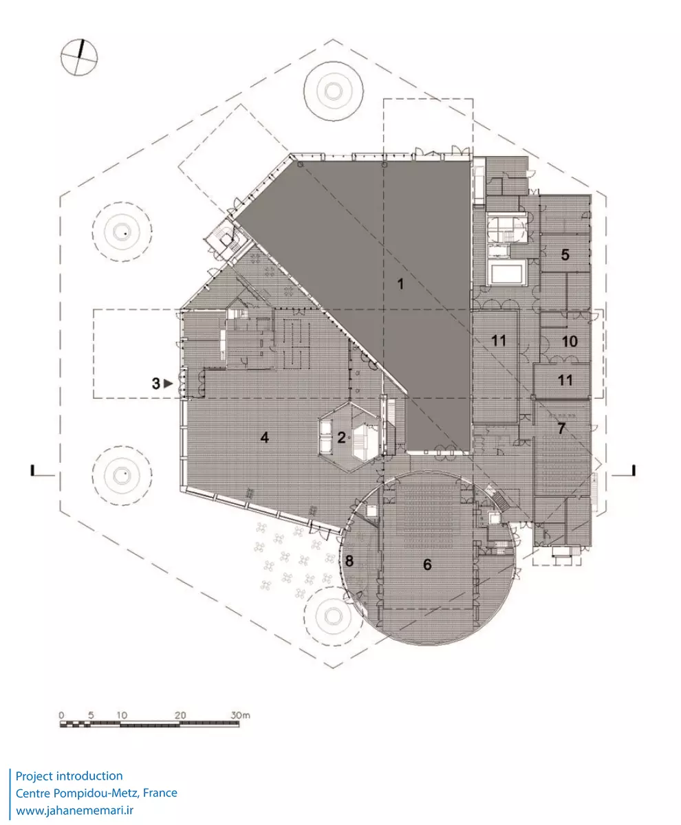
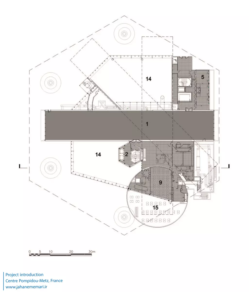
برای دستیابی به فضاهایی کارآمد، برنامهٔ پروژه را به احجامی ساده با نظام حرکتی روشن میان آنها تفکیک کردم. این احجام بهصورت سهبعدی سازماندهی شدند تا روابط عملکردی میان آنها ساده و خوانا شود.
گالریهای عمومی با نیازهای متغیر از نظر طول، بر اساس ماژولی به عرض ۱۵ متر طراحی شدند و سه لولهٔ مربعی ساده را شکل دادند که درون هر یک، حجمی مستطیلی به عمق ۹۰ متر قرار دارد. این سه لولهٔ گالری بهصورت عمودی روی یکدیگر قرار گرفته و پیرامون برجی فولادی با پلان ششضلعی سازمان یافتهاند که راهپلهها و آسانسورها را در خود جای میدهد. فضایی که در زیر سقفهای پلکانی و جابهجاشدهٔ این سه لولهٔ گالری شکل میگیرد، «گالری گراند نف» را بهوجود میآورد.
هدف اصلی از ایجاد این الحاقیه برای مرکز پمپیدو، امکان نمایش آثار بیشتری از مجموعه برای عموم بود (زیرا تنها حدود ۲۰ درصد از کل مجموعه در پاریس به نمایش گذاشته میشود) و همچنین فراهمکردن امکان نمایش آثار بسیار بزرگمقیاسی که بهدلیل ارتفاع محدود ۵٫۵ متری زیر تیرها، در موزهٔ پاریس قابل نمایش نیستند. برای پاسخ به این نیاز، ارتفاع سقف در گالری گراند نف تا ۱۸ متر حفظ شد.
سایت پروژه در محل محوطهٔ قدیمی سوزنبندی خطوط راهآهن، در جنوب ایستگاه فعلی قرار دارد و از مرکز شهری در شمال جدا افتاده است. برای ایجاد تداوم زمینهای با شهر، پنجرههای تصویری بزرگ در انتهای سه لولهٔ گالری، چشماندازهایی به سوی بناهای شاخص شهری قاب میکنند. از طریق این طراحی، بنا و شهر به یکدیگر پیوند میخورند.
پنجرهٔ تصویری لولهٔ گالری شمارهٔ ۳ در بالاترین تراز، نمای کلیسا—نماد شهر متز—را قاب میکند و لولهٔ گالری شمارهٔ ۲ چشمانداز ایستگاه مرکزی را در بر میگیرد. با توجه به نزدیکی متز به مرز آلمان و جنگهای متعدد گذشته، این شهر در چندین نوبت میان فرانسه و آلمان دستبهدست شده است. ازاینرو، این ایستگاه بخش مهمی از تاریخ شهر بهشمار میآید؛ بنایی به سبک نئورومانِسک که در دورهٔ اشغال آلمانی ساخته شده است.
علاوه بر سه لولهٔ گالری، حجمی مدور شامل استودیوی آفرینش با رستورانی در بالای آن طراحی شده و حجمی مربعیشکل نیز سالن اجتماعات، فضاهای اداری و سایر فضاهای پشتیبان را در خود جای میدهد. یک سازهٔ سقفی چوبی بهشکل ششضلعی بر فراز تمام این احجام مستقل معلق شده تا آنها را به یک کل منسجم تبدیل کند. برای فرانسویها، ششضلعی نماد کشورشان است، زیرا شباهت زیادی به شکل جغرافیایی فرانسه دارد. افزون بر این، این الگوی ششضلعی از ترکیب ششضلعیها و مثلثهای متساویالاضلاع تشکیل شده که از کلاهها و سبدهای بامبوی بافتهشدهٔ سنتی آسیایی الهام گرفتهاند.
هرچند برای ایجاد سختی درونصفحهای معمولاً استفاده از مثلث ترجیح داده میشود، تقسیم کل سطح به مثلثها موجب میشد که در هر گره، شش عضو چوبی به یکدیگر برسند و اتصالاتی بسیار پیچیده ایجاد شود. با استفاده از الگویی مرکب از ششضلعیها و مثلثها، در هر تقاطع تنها چهار عضو چوبی به هم میرسند. این اتصالات بدون استفاده از قطعات فلزی مکانیکی اجرا شدهاند، زیرا استفاده از آنها موجب حجیمشدن سطح، یکتاشدن طول اعضا، افزایش پیچیدگی و در نهایت افزایش هزینهٔ اتصالات میشد. در عوض، هر عضو همانند بافت حصیری بامبو، بر روی عضو دیگر همپوشانی پیدا میکند.
این ایده از یک کلاه بافتهشدهٔ سنتی چینی الهام گرفته شد که در سال ۱۹۹۹ هنگام طراحی پاویون ژاپن برای نمایشگاه هانوفر، آن را در یک مغازهٔ عتیقهفروشی در پاریس دیدم. در آن زمان، در حال همکاری با فرای اوتو برای طراحی پاویونی با سازهٔ پوستهٔ شبکهای از لولههای کاغذی بودم و از زمان مشاهدهٔ طراحی او برای مؤسسهٔ سازههای سبک و طراحی مفهومی دانشگاه اشتوتگارت، شیفتهٔ سازههای شبکهای کششی شده بودم، هرچند همزمان تردیدهایی نیز داشتم. دیدن آن کلاه چینی، این تردیدها را برطرف کرد.
شبکهٔ سیمی فرای اوتو امکان خلق فضایی سهبعدی با حداقل مصرف مصالح را فراهم میکرد، اما در نهایت سیم تنها عضوی خطی بود و برای ساخت یک بام معمولی، ناگزیر باید پوستهای چوبی بر روی آن شکل میگرفت. با مشاهدهٔ این مسئله، به امکان ساخت سازهای شبکهای با چوبِ لمینیتشده اندیشیدم که بتوان آن را بهراحتی در دو بعد خم کرد و بام را مستقیماً بر روی آن قرار داد. از آنجا که چوب میتواند هم بهعنوان عضو کششی و هم فشاری عمل کند، این ایده شکل گرفت که سازهای پوستهای فشاری نیز حاصل شود، نه صرفاً شبکهای کششی.
از آن زمان تاکنون، به توسعهٔ سازههای چوبی ادامه دادهام؛ از جمله طرح پیشنهادی موزهٔ یادبود اونو چیو (ایواکونی، ۲۰۰۰)، مرکز نگهداری کودکان بیمارستان ایمای (آکیتا، ۲۰۰۱)، سالن ورزشی یادبود آتسوشی ایمای (آکیتا، ۲۰۰۲)، بام بامبو (هیوستون، ۲۰۰۲)، طرح پیشنهادی آزمایشگاه فرای اوتو (کلن، ۲۰۰۴)، و این مسیر نهایتاً به بام تکمیلشدهٔ مرکز پمپیدو–متز انجامید. در مرحلهٔ مسابقه، با تکیه بر تجربیات پروژهٔ بام بامبو، سیسیل بالموند از شرکت آروپ مسئول سازهٔ بام بود و سازهای ترکیبی از چوب و فولاد پیشنهاد شد، اما پس از برندهشدن در مسابقه، همانگونه که توضیح داده شد، سازهای کاملاً چوبی توسعه یافت.
یکی دیگر از جنبههای مهم مفهوم پروژه، تداوم فضاهای داخلی و خارجی و توالی فضایی ناشی از این ارتباط است. ساختمانها معمولاً جعبههایی هستند که تنها زمانی آغاز میشوند که دیوارها میان داخل و خارج تمایز ایجاد کنند؛ اما فضا میتواند صرفاً با حضور یک سقف نیز شکل بگیرد. در سالهای اخیر، هنر بهطور فزایندهای مفهومی شده و از عموم مردم فاصله گرفته است. شمار افرادی که تمایلی به پرداخت هزینه برای ورود به یک جعبه و دیدن آثاری که شاید درک نکنند ندارند، رو به افزایش است.
بهجای یک جعبه، این موزه بهعنوان مکانی برای گردهمایی زیر یک سقف بزرگ طراحی شده است که امتدادی از پارک پیرامون محسوب میشود. از آنجا که ورود بدون دیوار آسانتر است، نما از کرکرههای شیشهای تشکیل شده که بهراحتی قابل جمعشدن هستند. گالری ملی جدید میس ون در روهه در برلین دارای دیوارهای تمامشیشهای است، اما تنها از نظر بصری شفاف است و نمیتوان آن را شفاف از نظر فیزیکی دانست.
حجم بزرگ فضای فوروم بهصورت رایگان قابل دسترسی است؛ جایی که مردم میتوانند چای بنوشند و آزادانه از مجسمهها و چیدمانها لذت ببرند، در حالی که با دیدن glimpses از آثار داخل گالریها، بهتدریج به پیشروی در توالی فضاها ترغیب میشوند. فضاهای میانی میان سقف بزرگ و هر یک از احجام، کارکردهای متعددی دارند: نخست، بهعنوان فضای گردهمایی عمل میکنند؛ دوم، بر فراز لولههای گالری ۱ و ۲، به فضاهای نمایش مجسمه تبدیل شدهاند که از نور طبیعی فیلترشده از سقف بهره میبرند. این ۸۴۰ متر مربع فضای نمایشگاهی، فضاهایی اضافه بودند که در برنامهٔ اولیه درخواست نشده بودند.
متأسفانه، رستورانی که در مرحلهٔ مسابقه بر فراز لولهٔ گالری شمارهٔ ۳ پیشنهاد شده بود، بهدلیل محدودیتهای بودجهای حذف شد (بر اساس مقررات ساختمانی فرانسه، فضاهای عمومی در ارتفاع بیش از ۲۸ متر از سطح زمین، ساختمان بلندمرتبه محسوب میشوند که الزامات پیچیدهای برای تخلیهٔ اضطراری و ایمنی ایجاد میکند). اینها مفاهیم بنیادین این معماری هستند.
جهت دسترسی به پروژههای بیشتر به این صفحه از سایت مراجعه کنید.
” تمامی حقوق مادی و معنوی محتوا متعلق به پایگاه خبری جهان معماری می باشد “