- خانه
- معرفی پروژه
- پروژه های داخلی
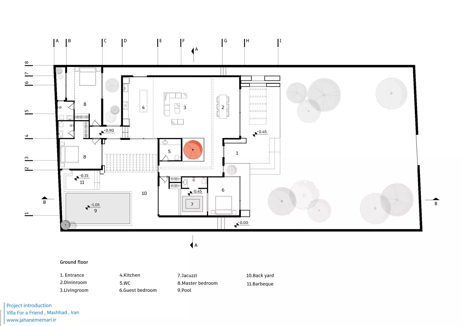
- ویلایی برای یک دوست – فضای معماری کنج






















این پروژه با نگاهی مفهومی به ایدهی شفافیت، تلاش دارد مرزهای متعارف میان درون و بیرون، فرد و جمع، خلوت و حضور را بازتعریف کند. معماری این ویلا، نه در پی خلق فرمهایی پیچیده، بلکه در پی حذف واسطههاست، برای رسیدن به تجربهای مستقیم، بیپیرایه و صادقانه از فضا.
الهامگرفته از رمان میرا اثر کریستوفر فرانک، که در آن شفافیت بهعنوان نوعی صداقت وجودی میان انسانها مطرح میشود، «ویلا برای یک دوست» کوشیده تا این شفافیت را از سطح استعاره به سطح فیزیکی فضا بیاورد. در اینجا، دیوارها نه مرز، که بستر جریاناند؛ و سکونت، نه پنهانزیستی، که حضوری آشکار و در لحظه است.
جهت دسترسی به پروژه های بیشتر به این صفحه از سایت مراجعه کنید.
” تمامی حقوق مادی و معنوی محتوا متعلق به پایگاه خبری جهان معماری می باشد “