- خانه
- معرفی پروژه
- پروژه های خارجی
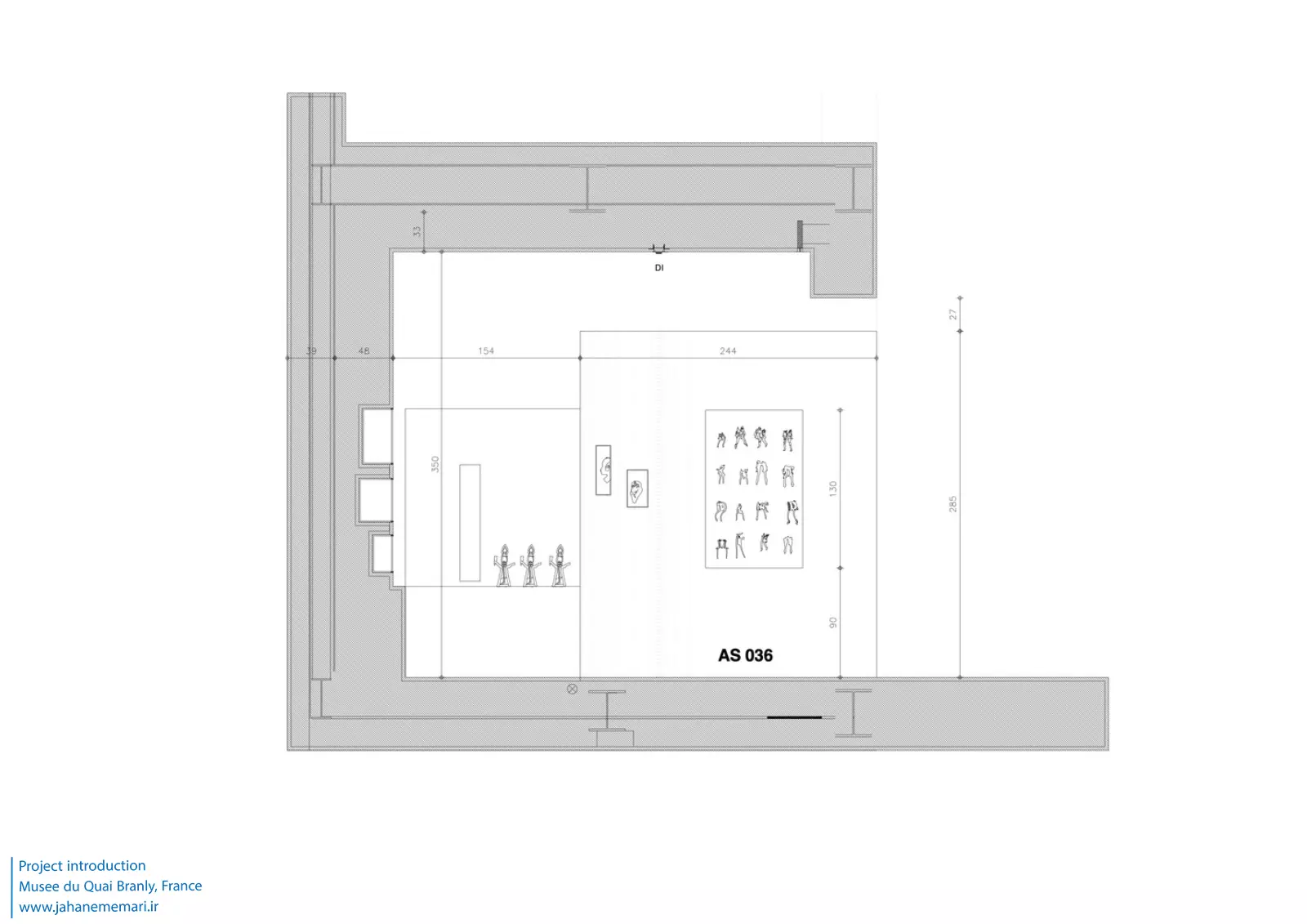
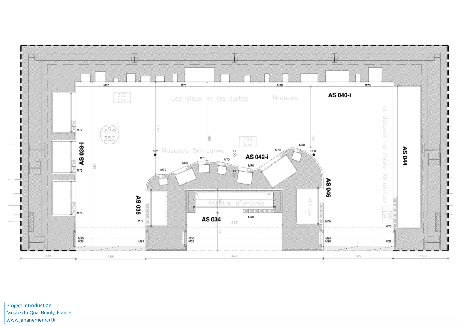
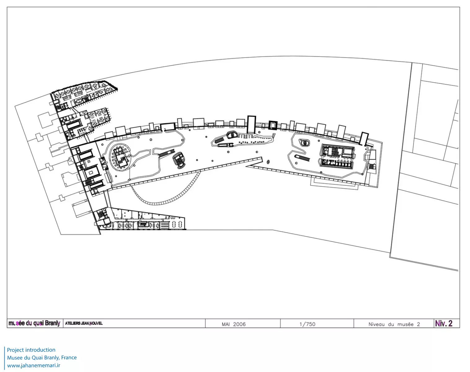
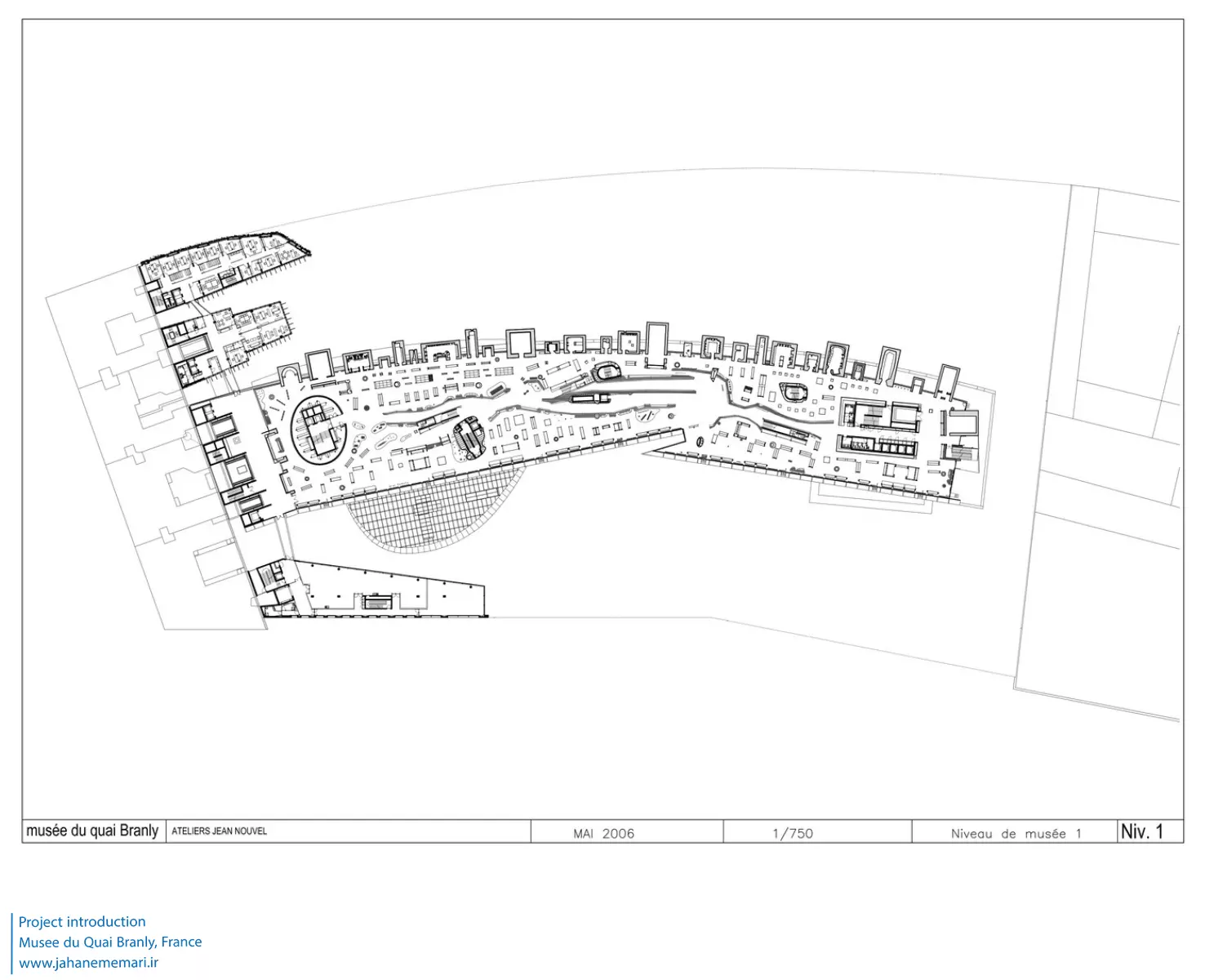
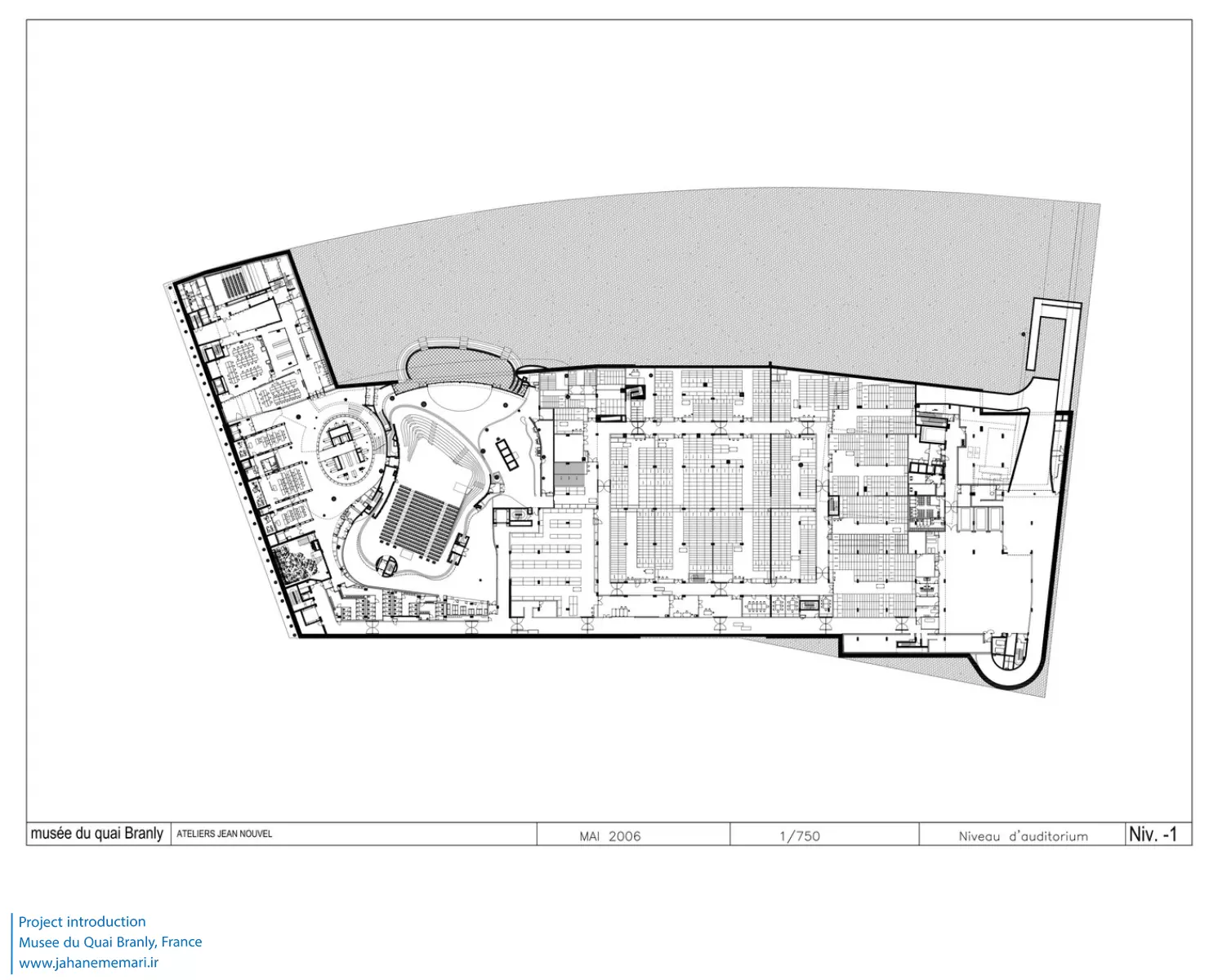
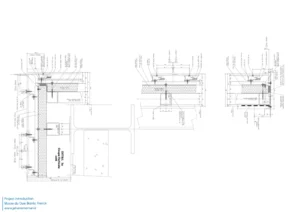
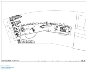
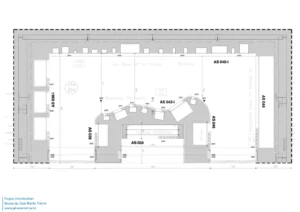
- موزه کوآی برانلی | Musée du quai Branly





















معمار: Ateliers Jean Nouvel
سال: 2006
مساحت: 76500متر مربع
شهر: پاریس
کشور: فرانسه
عکاسان: Clément Guillaume, Roland Halbe, Philippe Ruault
توضیحات ارائهشده توسط معماران: (متن ترجمه شده از انگلیسی)
این بنا موزهای است که بر پایهٔ یک مجموعهٔ مشخص شکل گرفته؛ موزهای که در آن همهچیز با هدف برانگیختن واکنشی احساسی نسبت به شیء اصلی طراحی شده است: از محافظت آن در برابر نور، تا در عین حال، شکار همان پرتو نادر نوری که برای لرزاندن آن و بیدارکردن بُعد معنویاش ضروری است. این مکان، زیستگاهی آکنده از نمادهای جنگل و رودخانه، وسواسهای مرگ و فراموشی، و پناهگاهی برای آثار سانسورشده و طردشده از استرالیا و قارهٔ آمریکا است. این فضایی پُربار و سنگین است که با گفتوگوهای ارواح نیاکانی انسانها تسخیر شده؛ انسانهایی که با کشف وضعیت انسانی خود، خدایان و باورها را ابداع کردند. این مکان، جایی یگانه و غریب است؛ شاعرانه و در عین حال ناآرامکننده.
معماری این بنا باید بیانهای خلاقانهٔ متعارف غربیِ امروز را به چالش بکشد. بنابراین، باید با سازههای مرسوم، سامانههای مکانیکی، دیوارهای پردهای، راهپلههای اضطراری، جانپناهها، سقفهای کاذب، پروژکتورها، پایهها و ویترینها خداحافظی کرد. اگر این عناصر ناگزیر به حفظ عملکرد خود هستند، باید از دید و حتی از آگاهی ما محو شوند؛ باید در برابر اشیای مقدس ناپدید شوند تا امکان همحضوری و ارتباط معنوی با آنها فراهم آید. گفتن این امر ساده است، اما تحقق آن دشوار…
معماری حاصل، شخصیتی غیرمنتظره دارد. آیا با شیئی کهنالگویی روبهرو هستیم؟ نوعی بازگشت به عقب؟ نه، کاملاً برعکس؛ زیرا برای دستیابی به این نتیجه، پیشرفتهترین فناوریها بهکار گرفته شدهاند: پنجرهها بسیار بزرگ و بسیار شفافاند و اغلب با تصاویر عظیم چاپشده پوشیده شدهاند؛ ستونهای بلند با جانمایی تصادفی ممکن است با درختان یا توتمها اشتباه گرفته شوند؛ سایهبانهای چوبی، سلولهای فتوولتائیک را در خود جای دادهاند. ابزارها اهمیتی ندارند—آنچه اهمیت دارد نتیجه است: آنچه صلب و مادی است، گویی ناپدید میشود و این تصور را ایجاد میکند که موزه صرفاً پناهگاهی بینما در دل جنگل است. زمانی که نامادیت به بیان نشانهها میرسد، حالتی گزینشی مییابد؛ در اینجا، توهّم، اثر هنری را در آغوش میگیرد.
در نهایت، تنها چیزی که باقی میماند، آفرینش شعرِ مکان از طریق نوعی ناهمخوانی ملایم است: باغی پاریسی به جنگلی مقدس بدل میشود و موزه در ژرفای آن حل و ناپدید میگردد.
جهت دسترسی به پروژههای بیشتر به این صفحه از سایت مراجعه کنید.
” تمامی حقوق مادی و معنوی محتوا متعلق به پایگاه خبری جهان معماری می باشد “