- خانه
- معرفی پروژه
- پروژه های داخلی
- ویلای لولایی – مان آفیس

































پروژه «ویلای لولایی» از دل گفتوگوی میان نیازهای کارفرما و بستر شکل گرفت؛ گفتوگویی که در آن تلاش شد کالبد بنا نه صرفاً مجموعهای از فضاها، بلکه پاسخی معنادار به شرایط سایت و کیفیتهای زیستی مورد انتظار باشد. آغاز طراحی از لحظهای بود که زمین، با جبههای که به شمال رو به کوچه و بناهای مجاور میگشود و جبههای که از جنوب به حیاط نفس میکشید، ویژگیهای خود را آشکار کرد.
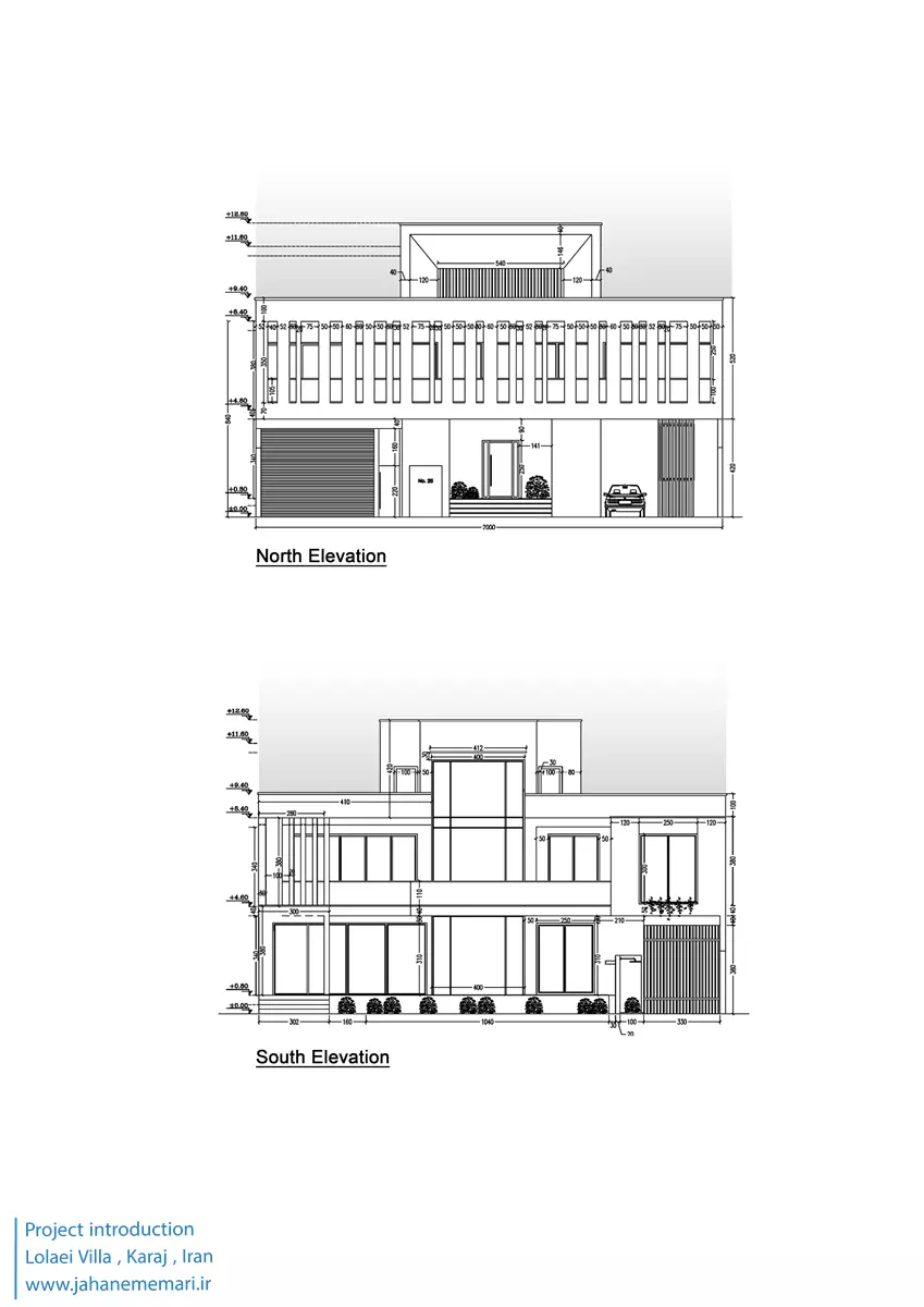
در این میان، نور، دید و حریم به سه عنصر بنیادین شکلدهندهی طرح بدل شدند. جبهه شمالی که زیر نگاه بیوقفهی کوچه قرار داشت، نیازمند لایهسازی و محافظت بود؛ بنابراین با عقبنشینی جداره، ایجاد یک تراس طولی و طراحی شیدرهایی که همچون پردههایی از نور و سایه عمل میکردند، سعی شد مرزی شاعرانه میان درون و بیرون ایجاد گردد؛ مرزی که هم حریم را پاس میدارد و هم در قوامبخشی به شخصیت نمای بنا نقش ایفا میکند.
در سوی دیگر، جبهه جنوبی همچون ریهی تنفسی پروژه عمل کرد؛ جایی که بنا میبایست بیپرده با حیاط و طبیعت پیرامونی در تماس باشد. به همین دلیل، آتریومی که مستقیماً با سایت در ارتباط است در دل بنا گشوده شد تا نور، هوا و منظر به عمیقترین لایههای فضا نفوذ کنند. بازشوهای طولی در این جبهه، نقش شکافهایی را دارند که نور را از سطح تا عمق هدایت کرده و کیفیتی سیال و پویا به فضا میبخشند.
آتریوم، هرچند قلب تپنده بنا، گسستی طبیعی در نمای جنوبی ایجاد میکرد. برای ترمیم این گسست، پلی از شرق به غرب کشیده شد؛ پلی که نهتنها پیوستگی بصری نما را احیا کرد، بلکه همچون آستانهای سبز، فضا را در میانه راه متعادل ساخت. این پل نور را به طبقات پایینتر هدایت کرده و بستری آرام برای استقرار سبزینه و شکلگیری خلوتگاهی درونی فراهم آورده است.
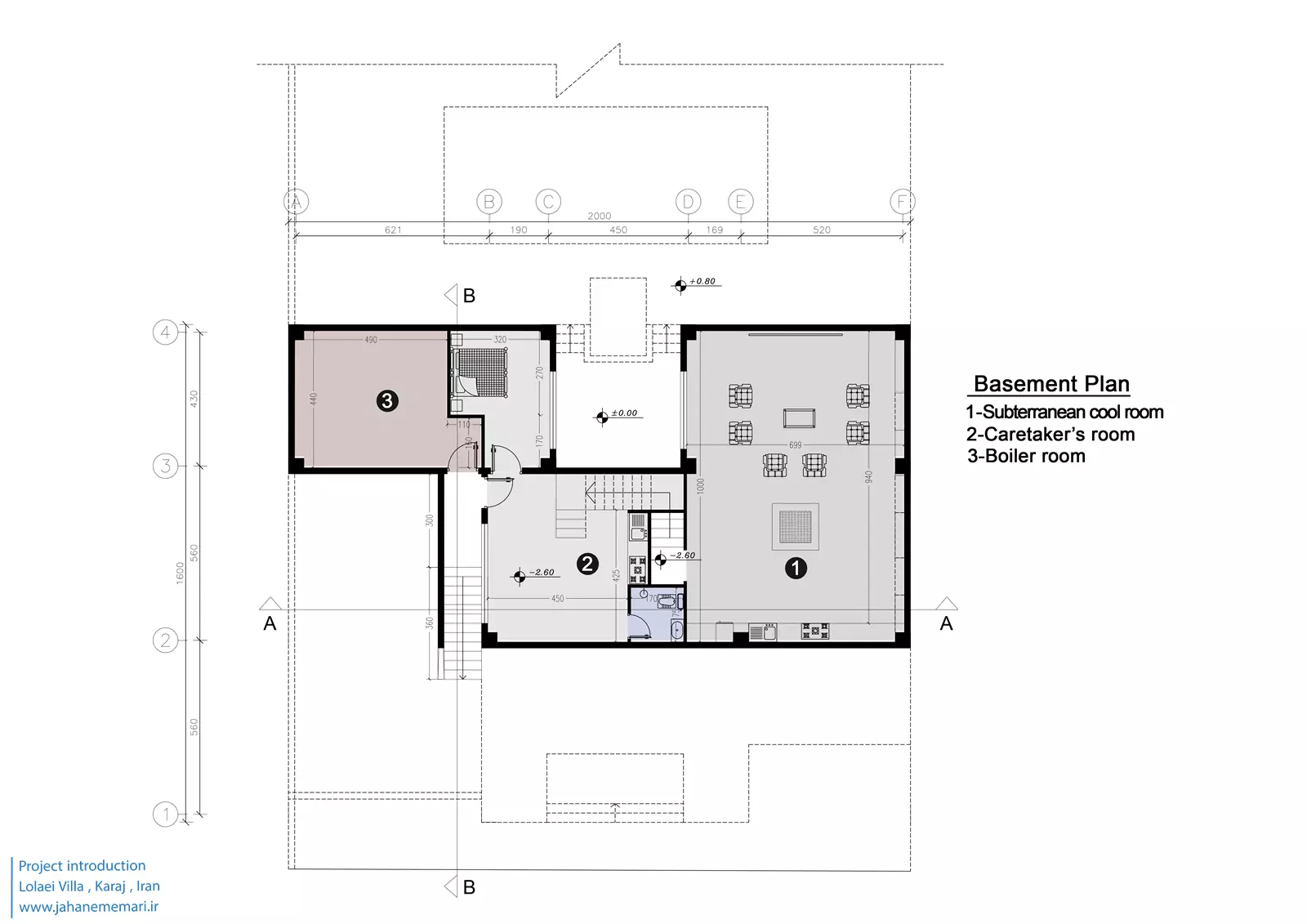
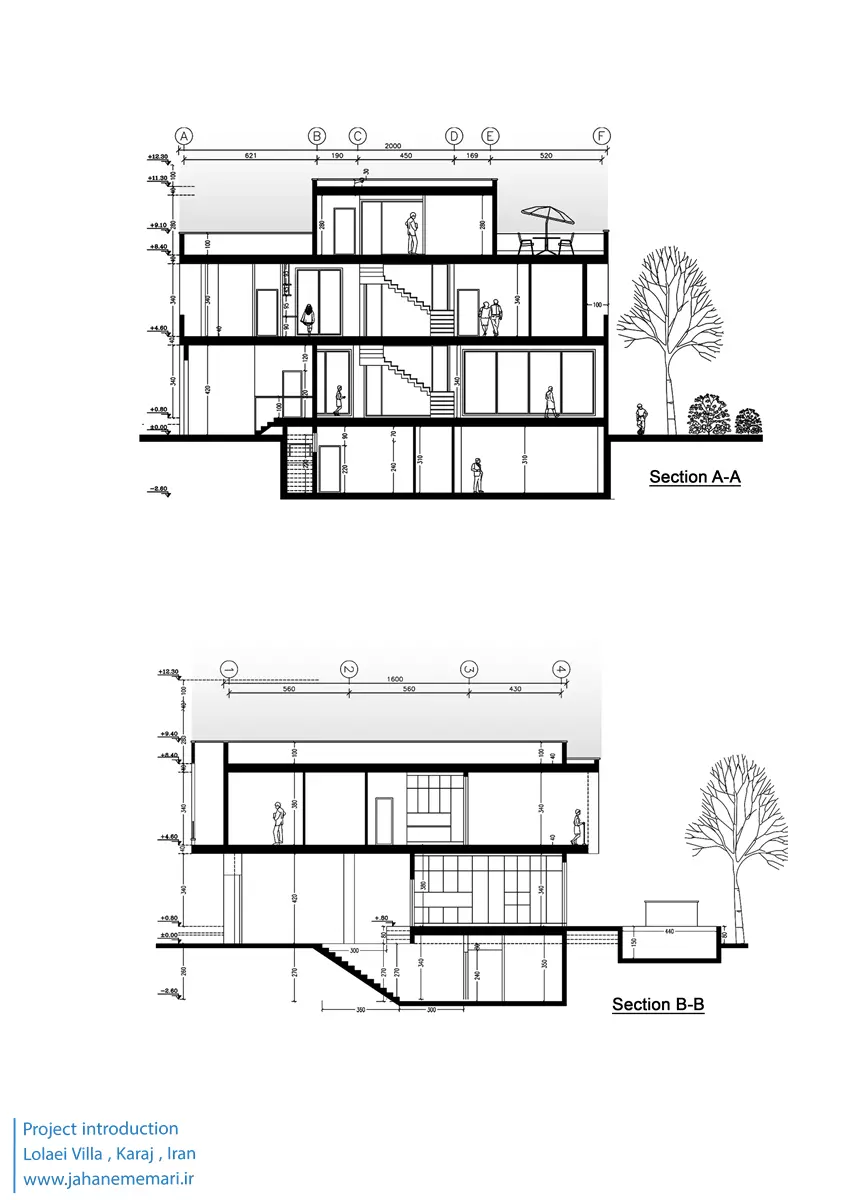
ویلای لولایی در چهار طبقه سازماندهی شده و هر سطح آن روایتی متفاوت از سکونت ارائه میدهد. زیرزمین با حضور «سردابه» همچون مکانی برای گردهمایی و آرامش، و واحد سرایداری و اتاق تاسیسات با دسترسی مستقل، نقش لایه خدماتی پروژه را بر عهده دارد.
طبقه همکف، زمینِ زندگی روزمره است؛ جایی که آشپزخانه تمیز و کثیف، پذیرایی و نشیمن و اتاق مهمان در ارتباطی روان و یکپارچه، صحنه تعامل خانواده را شکل میدهند.
طبقه اول به حریم خصوصی اختصاص دارد؛ چهار اتاق مستر، نشیمن خصوصی و آشپزخانهای فرعی در امتداد جریان آرام روز و شب قرار گرفتهاند.
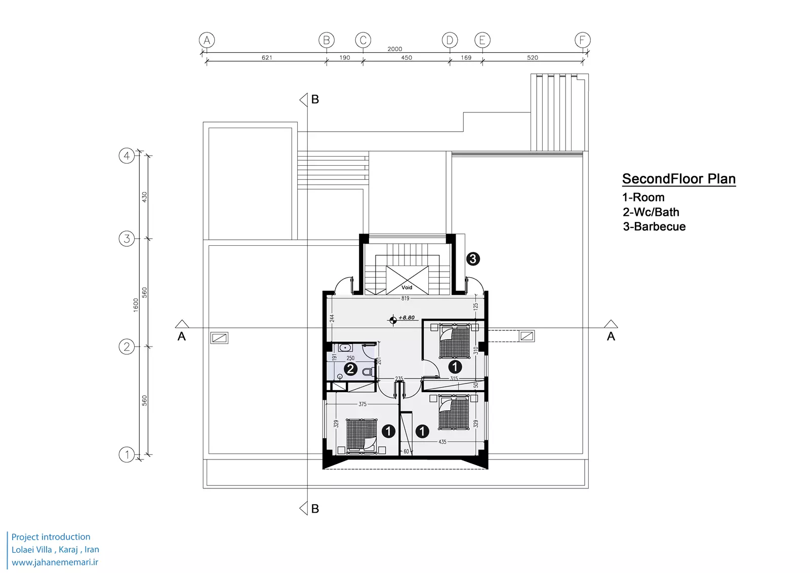
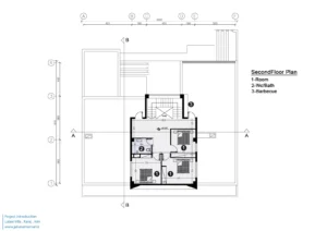
در نهایت، طبقه دوم با سه اتاق خواب و دسترسی طبیعی به روفگاردنی که چشماندازی ۳۶۰ درجه به پیرامون ارائه میدهد، تبدیل به مکانی برای نظاره، تنفس و تجربهی سکونت در بالاترین تراز بنا شده است؛ جایی که زمین و آسمان در امتداد یکدیگر معنا مییابند.
جهت دسترسی به پروژه های بیشتر به این صفحه از سایت مراجعه کنید.
” تمامی حقوق مادی و معنوی محتوا متعلق به پایگاه خبری جهان معماری می باشد “