- خانه
- معرفی پروژه
- پروژه های خارجی
- برجهای ولی | Valley Towers





















































معمار: MVRDV
سال: 2022
مساحت: 75000 متر مربع
شهر: آمستردام
کشور: هلند
عکاس: Ossip van Duivenbode
توضیحات پروژه ارائهشده توسط معماران: (متن ترجمه شده از انگلیسی)
برجهای ولی، آسمانخراشی چشمگیر با الهام از زمینشناسی و پوشیده از گیاه، که توسط دفتر معماری امویآردیوی (MVRDV) برای توسعهدهندهٔ Edge طراحی شده، روز جمعه طی مراسمی رسمی افتتاح شد.
این ساختمان با زیربنای ۷۵٬۰۰۰ مترمربع که بهتازگی توسط جوایز Emporis Awards بهعنوان بهترین آسمانخراش جدید جهان معرفی شده است، با سه برج به ارتفاع ۶۷، ۸۱ و ۱۰۰ متر و واحدهای مسکونی معلق و کنسولی چشمگیر خود، در محلهٔ Zuidas آمستردام بهوضوح متمایز است.
این ساختمان از چند جهت شاخص است: نخست آنکه فضاهای اداری، تجاری، خدمات غذایی، فرهنگی و واحدهای مسکونی را در یک مجموعهٔ واحد ترکیب میکند؛ دوم آنکه برخلاف ساختمانهای بسته و غیرقابلدسترس دیگر در زویداس، «درهٔ سبز»ی که در میان برجها و در تراز طبقات چهارم و پنجم پیچوتاب میخورد، از طریق دو راهپلهٔ سنگی بیرونی برای عموم قابلدسترس است.
کاشت گستردهٔ گیاهان که توسط معمار منظر پیت اودولف طراحی شده، میزبان حدود ۱۳٬۵۰۰ گیاه، درختچه و درخت جوان است. با رشد تدریجی این پوشش گیاهی در سالهای آینده، برجهای وَلی بهتدریج چهرهای سبزتر به خود میگیرند و این ساختمان به بیانیهای برای شهری سبزتر بدل میشود.
برجهای ولی تلاشی است برای بازگرداندن بُعدی انسانی و سبز به محیط اداری سخت و غیرانسانی زویداس آمستردام.
این بنا ساختمانی با چند چهره است: در لبههای بیرونی، پوستهای از شیشهٔ صاف و آینهای دارد که با بافت منطقهٔ تجاری هماهنگ است؛ اما درون این پوسته، بنا ظاهری کاملاً متفاوت و طبیعیتر پیدا میکند، گویی بلوک شیشهای فرو ریخته و درون آن، سطوح صخرهای ناهموار با سنگ طبیعی و پوشش گیاهی نمایان شده است.
در نقاط مختلف این مجموعهٔ سهبرجی، چشماندازهای خیرهکنندهای از شهر دیده میشود؛ از واحدهای مسکونی گرفته تا بهویژه اسکایبار واقع در بالاترین برج که بازدیدکنندگان میتوانند از طریق فروشگاه شاخص Molteni در طبقهٔ همکف به آن دسترسی پیدا کنند.
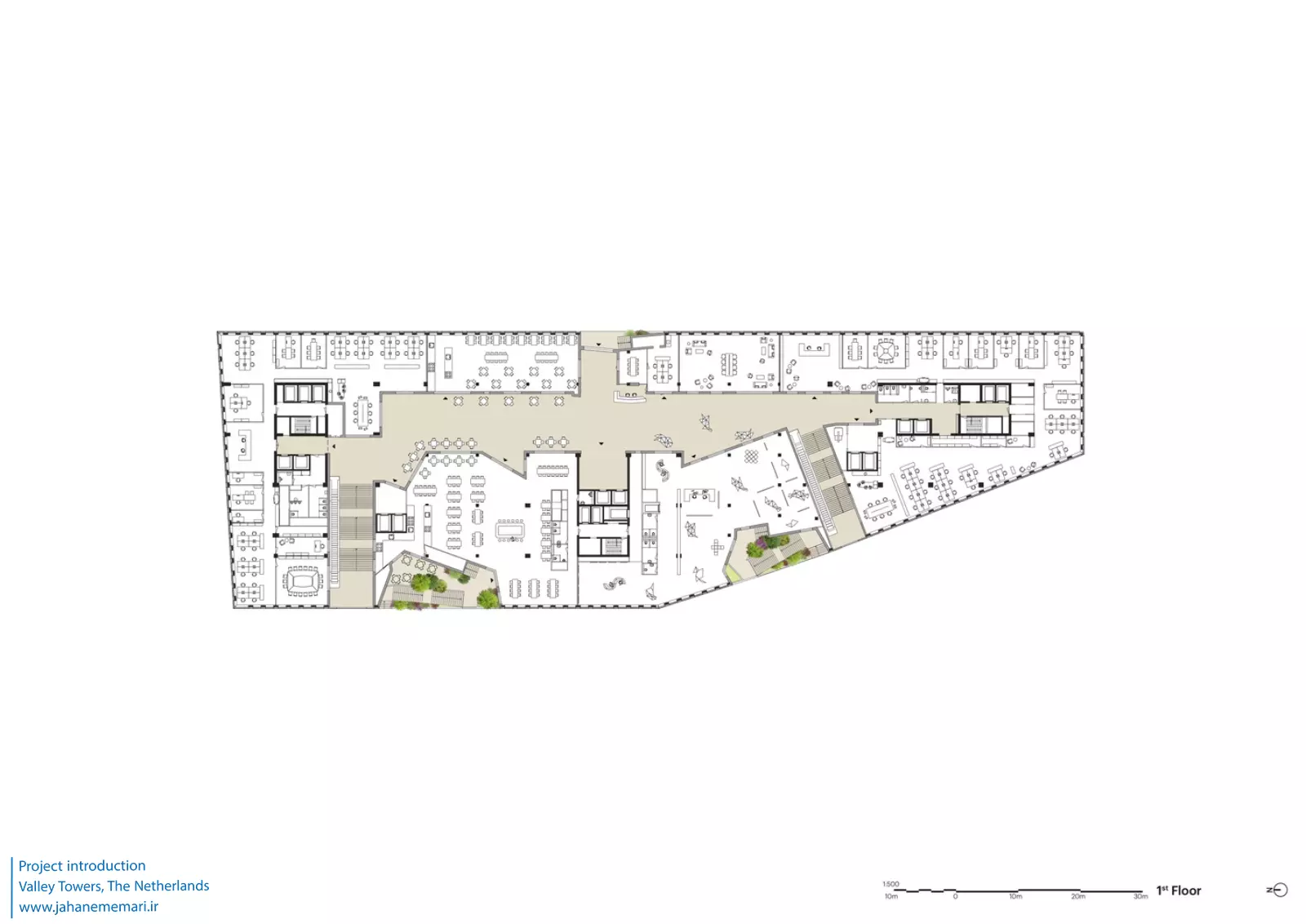
سازماندهی فضایی ساختمان برای ترکیبی از ساکنان، کارکنان و بازدیدکنندگان تنظیم شده است: بر فراز پارکینگ زیرزمینی سهطبقه، فضاهای اداری هفت طبقهٔ پایینتر را اشغال میکنند و واحدهای مسکونی از طبقهٔ هشتم به بالا قرار دارند.
بخش بزرگی از ساختمان برای عموم باز است؛ از مسیر پیادهٔ عمومی که بهصورت زیگزاگی از تراز خیابان تا درهٔ مرکزی بالا میرود، تا گروتو (Grotto)، آتریومی که در طبقهٔ اول همچون یک خیابان سرپوشیده عمل میکند و بهزودی میزبان Sapiens Lab، فضایی برای پرورش دانشمندان جوان، خواهد بود.
گروتو از طریق دو نورگیر بزرگ به فضای بیرونی متصل میشود که در تراز درهٔ بالاتر، بهصورت حوضچههای کمعمق آب نیز عمل میکنند. کف، دیوارها و سقفهای سنگ طبیعی این فضا ــ همان سنگی که در سطوح دره و برجها به کار رفته ــ نشان میدهد که تمام فضاهای عمومی ساختمان بخشی از یک ساختار زمینشناختیِ واحد به نظر میرسند.
طراحی و ساخت برجهای ولی کاملاً اختصاصی و سفارشی بوده و نیازمند تعهد مداوم صدها طراح، مهندس، سازنده، مشاور و البته کارفرما بوده است. فرم بسیار پیچیدهٔ ساختمان، دقت فوقالعادهای در جزئیات اجرایی را طلب میکرد که خود به تقویت ایدهٔ طراحی انجامیده است.
متخصصان فناوری MVRDV مجموعهای از ابزارهای دیجیتال اختصاصی طراحی کردند؛ از ابزاری که تضمین میکرد هر واحد مسکونی نور و دید کافی داشته باشد، تا برنامهای که امکان تحقق الگوی ظاهراً تصادفی بیش از ۴۰٬۰۰۰ قطعه سنگ با ابعاد متفاوت در نماها را فراهم کرد.
هر یک از ۱۹۸ واحد مسکونی دارای پلان منحصربهفرد است که این امر با طراحی داخلی دفتر Heyligers Architects ممکن شده است. پیشآمدگیها و کنسولهای جسورانهٔ برجها نیز به لطف مهندسی نوآورانه تحقق یافتهاند؛ از جمله ۱۱ سازهٔ فولادی ویژه که به سازهٔ بتنی متصل شده و نقش مهمی در ارتقای بیان فرمی ساختمان ایفا میکنند.
معمار منظر، پیت اودولف، ماتریسی طراحی کرد تا برای هر موقعیت در ساختمان، گیاه مناسب انتخاب شود؛ با در نظر گرفتن عواملی چون باد، نور خورشید، دما و نگهداری. برای مثال، درختان عمدتاً در طبقات پایینتر قرار دارند، در حالیکه سطوح بالاتر بیشتر میزبان گیاهان کوچکتر هستند.
در مجموع، بیش از ۲۷۱ درخت و درختچه و حدود ۱۳٬۵۰۰ گیاه کوچکتر در گلدانهای سنگی طبیعی کاشته شدهاند که نمایندهٔ ۲۲۰ گونهٔ گیاهی مختلف هستند. در سالهای آینده، با رشد این پوشش گیاهی، ساختمان به چشمانداز سرسبز پیشبینیشده در چشمانداز تیم طراحی نزدیکتر خواهد شد.
تنوع زیستی این چشمانداز با تعبیهٔ لانههای پرندگان و خفاشها، و همچنین هتلهای زنبور و حشرات تقویت شده است. نگهداری گیاهان و درختان تراسها از طریق سیستم آبیاری خودکار و توسط «باغبانان نما» انجام میشود و این پوشش سبز تأثیر مثبتی بر سلامت و رفاه ساکنان و کارکنان برجهای وَلی خواهد داشت.
برجهای ولی تلفیقی از دستاوردها در حوزههای پایداری، فناوری و سلامت است. عملکرد انرژی ساختمان ۳۰ درصد بهتر از الزامات محلی است؛ فضاهای تجاری گواهی BREEAM-NL Excellent دریافت کردهاند و بخش مسکونی در مقیاس GPR Building ــ ابزار ارزیابی هلندی در پنج حوزهٔ انرژی، محیطزیست، سلامت، کیفیت استفاده و ارزش آینده ــ امتیاز ۸ از ۱۰ را کسب کرده است.
جدیدترین فناوریهای هوشمند نیز در فضاهای اداری به کار گرفته شدهاند، از جمله سیستمهای اتوماسیون ساختمانی مبتنی بر IP و حسگرهایی که دادههای استفادهٔ واقعی را پایش میکنند.
ساخت برجهای ولی چهار سال به طول انجامید و نخستین ساکنان و کسبوکارها در پایان سال ۲۰۲۱ وارد ساختمان شدند. با برگزاری مراسم افتتاحیه در روز جمعه توسط مالک ساختمان، RJB Group of Companies، و توسعهدهندهٔ پروژه، Edge، این مجموعه اکنون بهطور کامل آمادهٔ استفادهٔ عمومی است.
طراحی چشمگیر ساختمان تاکنون توجه رسانهها و بحثهای گستردهای را، بهویژه در مطبوعات هلند، برانگیخته است. کیرستن هانِما در روزنامهٔ de Volkskrant مینویسد:
«بار دیگر، MVRDV نشان میدهد که تصاویر رویایی را میتوان به واقعیت ساختنی تبدیل کرد.»
او توضیح میدهد که معماران با استفاده از نرمافزارهای سهبعدی و وارد کردن معیارهایی مانند نور روز، دید، بار سرمایشی و آلودگی صوتی، طراحی را «عقلانیسازی» کردند و در نهایت، نماهایی با حدود ده زاویهٔ متفاوت شکل گرفت که پوشش سنگ طبیعی آنها همچون قطعات یک پازل کنار هم قرار گرفتهاند.
برنارد هولسمان نیز در NRC Handelsblad مینویسد:
«واحهای در بیابان سنگی زویداس.»
او تأکید میکند که برجهای وَلی نهتنها بهواسطهٔ جنگل عمودی و بخشهای کنسولی معلق ــ که یازده مورد از آنها آنقدر بزرگاند که گویی در فضا شناورند ــ بلکه بهدلیل ترکیب کاربریها، با تمام برجهایی که طی ۲۵ سال گذشته میان کمربندی A10 آمستردام و منطقهٔ Buitenveldert ساخته شدهاند، تفاوت دارد.
با فضاهای خدماتی و فروشگاهی در طبقهٔ همکف، دفاتر در هفت طبقهٔ پایین و ۱۹۸ واحد مسکونی اجارهای در اشکال و اندازههای متنوع در طبقات بالاتر، برجهای وَلی نخستین ساختمان در زویداس است که کار، زندگی و تفریح را در کنار هم ترکیب میکند.
جهت دسترسی به پروژههای بیشتر به این صفحه از سایت مراجعه کنید.
” تمامی حقوق مادی و معنوی محتوا متعلق به پایگاه خبری جهان معماری می باشد “