- خانه
- معرفی پروژه
- پروژه های داخلی
- كافه موسيقی گوشه – دفتر معماری اشعری

























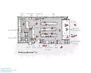
کافه گوشه در یکی از گوشه های راهروی یک مجتمع فرهنگی واقع شده است که هیچ دیدی به فضای بیرونی ندارد.
پس از چند جلسه با مالک مجتمع که از طرفداران پروپاقرص موسیقی و تئاتر است، سوال پروژه را تعریف کردیم: چگونه می توانیم فضایی دلپذیر و خصوصی برای هنرمندان ایجاد کنیم و در عین حال تعاملی بین داخل و خارج کافه ایجاد کنیم. هدف این بود که به فضای کافه تجاوز نکنیم.
در پاسخ به چالش پروژه، تیم طراحی از یکی از هنرهای نمایشی باستانی ایران به نام “سایه بازی” یا نمایش سایه الهام گرفت. در “سایه بازی”، اجرا بر اساس سایههای آبشاری مجموعهای از عروسکها روی دیوار است که توسط یک منبع نور ایجاد میشود.
این طراحی شامل پنلهای شیشه ای مات نیمه شفاف (پنلهای مات) است تا کافه را از لابی جدا کند و به عنوان صفحه ای برای آبشاری کردن سایه های بازدیدکنندگان روی آن عمل کند و “سایه بازی” را شبیهسازی کند. هر صحنه روی صفحه نمایش یک داستان مجزا را منتقل میکند. سایههای بازدیدکنندگان، تعاملی بین داخل و خارج کافه ایجاد میکند و تخیل بازدیدکنندگان را برمیانگیزد.
صحنه کافه، به عنوان عنصر اساسی کافه، در پشت پنل شیشهای شفاف قرار دارد. پنلهای شیشهای تجربهای منحصر به فرد از نمایش سایههای رویدادهایی مانند کنسرتهای موسیقی، تئاتر و اجراهای رقص را فراهم میکنند. این پدیده حس کنجکاوی را برمیانگیزد و ارتباطات و تعاملات بصری جذابی را بین کافه و بازدیدکنندگان فراهم میکند.
پنل شیشهای به صورت معلق قرار گرفته تا پاهای بازدیدکنندگان را نمایان کند و تعاملی دوگانه بین داخل و خارج کافه ایجاد کند. در نتیجه تمام حرکات طراحی، کافه از نمای بیرونی، نمایش سایه و بازدیدکنندگان را به عنوان عروسک شبیهسازی میکند. علاوه بر این، این عنصر عجیب و غریب در ساعات مختلف روز، نمایی پویا ایجاد میکند.
کمد کافه بر چیدمان مبلمان کافه تأثیر میگذارد. صحنه در مرز مشترک لابی و مجموعه سینما قرار دارد که در ضلع بیرونی کافه واقع شده است. صندلی ها و نشیمن ها به سمت صحنه و آشپزخانه در گوشه کافه قرار گرفته اند. ورودی و فضای بیرونبر بین فضای نشیمن و آشپزخانه قرار دارند.
جهت دسترسی به پروژه های بیشتر به این صفحه از سایت مراجعه کنید.
” تمامی حقوق مادی و معنوی محتوا متعلق به پایگاه خبری جهان معماری می باشد “