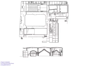
این پروژه یک سقف بزرگ و فوقمدرن را بر فراز بسیاری از ساختمانهای موجود از دهه ۱۹۲۰ بهصورت معلق نصب میکند. این سقف از طریق بازشوهای شیشهای ابریشکل سوراخشده و تمامی مجاری لازم برای گرمایش، تهویه و تهویه مطبوع را در خود جای داده است. قالب پروژه به صورت توالی جعبهها درون یک جعبه است. ابتدا، یک نمای معاصر جدید مجموعه ساختمانها را در یک جعبه مستطیلشکل احاطه میکند.
ضلع شمالی این جعبه از فولاد موجدار ساخته شده است، در حالی که نمای پردهای ساختمانهای بخش جنوبی تصویری شفاف از ورودی و نمای اصلی ساختمان ارائه میدهد. سایر اضلاع باز میمانند و منظرهای از قدیم و جدید را در درون خود به نمایش میگذارند و همچنین مجاری فنی معلق زیر سقف جدید و بالای سقفهای قدیمی را نشان میدهند. فضاهای میان دو سقف مکانهایی برای نصب تأسیسات و نمایش فیلمها فراهم میآورند که در طول یک رشته پرشکوه از پیادهروها قرار دارند.
در داخل جعبهٔ محفظه، جعبههای تأسیسات موجود فرسنوی قرار دارند که توسط جعبههای جدید طراحیشده تکمیل شدهاند، از جمله فضاهای نمایشگاه، استودیوهای صوتی و تأسیسات تولید مختلف، یک کتابخانه، یک سینما، یک رستوران، و آپارتمانهایی برای اعضای هیئتعلمی و دانشجویان—تمامی اینها از شرایط نامساعد جوی توسط پناهدهی و چتر تمامنگر سقف جدید محافظت میشوند.
سقف بهعنوان معادل مشترک پروژه عمل میکند. مطابق با تصویر سوررئالیستی از ملاقات چتر و ماشینخیاطی بر روی میز کالبدشکافی، طرح پروژه هدف دارد که رویدادهای تصادفی را با ترکیب عناصر مختلف و تراکم تصادفی تسریع کند، با قرار دادن سقف بزرگ، مدرسه و آزمایشگاه تحقیقاتی، و فرسنوی قدیمی، که مکانی برای نمایش است، در کنار هم. این مجموعه از نظر مفهومی دقیق و منطقی است و از نظر تنوع فضایی، غنی و شاعرانه است.












