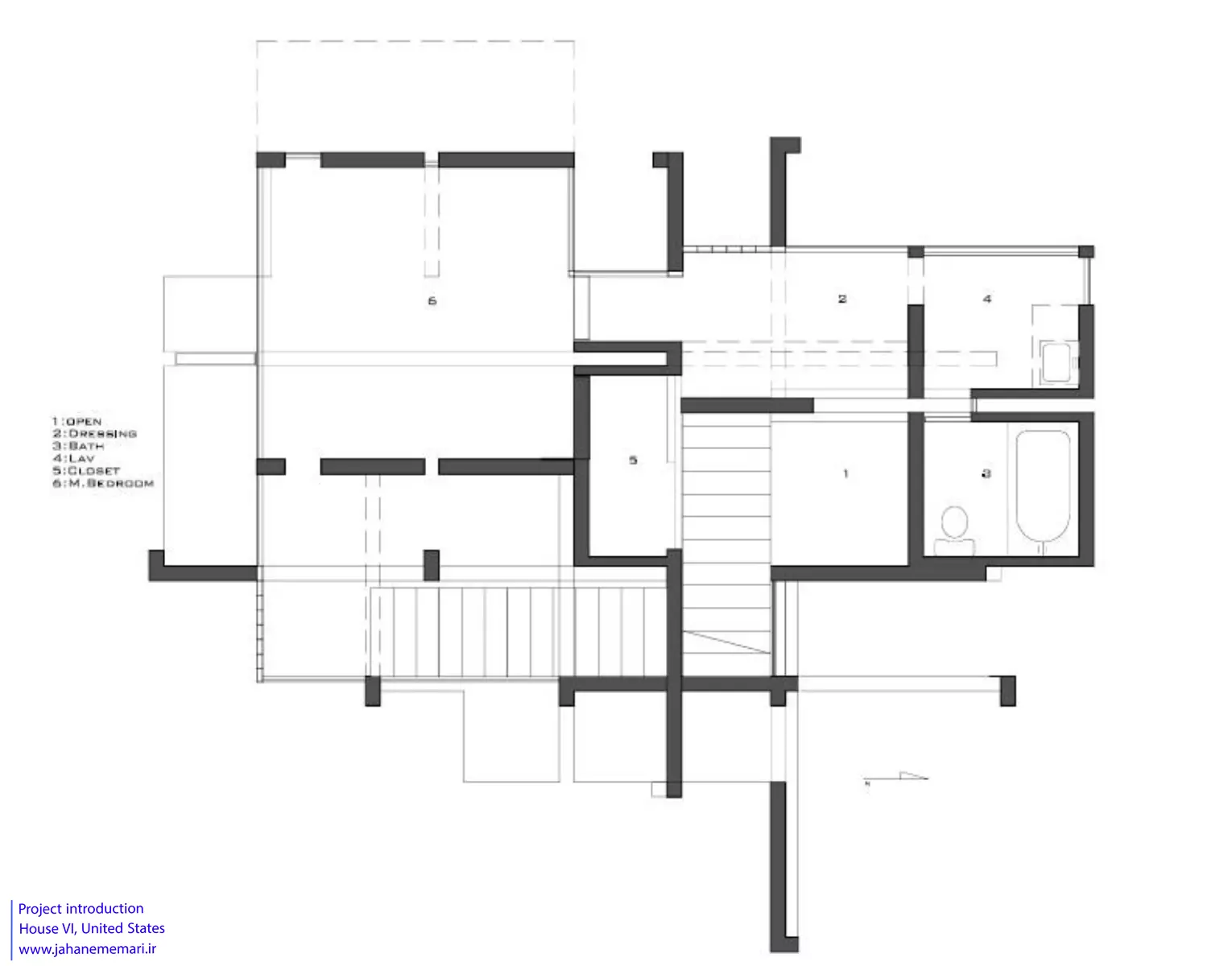
- خانه
- معرفی پروژه
- پروژه های خارجی
- خانه شش | House VI















معمار: Peter Eisenman
سال: 1975
شهر: کورنوال
کشور: ایالات متحده آمریکا
عکاس: NJIT
توضیحات پروژه ارائهشده توسط معماران: (متن ترجمه شده از انگلیسی)
برخلاف «خانهٔ وانا ونتوری» که پیشتر معرفی شده بود، «خانهٔ ۶» اثر «پیتر دی. آیزنمن» مفهوم بیجهتی و گسست فضایی را در خود وارد میکند، بیآنکه بخواهد این گسست را به مفهوم خانهٔ سنتی مرتبط سازد. این خانه درواقع هر چیزی هست جز آنچه معمولاً از یک خانهٔ متعارف انتظار میرود.
آیزنمن ــ که یکی از گروه مشهور «پنج معمار نیویورک» بهشمار میآید ــ این خانه را میان سالهای ۱۹۷۲ تا ۱۹۷۵ برای آقای و خانم «ریچارد فرانک» طراحی کرد؛ زوجی که بهرغم شهرت پیشین آیزنمن بهعنوان «معمار کاغذی» و نظریهپرداز، تحسین عمیقی برای کار او قائل بودند. با اعطای این فرصت به آیزنمن برای تبدیل نظریه به عمل، یکی از مشهورترین و درعینحال دشوارترین خانههای ساختهشده در آمریکا پدید آمد.
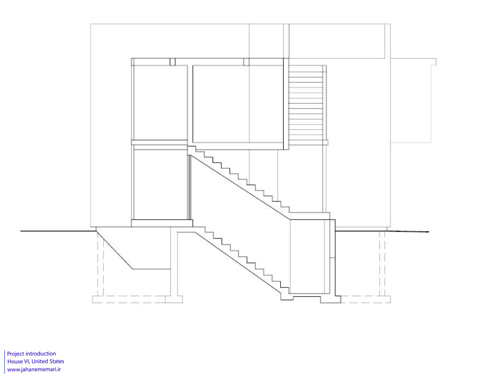
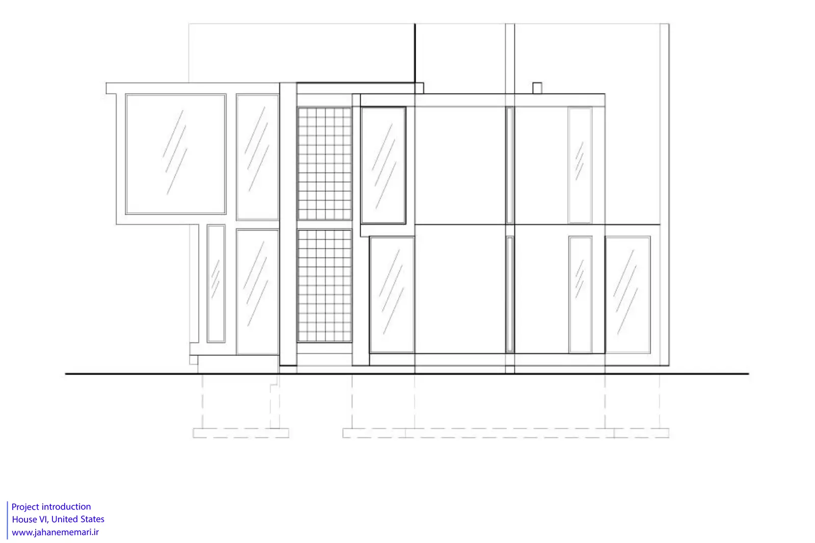
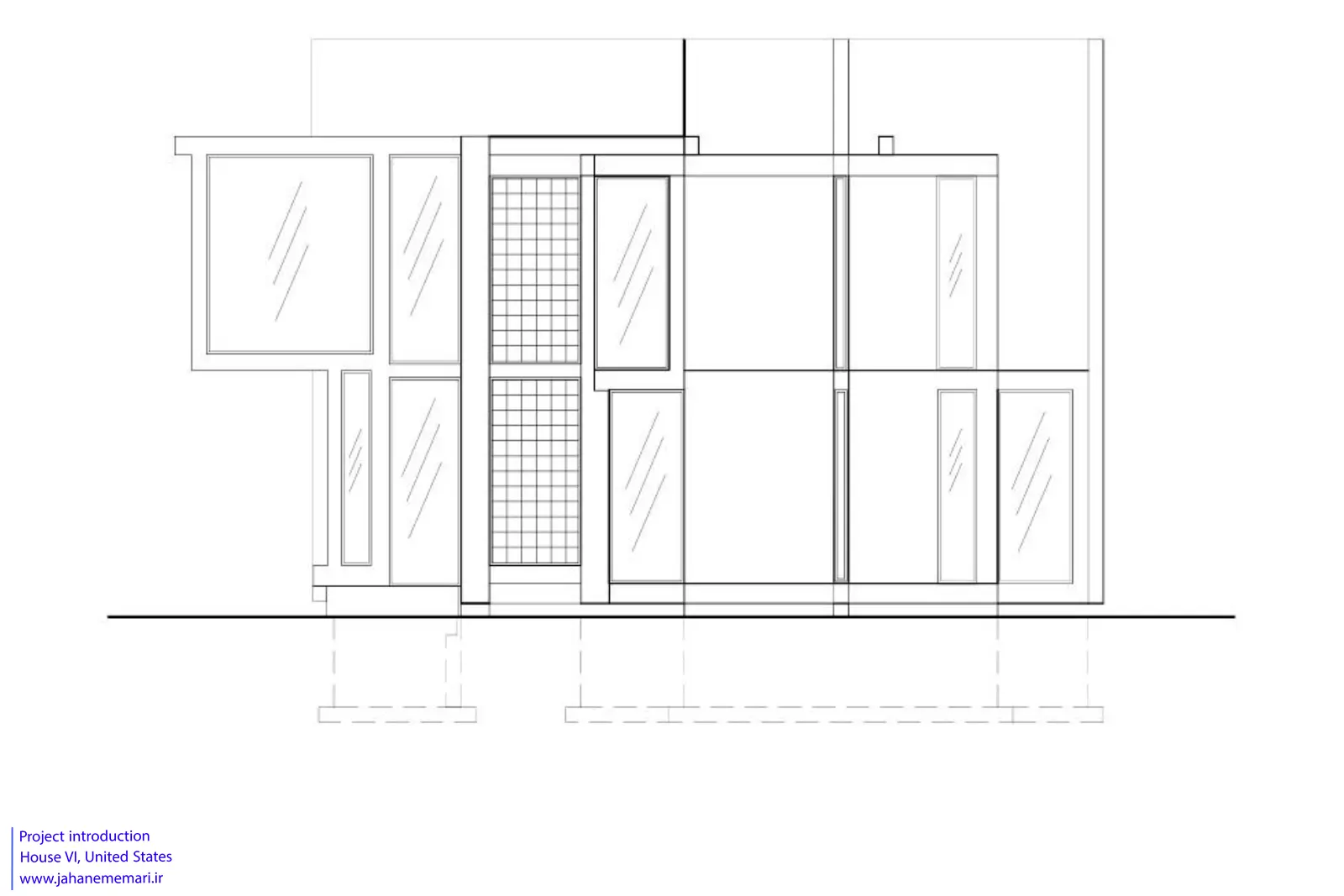
این خانه که بر زمینی مسطح در «کورنوال»، واقع در ایالت «کنتیکت» آمریکا قرار گرفته است، همچون مجسمهای مستقل بر پسزمینهٔ پیرامون خود میایستد. طرح بنا از یک فرآیند کاملاً مفهومی آغاز شد؛ فرایندی که نقطهٔ شروع آن یک شبکهٔ پایه بود. آیزنمن این شبکه را دستکاری کرد تا خانه به چهار بخش تقسیم شود و نتیجهٔ نهایی بتواند بهنوعی «ثبت و نمود فرایند طراحی» باشد. ازاینرو عناصر سازهای در بنا آشکار باقی ماندند تا روند ساختوساز نیز خوانا باشد، اگرچه این خوانایی همیشه بهسادگی قابلدرک نیست.
بدینترتیب خانه به مطالعهای میان ساختار واقعی و نظریهٔ معماری تبدیل شد. سازهٔ بنا با یک سیستم سادهٔ ستون و تیر ساخته شد، اما برخی از ستونها و تیرها هیچ نقش سازهای ندارند و صرفاً برای تأکید بر ایدهٔ مفهومی و شبکهٔ اولیه در فضا قرار داده شدهاند. برای نمونه، یک ستون در آشپزخانه بالای میز معلق است و حتی زمین را لمس نمیکند!
در بخشهای دیگری از خانه، تیرها بهگونهای کنار هم قرار گرفتهاند که با یکدیگر تلاقی نمیکنند و مجموعهای از حمایتگرهای صرفاً مفهومی را ایجاد میکنند. «رابرت گاتمن» دربارهٔ خانه مینویسد: «بیشتر این ستونها نقشی در نگهداشتن صفحات سازهای ندارند؛ آنها همچون صفحات و شکافهایی در دیوارها و سقفها هستند که ریتم و هندسهٔ نظام نشانهگذاری آیزنمن را علامتگذاری میکنند.»
ساختار خانه در شبکهٔ آیزنمن ادغام شد تا ماژولی را که فضاهای داخلی را تعریف میکند، توسط سلسلهای از سطوح لغزنده آشکار سازد. آیزنمن عمداً از اصل «فرم تابع عملکرد است» فاصله گرفت و فضاهایی آفرید که هرچند روشن و تجربهپذیر بودند، اما برای سکونت معمولی بسیار نامتعارف محسوب میشوند.
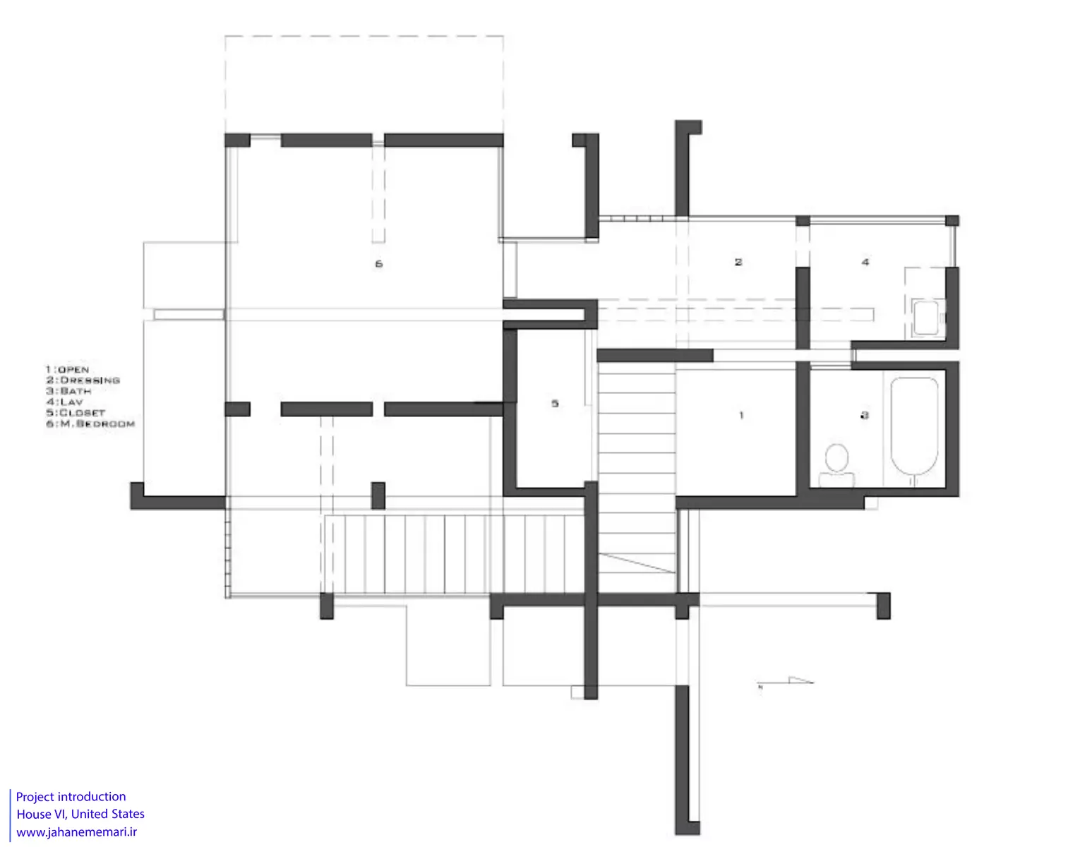
او شرایط را عمداً برای کاربران دشوار کرد تا آنان ناچار شوند با معماری درگیر شوند و همواره نسبت به حضور و قواعد آن آگاه باقی بمانند. برای نمونه، در اتاقخواب شکاف باریکی از شیشه در مرکز دیوار قرار دارد که تا کف ادامه یافته و اتاق را دقیقاً به دو نیم تقسیم میکند؛ بهگونهای که تختها ناچاراً باید دو طرف این شکاف قرار گیرند و زوج مجبور باشند جدا از هم بخوابند.
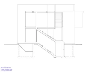
یکی دیگر از عناصر شگفتانگیز بنا، یک پلکان وارونه است؛ عنصری که محور خانه را معرفی میکند و با رنگ قرمز تأکید شده است. افزون بر این، عناصر دشواری دیگری نیز وجود دارد که سکونت متعارف را مختل میکند، ازجمله همان ستونی که بالای میز غذاخوری آویخته است و میان افراد سرِ میز جدایی ایجاد میکند، و نیز تنها سرویس بهداشتی خانه که فقط از طریق یکی از اتاقخوابها قابل دسترسی است.
با آنکه سکونت در این خانه آزاردهنده و پیچیده بود، آیزنمن موفق شد کاربران را بهطور مداوم نسبت به معماری و تأثیر آن بر شیوهٔ زیستشان آگاه نگه دارد. او ساختاری آفرید که همزمان هم خانه و هم اثر هنری است، اما اولویت را چنان تغییر داد که عملکرد در خدمت هنر قرار گیرد.
او خانهای ساخت که در آن انسان ناگزیر است در یک اثر هنری، یک مجسمه زندگی کند؛ و براساس گفتهٔ ساکنان خانه که زندگی در اثر معماری و شاعرانهٔ آیزنمن را دوست داشتند، این تجربه کاملاً موفقیتآمیز بود.
جهت دسترسی به پروژههای بیشتر به این صفحه از سایت مراجعه کنید.
” تمامی حقوق مادی و معنوی محتوا متعلق به پایگاه خبری جهان معماری می باشد “