- خانه
- معرفی پروژه
- پروژه های داخلی
- کافه زست – استودیو وحید جودی


































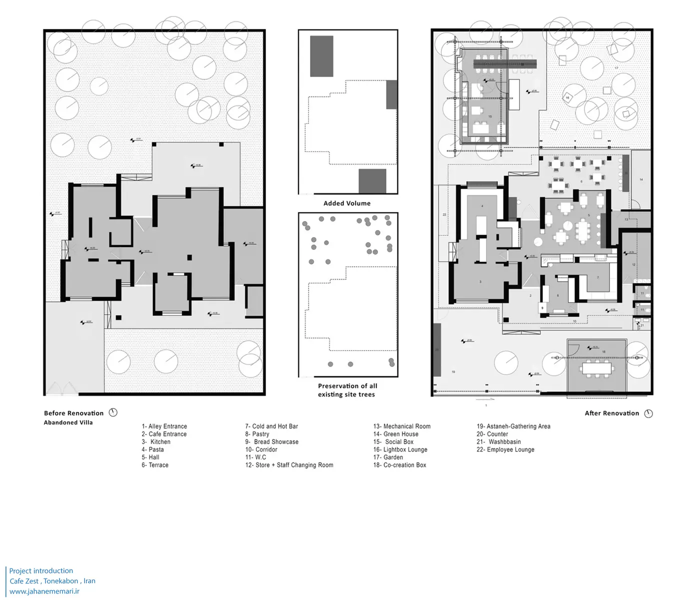
پروژهٔ کافه Zest در بستر ویلاهای فصلیِ محلهٔ کریمآبادِ تنکابن تعریف شد؛ محلهای که به دلیل حضور گذرا و غیردائمی ساکنان و نبود پیوند با زندگی روزمرهٔ شهری، از سرزندگی تهی مانده و کافههای موجود نیز نتوانستهاند به پاتوقهای اجتماعی پایدار تبدیل شوند. درخواست کارفرما، احیای یک ویلای اجارهای رهاشده و تبدیل آن به فضایی عمومی و جوانمحور بود.
مسئلهٔ محوری این مداخله فراتر از تغییرِ صرفِ کاربری بود و بر بازتعریف رابطهٔ خصوصی–عمومی و تطبیق یک برنامهٔ اجتماعی–فرهنگی در ساختاری با پیشینهٔ مسکونی تمرکز داشت. از اینرو، این پرسش بنیادین مطرح شد: چگونه میتوان در یک بستر ایستا و فصلی، فضایی عمومی خلق کرد که هم زندگی اجتماعی محله را فعال کند و هم ظرفیتهای معماری موجود را برای پشتیبانی از برنامهای تازه به کار گیرد؟
در حالی که خواستهٔ کارفرما به یک برنامهٔ کافهٔ متعارف محدود بود، رویکرد طراحی از این چارچوب فراتر رفت و هدف آن ایجاد پتانسیل برای یک هستهٔ اجتماعی در محله بود؛ مداخلهای که قصد داشت ارزش اجتماعی تولید کند و رابطهٔ میان معماری و بستر را بازتعریف نماید. در همین راستا، مرز بین کافه و شهر بهعنوان یک جدایی صُلب در نظر گرفته نشد، بلکه بهعنوان یک «لبهٔ شهری–اجتماعی» بازخوانی شد؛ لبهای که با خلق یک لایهٔ زیستی و قابلنفوذ، حس دعوتکنندگی را تقویت کرده و زمینهٔ مکث، معاشرت و شکلگیری تجمعات خودجوش را فراهم میکند. این راهبرد، بهجای حذف مرز، آن را به سطحی میانجی تبدیل کرد که فعالانه پیوند کافه با زندگی روزمرهٔ محله را تقویت میکند.
در ادامه، برنامهٔ متعارف کافه برای ارتقای ظرفیتهای اجتماعی و فرهنگی بازتعریف شد تا بستری برای تعامل جمعی و خلاقیت مشارکتی فراتر از کارکردهای روزمره فراهم آورد. در این راستا، دو عنصر مکمل معرفی شدند: «جعبهٔ همآفرینی»، فضایی انعطافپذیر برای تولید ایدهٔ جمعی و رویدادهای مشارکتی؛ و «جعبهٔ اجتماعی»، محلی برای گفتگو، شبکهسازی و شکلگیری تعاملات اجتماعی در مقیاس محلی. این افزودنیها صرفاً الحاقات عملکردی نبودند، بلکه لایههایی راهبردی در طراحی بودند که هویت اجتماعی کافه را تقویت کرده و نقش آن را بهعنوان یک هستهٔ اجتماعی فعال در بستر فصلی و ایستای محله تثبیت میکردند.
بهصورت همزمان، سازمان فضایی پروژه از یک مدل متمرکز به الگویی توزیعی و دارای گردش سیال تغییر یافت؛ رویکردی که با هدف تقویت سیالیت فضایی، تنوع و ایجاد حس کنجکاوی و کشف در میان کاربران اتخاذ شد. تخصیص نسبی عملکردها در سراسر سایت به گونهای طراحی شد که تعامل، حرکت و کاوش لایههای متنوع—از فضاهای اجتماعی تا فضاهای خلوت فردی، از داخل تا بیرون، از باز تا نیمهباز—را تشویق کند و تجربهای چندلایه و پویا به وجود آورد.
با توجه به اجارهای بودن ویلا و محدودیت بودجه، پوستهٔ جدید پروژه بهگونهای طراحی شد که مقرونبهصرفه باشد و با جزئیات ساده، عملکرد، انعطافپذیری سازهای و قابلیت توسعه را تضمین کند. مصالح موجود در محل—از جمله داربستهای زنگزده و لولههای فلزی انبارشده، ورقهای توری فلزی و پنلهای آلومینیومی—بهعنوان اجزای کلیدی پوسته بازتفسیر شدند؛ عناصری که علاوه بر امکان اجرای سریع و اقتصادی توسط پیمانکار محلی، بهعنوان لایههای سازهای و بصری چندعملکردی نیز عمل میکردند. این افزودنیها در حالی که یک زبان فرمی تازه و لایهای از هویت بصری جدید وارد پروژه میکردند، با احترام به کالبد موجود ویلا طراحی شدند تا تداوم و انسجام بصری در محله حفظ شود و از ایجاد یک عنصر بیگانه و گسسته جلوگیری گردد.
جهت دسترسی به پروژه های بیشتر به این صفحه از سایت مراجعه کنید.
” تمامی حقوق مادی و معنوی محتوا متعلق به پایگاه خبری جهان معماری می باشد “