- خانه
- معرفی پروژه
- پروژه های داخلی
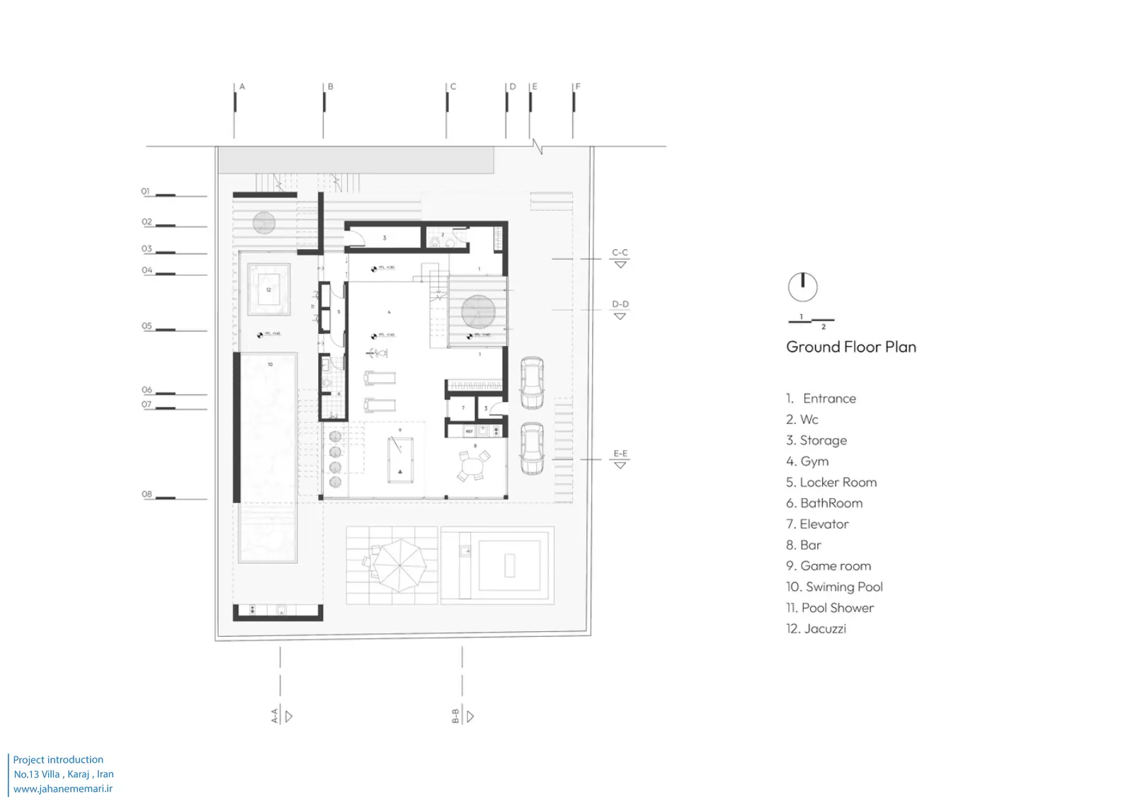
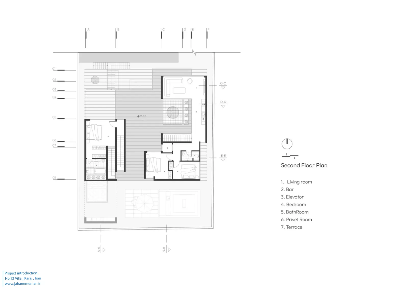
- ویلای شماره 13 – طرح و ساخت ازنو








































ویلا شماره ۱۳ بر اساس تعامل میان فضاهای باز، نیمهباز و بسته شکل گرفته است؛ ترکیبی فضایی که با سه حیاط بیرونی و یک حیاطداخلی سازماندهی شده و همگی در کنار هم یک ریزاقلیم میانی میان داخل و خارج ایجاد میکنند.
این حیاطها که در امتداد محور شمالی–جنوبی قرار گرفتهاند، بهطور همزمان نور جنوبی و دیدهای شمالی را به ساختمان وارد میکنند و در عین حال، جایگذاری آنها پاسخی مستقیم به توالی روایی و عملکردی فضاهای داخلی است.
حیاط مرکزی که همچون یک فضای سبزِ تهی قاب گرفته شده، تجربهای مقطعی شفاف و پویا به وجود میآورد و بهنرمی مرز میان قلمروهای عمومی و نیمهعمومی را تعریف میکند. دو راهبرد کیفیتهای فضایی و تجربی پروژه را غنیتر میسازند: «بههمدوختن حیاطها» از طریق مسیرهای بیرونی مستقل که گردش در هوای آزاد را تشویق میکنند، و «سایهاندازی» از طریق یک پوستهی مشبک که سایههای لایهلایه ایجاد میکند، حالوهوا را شکل میدهد و بستری حمایتی برای رشد گیاهان رونده فراهم میسازد.
در نهایت، این ویلا رویکردی معاصر در معماری را اتخاذ میکند که ریشه در مفهوم سنتی ایرانیِ «نارنجستان» دارد و چشماندازی بلندمدت را دنبال میکند: دربرگرفتن بنا در آغوش یک پوشش سبزِ زنده و انبوه.
جهت دسترسی به پروژه های بیشتر به این صفحه از سایت مراجعه کنید.
” تمامی حقوق مادی و معنوی محتوا متعلق به پایگاه خبری جهان معماری می باشد “