- خانه
- معرفی پروژه
- پروژه های خارجی
- مرکز خرید امپوریا | Facts Emporia































معمار: Wingårdh Arkitektkontor
سال: 2012
مساحت: 27000 متر مربع
شهر: مالمو
کشور: سوئد
عکاس: Tord-Rikard Söderström
توضیحات پروژه ارائهشده توسط معماران: (متن ترجمه شده از انگلیسی)
بهگفتهٔ معماران، امپوریا پیش از هر چیز یک پروژهٔ برنامهریزی شهری است که در آن دفاتر اداری، واحدهای مسکونی و کاربریهای خُردهفروشی در قالب یک توسعهٔ چندمنظوره در امتداد بلوار بولواردن و خیابان اسْتاشونسگاتان در منطقهٔ هیلیه، در جنوب شهر مالمو، گرد هم میآیند. ایدهٔ اصلی طرح برندهٔ مسابقهٔ ما این بود که فضاهای خردهفروشی درونگرا در پشت حلقهای از ساختمانهای مسکونی و اداری پنهان شوند. بهاینترتیب کل مجموعهٔ تجاری در نهایت در بافت شهری ادغام میشد.
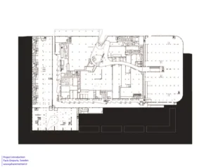
این پروژه توسعهای بسیار عظیم است و تاکنون تنها ساختمان گوشهای که ورودی کهربایی را در خود جای میدهد تکمیل شده است. این ورودی تنها بخشی از مرکز خرید امپوریاست که پس از تکمیل کل مجموعه همچنان قابلمشاهده خواهد بود. ایدهٔ قرار دادن ساختمانهای چندمنظوره در امتداد خیابانها، نیازمند فرمی قدرتمند بود که بتواند از میدان ایستگاه، بازدیدکنندگان را به داخل مجموعه و فضای خرید جذب کند. دنبالهای از طاقها که از یک طرح قبلی در مسابقه باقی مانده بود، همراه با یادآوریهایی از پانتئون، دوباره با رنگی متمایل به برنز و اُکر ظاهر شد. شیشهٔ دولحنی حجم شکاف موربی را که از میان ساختمان عبور میکند دربر گرفته است. در این نقطه، آبوهوای تنگهٔ اورسوند—با ابرهای سریعالحرکت و لحظههای کوتاه تابش خورشید—حسی عینی و قابل لمس پیدا میکند.
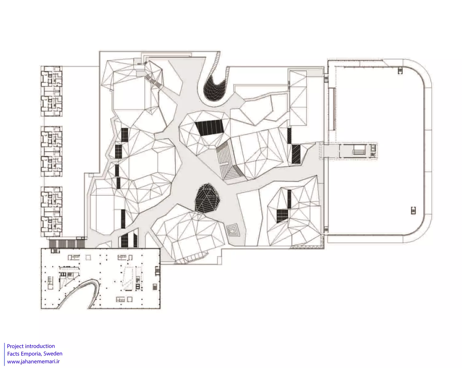
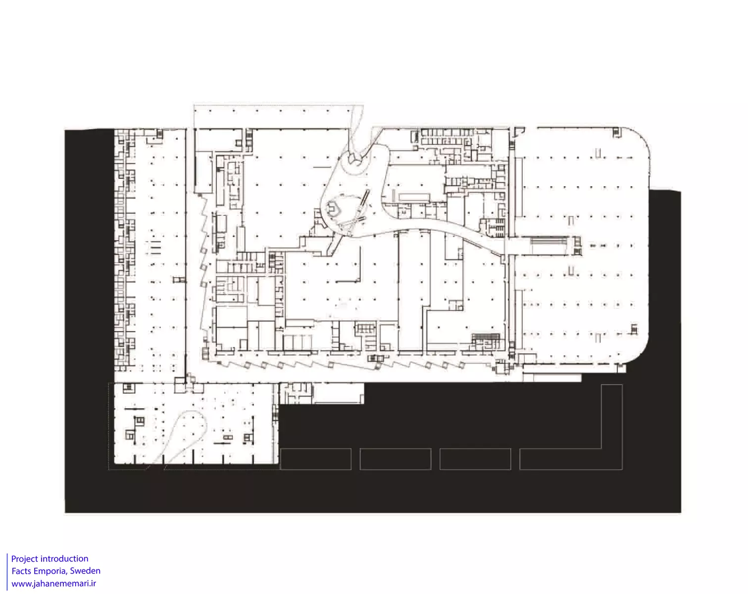
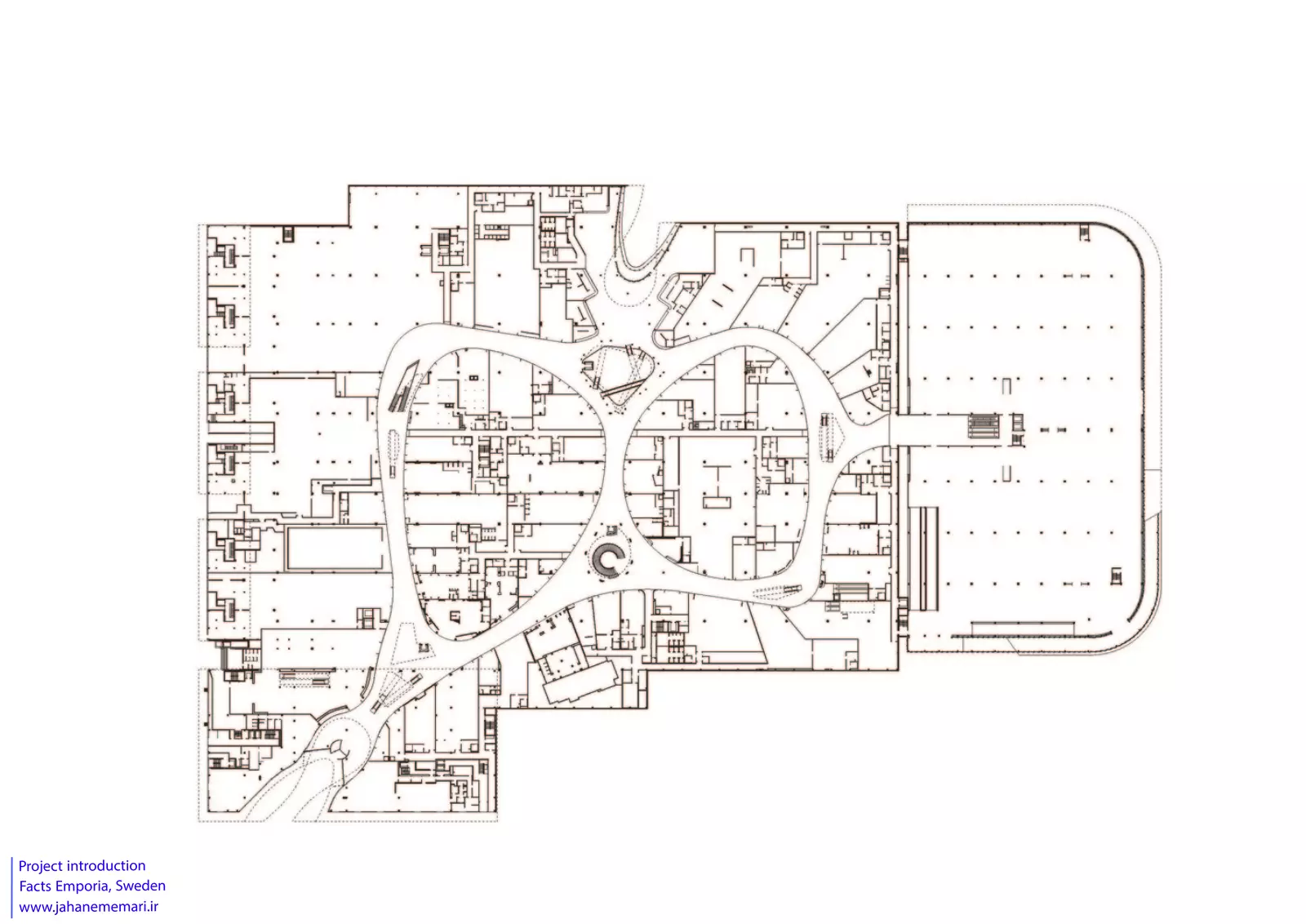
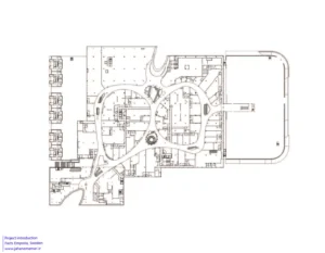
ورودی مورب از میدان ایستگاه هیلیه بهطور عمیق به داخل بلوک نفوذ میکند. در داخل، فضاهای خردهفروشی پیرامون یک مسیر سهطبقه به شکل عدد هشت سازماندهی شدهاند. فروشگاهها پیرامون آتریومهای پررنگ و جسورانه گروهبندی شدهاند که هرکدام دارای یک تم متفاوت هستند. در سمت شمال مجموعه، یک رمپ به پارکینگ طبقاتی با رنگینکمان (ظرفیت دو هزار و پانصد خودرو) منتهی میشود که دسترسی مستقیم به مسیر حلقهای را فراهم میکند. در سمت شرق، پارکینگ روباز (برای پانصد خودرو) درست در بیرون ورودی فروشگاه مواد غذایی قرار دارد.
پارک بام بهصورت بخشی از طبیعت سامانیافته طراحی شده است. پوشش گیاهی آن شامل سِدوم، گیاهان چمنی پریری و درختان است و سکوهای آفتابگیر و بادپناه آن از داخل و خارج ساختمان قابل دسترسی هستند. تپههایی که نقش بادشکن را دارند، درواقع اتاقهای تأسیسات مکانیکی را پنهان میکنند. در آینده، بام با فضاهای رستوران روباز و مجموعهٔ آبدرمانی تکمیل خواهد شد—زیرا همانند پارکهای تفریحی، مراکز خرید نیز لازم است بهطور منظم جاذبههای جدیدی ارائه دهند.
امپوریا میتواند بهسمت بالا و بهسمت غرب گسترش یابد، اما در هیچیک از جهتهای دیگر امکان گسترش ندارد. ساختمانهای مسکونی مستقل در امتداد بولواردن هنوز ساخته نشدهاند، همانگونه که ساختمانهایی که قرار است روی سکوی جنوبی و رو به خیابان استاشونسگاتان احداث شوند.
طراحی داخلی امپوریا بسیاری از قواعد متعارف مراکز خرید را به چالش میکشد. رنگهای جسورانه و خطوط دید خمیده با هنجارهای رایج متفاوتاند، همانطور که اندازه و جاهطلبی پروژه نیز فراتر از معمول است—موضوعی که امکان طراحی سفارشی برای همهچیز را فراهم کرده: از سقفها و کفها تا نمای فروشگاهها، تابلوها، ریسههای گیاهان آویزان، مبلمان و حتی دستگیرههای درِ ساختهشده از شیشهٔ قالبریزیشده.
شعار ما این بوده است که «هیچ مقیاس میانیای وجود ندارد»—زیرا این حوزهٔ خودِ محصولات به نمایش گذاشتهشده است. بنابراین الگوهای بزرگمقیاس و جزئیات بسیار ظریف ویژگی اصلی فضای داخلی هستند. کف ترازو نمونهٔ بارز این رویکرد است: با خطوط درز بزرگ مثلثی، با تغییر تدریجی رنگ از سفید به گرافیت در هفت مرحله، و با تکههای درخشان شیشهٔ آینهای رنگی. طراحی داخلی با دقتی استثنایی انجام شده است؛ از نردههای دستهچرم تا رنگ دوخت روی صندلیهای تعبیهشده.
امپوریا همچنین شامل مجموعهای از آثار هنری است که بهندرت در محیطهای تجاری دیده میشود. یک اثر نورپردازی (شامل نود و نه ستون نوری) توسط پِتِری نیسونن و تومی گرونلوند، ورودی کهربایی را برجسته میکند. مجسمههای برنزی اثر یوپ فان لیسهاوت و یک اثر شیشهای (به ابعاد چهار در هشتاد و یک متر) از سیلیا رانتانن ورودی «دریا» را زینت میدهند، و یک نقاشی خطی روی فیلم در مقیاسی عظیم (بیست در صد و چهارده متر) اثر پِر مارتنسون نمای پارکینگ را میپوشاند. در داخل ساختمان نیز مجموعهای از عکسها اثر سیگنه ماریا آندرسن نصب شده است.
جهت دسترسی به پروژههای بیشتر به این صفحه از سایت مراجعه کنید.
” تمامی حقوق مادی و معنوی محتوا متعلق به پایگاه خبری جهان معماری می باشد “