- خانه
- معرفی پروژه
- پروژه های داخلی
- خانه همایونی – استودیو ما
























این پروژه شامل یک ساختمان مسکونی می باشد که در چهار طبقه طراحی شده و هر طبقه دارای یک واحد می باشد که در ادامه به شرح آن ها خواهیم پرداخت. این ساختمان با توجه به موقعیت و مساحت ملک، دارای ویژگی های منحصر به فردی از جمله عرض کم است. از نظر مسکن و موقعیت اجتماعی نیز در فضای میانه شهری کرج واقع شده است.
ایده های طراحی: چالش های این پروژه طراحی واحدی با دو اتاق مستر و یک بالکن با اندازه مشخص است که بتواند سلیقه و نیازهای یک خانواده هنرمند را برآورده کند و سه واحد دیگر علاوه بر دو اتاق مستر، دارای یک اتاق مجزا به چشم انداز رو به باغچه باشند. لازم به ذکر است که یکی از خواسته های کارفرمای پروژه ایجاد طرح و مشخصات متفاوت و منحصر به فرد برای هر واحد بوده است.
نمای پروژه: طراحی آجرهای مشبک ایرانی به همراه مکعب های تراس که از قلب ساختمان بر آمده اند، ترکیبی مناسب، استاندارد و چشم نوازی را ایجاد کرده اند. اجرای نما با آجرهای مشبک سفید در فاصله بیست سانتی متر از نمای اصلی که میل به ایجاد نمای دو پوسته را ایجاد می کند و با توجه به موقعیت مکانی باعث تهویه مناسب و ورود هوای تازه به فضا می شود. وجود آجرهای پنج سانتی متری با فاصله بیست سانتی متر مهار می شوند تا بدین ترتیب دیگر نیازی به استفاده مداوم از وسایل برودتی نباشد و انتخاب رنگ سفید حاکی از اصرار طراح بر میزان و تعادل دما و حتی صرفه جویی در هزینه های زندگی در ساختمان می باشد.
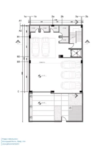
پارکینگ و ذخیره سازی: فضای پارکینگ با استفاده از تفاوت رنگ در متریال به دو قسمت جداگانه تقسیم می شود. وقتی به سمت انبارها می رویم، رنگ نارنجی که از رنگ قاب ها در نما الهام گرفته است، فضای گرمی ایجاد می کند. فضای حصیری در بخش ورودی ساختمان که زیبایی بازی سایه و نور را در ساعات و روزهای مختلف سال دو چندان خواهد کرد، به ایجاد تفاوت میان دو قسمت کمک زیادی کرده است.
جهت دسترسی به پروژه های بیشتر به این صفحه از سایت مراجعه کنید.
” تمامی حقوق مادی و معنوی محتوا متعلق به پایگاه خبری جهان معماری می باشد “