- خانه
- معرفی پروژه
- پروژه های داخلی
- ویلای شهرزاد – دفتر معماری کانی سواران









































پروژه ها با ویژگی های ذاتی و ملموس خود شناخته و تعریف می شوند. بدون شک، این ویژگی ها در طول سکونت بیشترین نمود را دارند و احساس می شوند – این ویژگی ها نتیجه ی فداکاری تیم طراحی برای دستیابی به راه حل مناسب بر اساس کیفیت فضایی هستند.
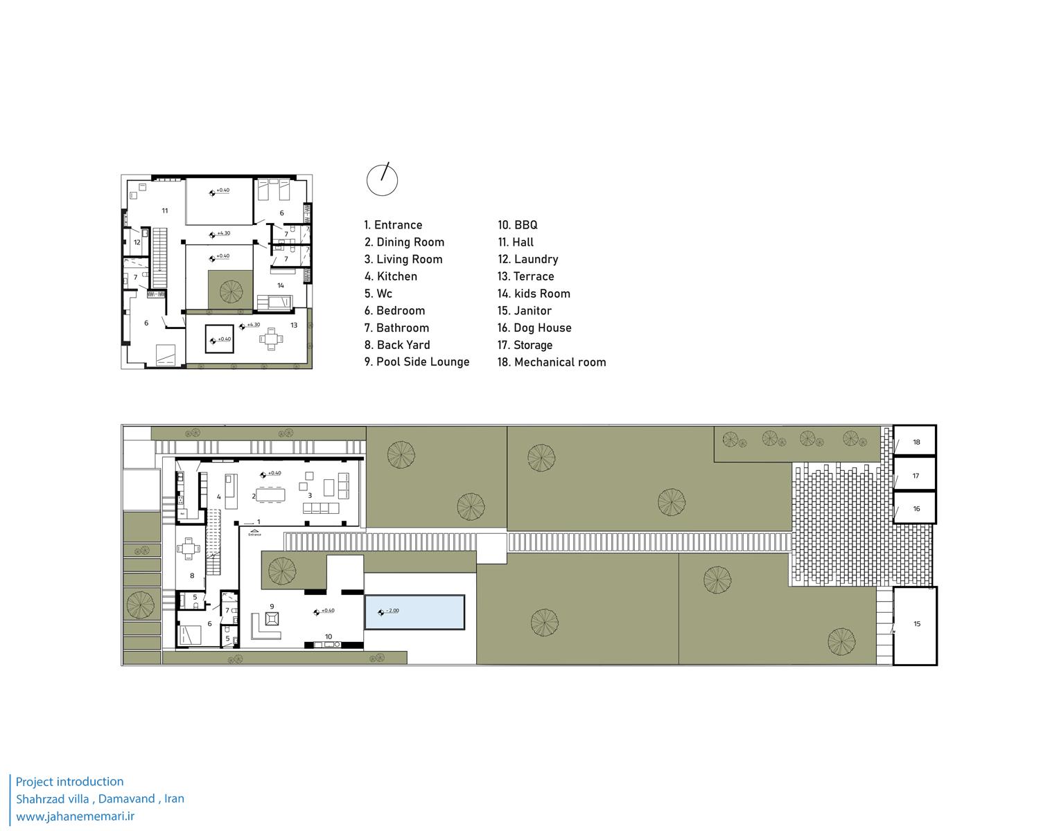
این پروژه در زمینی به مساحت ۱۶۵۰ متر مربع در امتداد شرق-غرب در دشت سیدآباد، دماوند واقع شده است. ایده ی معماری ویلا شهرزاد از تعامل بین محدودیت های سایت و تمایل به ایجاد فضایی سرشار از نور و سرزندگی پدید آمده است. در این پروژه، نور صرفاً با ویژگی های فیزیکی یا استانداردهای عملکردی اولیه تعریف نمی شود – بلکه از این جنبه ها فراتر می رود و کیفیتی ناملموس را مجسم می کند. نور، به معنای کیفی، نمایانگر طلوع و غروب خورشید، زمان و گذر آن است که همگی در زیر سایه ها و نیم سایه های معماری و طبیعت به عنوان مظاهر زندگی تفسیر می شوند.
با الهام از گونه شناسی حیاط مرکزی، ما در پی دعوت نور به داخل بودیم. این حیاط فقط منبع روشنایی نیست، بلکه به عنصر اصلی سازماندهی ترکیب فضایی پروژه تبدیل می شود و ارتباطی پویا بین فضای داخلی و خارجی در ارتفاعات مختلف ایجاد می کند. وجود فضای سبز در قلب سازه نه تنها به تهویه طبیعی و نور روز در طول فصول کمک می کند، بلکه تجربیات فضایی متنوعی را در هر گوشه از خانه ارائه می دهد.
در چهار گوشه ویلا، پنجرههای کف تا سقف به طور استراتژیک قرار گرفته اند – روزنه هایی که نور طبیعی را هدایت می کنند و در عین حال طلوع و غروب خورشید را در هر چهار فصل قاب می کنند. جهت پنجره های ثابت و متحرک با بادهای غالب منطقه همسو است و تهویه طبیعی، مناظر زیبا و محافظت در برابر چالش های اقلیمی را با توجه به بادهای شدید منطقه تضمین می کند.
در اینجا، در حالی که نور و نفوذ آن به فضاهای مرکزی ضروری بود، وقتی ضرورت فراتر از برآوردن نیازهای اولیه می رود، موضوع را به تعریف جدیدی از نقش خود ارتقا می دهد. نور در اینجا جریان کامل زندگی بود و زندگی کاملاً تحت حضور آن آشکار می شد.
برای اینکه نور از سقف های سفت و سخت عبور کند، به روزنه هایی نیاز بود که بتوانند حس حرکت و گذر زمان را منتقل کنند. با قرار دادن این بازشوها در سه نوع فضا – باز، نیمه باز و بسته – امکان نمایش سه کیفیت زمانی و مکانی متمایز فراهم شد که همه آنها را می توان در یک لحظه یا صحنه واحد تجربه کرد.
در نگاه اول، خطوط و فرم اولیه ویلا شبیه سازه های کلاسیک و متقارن است. با این حال، در ترکیب فضایی و پلان آن، این تقارن به تعادلی سیال با رویکردی معاصر تبدیل می شود. حجم مربع شکل در مرکز سایت قرار دارد و محور مرکزی و حیاط آن فضایی پویا و روایی ایجاد می کنند – فضایی که در آن ساکنان با هر حرکت با ویژگی های فضایی تازه ای روبرو می شوند.
این سازه بین باز بودن و محصور بودن در نوسان است، ابهامی که در زوایای داخلی و خارجی آن مشهود است. وقتی از بیرون به آن نگاه می شود، ویلا به عنوان یک حجم واحد و محافظ – تقریباً محافظه کارانه طراحی شده – به نظر می رسد که تناسبات طبقه اول به سمت تقارن کلاسیک متمایل است. با این حال، با نزدیک شدن، عدم قطعیتی پدیدار می شود که امکان تعریف مجدد سازه را فراهم می کند. این تعریف مجدد تنها زمانی به انسجام می رسد که تجربه فضایی در مناطق باز، نیمه باز و محصور کامل شود.
تقاطع فضاهای افقی، که در سراسر پلان لایه لایه شده اند، مستقیماً در مقاطع و اتصالات عمودی منعکس می شود و فضاهای پیش بینی نشده و غیرقابل پیش بینی را برای ساکنان ایجاد می کند. اوج این تعامل زمانی رخ می دهد که از میان فضاهای لایه لایه طبقه همکف و محیط حیاط مرکزی در طبقه اول عبور میکنیم و در نتیجه ترکیبهای فضایی و پرسپکتیوهای متنوعی ایجاد می شود. با توجه به موقعیت مکانی پروژه – و به تبع آن، خود ساختمان – به نظر می رسد که ویلا، در خلوت خود، ساکنان خود را به سکوتی سرشار از زندگی، به دور از سر و صدای روزانه، دعوت می کند.
جهت دستیابی به دیگر اخبار معماری به این بخش از سایت مراجعه کنید.
” تمامی حقوق مادی و معنوی محتوا متعلق به پایگاه خبری جهان معماری می باشد “