موزه هنر شهر جدید تایپه بر روی زمینی بازپسگیریشده در محل تلاقی دو رودخانهٔ «یینگه» (Yingge) و «داهان» (Dahan) قرار دارد. سایت با شیبی ملایم، همچون جزیرهای در میان جریان آبها به نظر میرسد و چشماندازهایی خیرهکننده از مناظر باشکوه کوه و رودخانه ارائه میدهد. در شمال، کوه «گیلون» (Guilun) واقع شده و در جنوب، موزه چشماندازی رو به رودخانهٔ «داهان» و رشتهکوه «شوشان» (Xueshan) دارد.
با الهام از تاریخ و فرهنگ غنی منطقه، طراحی پروژه عناصری چون بستر خشک رودخانه، جذابیت قدیمی کوچهها و بناهای آجری، و نیز نیزارهای در نوسان – که بهویژه در فصلهای پاییز و زمستان فراواناند – را در خود جای داده است تا شکلی معماری مدرن و آیندهنگرانه بیافریند؛ «موزهای از هنر مدرن و معاصر در میان نیزارها».
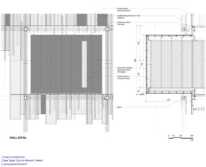
طرح، طبیعت و ساخت مصنوع را به شکلی هوشمندانه در هم میآمیزد؛ عناصری از یکی را در قالب دیگری تفسیر کرده و بالعکس. نمای شاخص بنا از مجموعهای از لولههای آلومینیومی سندبلاستشده با ارتفاع و طولهای متفاوت تشکیل شده است که با صفحات آلومینیومی عمودی سهرنگ بهصورت پلهای و نامنظم ترکیب شدهاند. از دور، این پردهٔ خطی تصویری محو و شاعرانه از نیهایی را تداعی میکند که در باد میرقصند و جعبهٔ صلب نمایشگاهی پنهان در پسِ آن را – که معمولاً یادآور این نوع بناهاست – از نظر میپوشاند. این نما بازتابی از محیط و مناظر طبیعیِ در حال تغییر پیرامون خود است و با ظاهر معماری منحصربهفردش، مردم را به تجربهٔ بصری از دگرگونیهای گذرا در گسترهٔ طبیعت فرامیخواند.
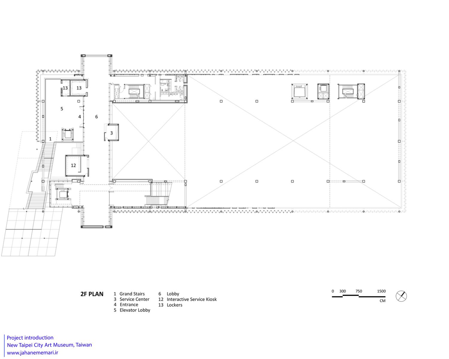
در تراز همکف، «روستای هنری» از بتن نمایان گشوده میشود و شبکهای از خیابانهای هنری و تراسهای مجسمه را در بر میگیرد. این موزهٔ جدید بر اساس مفهوم «موزهای برای همه» شکل گرفته است. بازدیدکنندگان میتوانند آزادانه در تراسهای روباز قدم بزنند؛ فضاهایی که در دو سوی آنها کافهها، کارگاهها و رستورانها قرار دارند و ساماندهی فضاییشان به سبک خیابانهای قدیمی یینگه و سانشیا (Sanxia) انجام شده است. آنان میتوانند در فعالیتهای هنری گوناگون شرکت کنند، در برابر آثار نصبشده در فضای باز مکث کنند، یا مسیر آجری را تا تپه پیموده و چشمانداز اطراف را از فراز آن تماشا کنند.
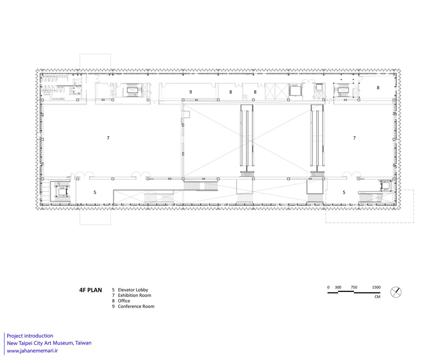
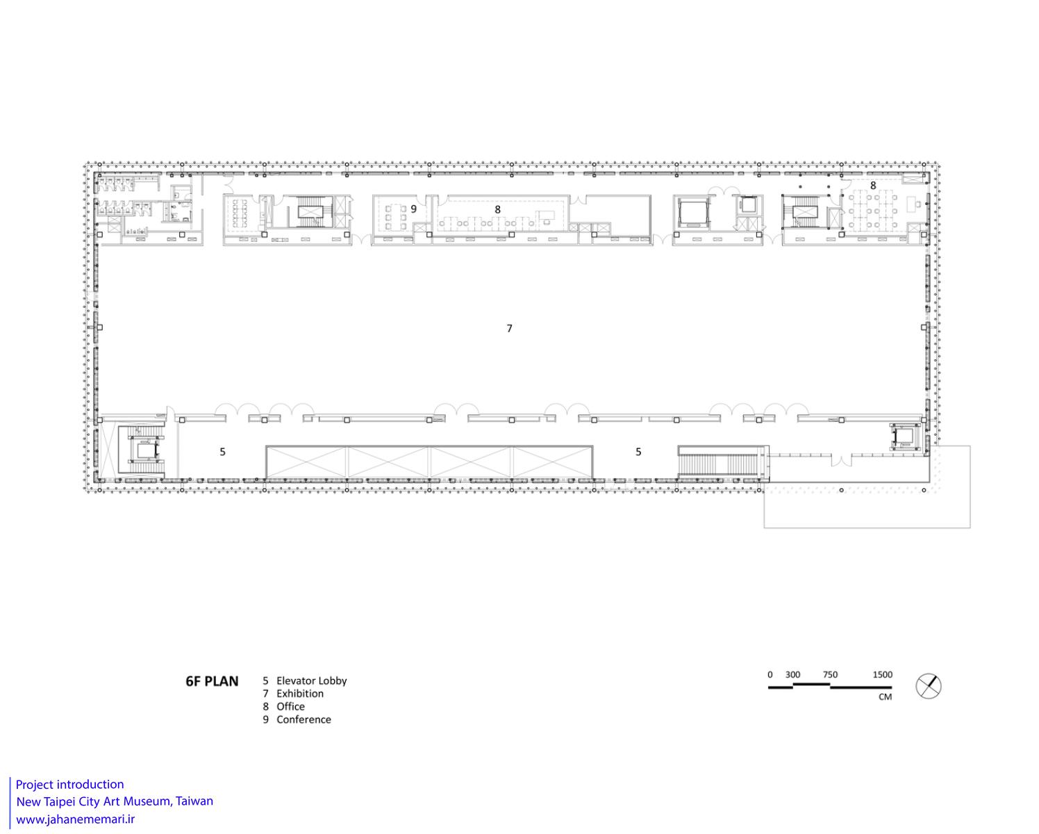
در بالای این روستا، حجم مستطیلی فولادی موزهٔ هنر شناور است؛ حجمی صُلب که در پسِ پردهای از نیزارهای نمادین – متشکل از لولههای عمودی متعدد با ارتفاعهای گوناگون – محو میشود. سامانهٔ سازهای با دهانهٔ بلند، امکان انعطافپذیری حداکثری در فضاهای نمایشگاهی را فراهم میکند. یک پلکان بزرگ بازدیدکنندگان را به لابی مرتفع در طبقهٔ دوم هدایت میکند، جایی که چهار نوع فضای نمایش در دسترس است: سالنهای نمایش عمومی، سالنهای نمایش بزرگمقیاس، سالنهای نمایش بینالمللی و فضاهای نمایش ویژه با موضوعات خاص. در بام ساختمان رستوران باغی قرار دارد که میهمانان ضمن صرف غذا میتوانند از چشمانداز گستردهٔ رودخانهٔ داهان لذت ببرند. از دیگر ویژگیهای طراحی، مسیر گردش مجزایی است که به مرکز مدیریت عملیات و مخازن نگهداری آثار منتهی میشود تا کنترل و تدابیر امنیتی را به شکلی کارآمدتر تسهیل کند.
«روستای هنریِ باز» با حفظ ماهیت اصیل بتن، بافت جغرافیایی ناشی از فرسایش رودخانهٔ داهان را به نمایش میگذارد. دیوارهای بتنی ساختمان دارای بافتی هستند که با تختههای چوب سدر بهصورت مورب قالبگیری شدهاند و این بافت با سطوح خشن و تراشخورده در بالا و کنارهها در تضاد است. دیوارهای بتنی زمخت با بافت دانهدار و کفسازی آجری، فضایی پیچوتابدار و پویا ایجاد میکنند و محیطی هنری در همتنیده با طبیعت پدید میآورند.
پل چشمانداز در ورودی سایت از فولاد هواخور (Weathering Steel) ساخته شده است که با گذر زمان رنگ و بافت منحصربهفردی پیدا میکند. در این بستر طبیعی، پل با نمای محو و شاعرانهٔ موزهٔ هنر در هماهنگی قرار میگیرد و نقطهٔ آغازین مسیر بازدیدکنندگان برای ورود و اکتشاف در موزه را شکل میدهد.
























