- خانه
- معرفی پروژه
- پروژه های خارجی
- مرکز ملی هنری کائوسیونگ | National Kaohsiung Center for the Arts




































معمار: Mecanoo
سال: 2018
مساحت سایت: 141000 مترمربع
شهر: کائوسیونگ
کشور: تایوان
توضیحات پروژه ارائهشده توسط معماران: (متن ترجمه شده از انگلیسی)
این پروژه معماری بینظیر از canopy پیچخوردهای الهام گرفته که توسط خوشههای درختان انجیر چتری در منطقه ایجاد میشود. ساختمان واحد و منحنیشکل این مرکز در مساحتی بالغ بر ۳۵ هکتار (۱۴۱،۰۰۰ مترمربع) واقع شده و در پارک گرمسیری ۱۱۶ هکتاری (۴۷۰،۰۰۰ مترمربع) در مرکز شهر کاوهشیونگ تایوان قرار دارد. این مرکز بزرگترین مرکز هنرهای نمایشی در جهان است که در یک سقف جمع شده و مهمترین سرمایهگذاری فرهنگی تایوان در یک نسل به شمار میرود.
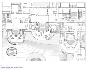
این مرکز شامل پنج فضای اجرایی پیشرفته است:
یک اپرا هال با ۲،۲۳۶ صندلی
یک کنسرت هال با ۱،۹۸۱ صندلی
یک پلی هاوس با ۱،۲۱۰ صندلی
یک رایسیتال هال با ۴۳۴ صندلی
یک تئاتر فضای باز که ساختمان را به پارک متصل میکند.
شهر کاوهشیونگ، با جمعیتی حدود ۳ میلیون نفر، در جنوب تایوان قرار دارد. این شهر که پیشتر یک بندر بینالمللی مهم بود، اکنون به یک شهر مدرن و متنوع با پیشنهادات فرهنگی غنی تبدیل شده است. مرکز هنرهای ملی کاوهشیونگ در سایتی که پیشتر یک پایگاه آموزشی نظامی بوده، نمادی از چشمانداز در حال توسعه شهر کاوهشیونگ و تایوان است. هدف این مرکز ایجاد ارتباط میان استعدادهای محلی و جهانی از طریق هنر و فرهنگ است.
مدیر هنری ویویینگ، چین ون-پین، در این مورد اظهار کرد: «چیزی که بازدیدکنندگان خارجی در ویویینگ تجربه خواهند کرد، اشتیاق به تئاتر، رقص، نمایش و موسیقی است که در تایوان همهجا حضور دارد. تماشاگران ما بسیار مشتاق و با دانش هستند. من همچنان با هنرمندان داخلی و خارجی کار خواهم کرد تا ایدههای جدیدی برای برنامهریزی بیابیم که منعکسکننده بهترینهای عمل معاصر باشد. ویویینگ با امکانات بینظیر خود به ما این فرصت را میدهد تا آزمایش کنیم، جسور و نوآور باشیم و چیزهای جدیدی امتحان کنیم.»
افتتاح مرکز هنرهای ملی کاوهشیونگ در اکتبر ۲۰۱۸ به تکمیل سازمان ملی هنرهای نمایشی تایوان (National Performing Arts Center) کمک کرد. این سازمان شامل تئاتر و کنسرت هال ملی تایپه و تئاتر ملی تایچونگ میشود. این سه نهاد پرچمدار، خانهی شرکتهای برجسته رقص و تئاتر معاصر تایوان، ارکسترهای موسیقی غربی و چینی، گروههای اپرا از پکن، تایوان و غرب، گروههای عروسکی دستسازی، فیلمسازان برنده جایزه اسکار و شیر طلایی، نویسندگان نامزد جایزه بوکر، ستارگان ماندوپاپ و غیره خواهند بود.
جهت دسترسی به پروژههای بیشتر به این صفحه از سایت مراجعه کنید.
” تمامی حقوق مادی و معنوی محتوا متعلق به پایگاه خبری جهان معماری می باشد “