- خانه
- معرفی پروژه
- پروژه های داخلی
- ویلای 131 – استودیو طراحی براکت




















اصفهان در طول دوران یک باغ شهر بوده است، ولی امروزه از آن باغها تنها چند اسم باقی ماندهاند. باغهایی باصفا که در جریان توسعهی شهر تبدیل به کوچه و خیابان و محله شدهاند. اما در اطراف اصفهان هنوز باغها و بیشهها کماکان زندهاند و در آنها زندگی جاریست. روند فرار از شهر و روی آوردن مردم به زندگی در شهرکهای ویلائی و بیشههای اطراف روز به روز بیشتر میشود. در این طرح که در یکی از شهرک های حاشیه اصفهان ساخته شده، کارفرما تصمیم گرفته بود که در باغ زندگی کند.
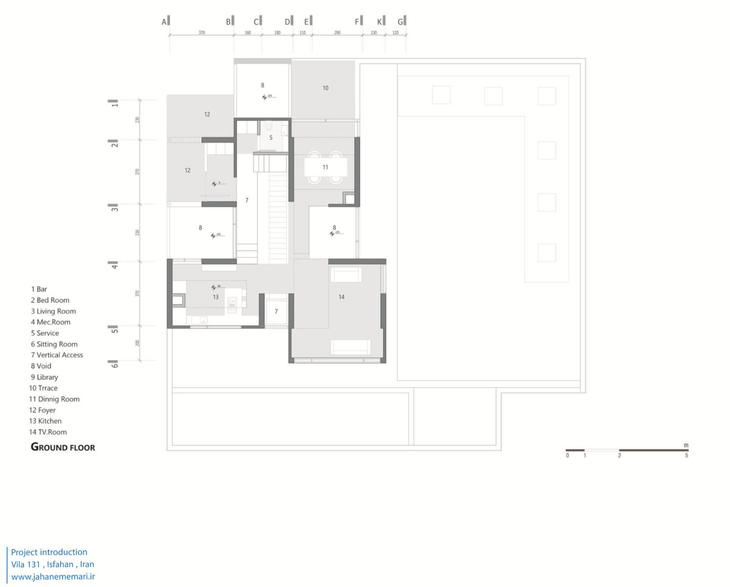
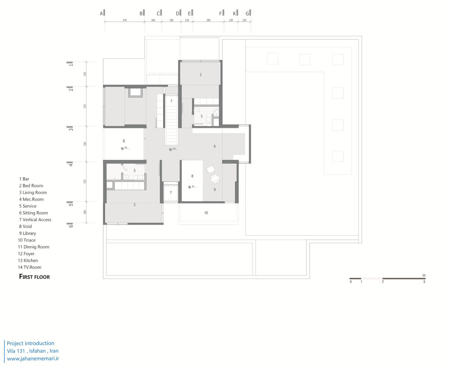
امروز شهرها پر هیاهو شدهاند و سیمای شهری مدام فریاد میکشد و بیقرار و بلاتکلیف است و در این بین زندگی در یک عمارت ساده که میان باغی مصفا بنا شده، مجالی برای سکوت و شنیدن صدای طبیعت فراهم میآورد. ضوابط ساخت در شهرک در عین حال که به آن نظم می بخشد محدودیت هایی نیز اعمال می کند. محدودیت هایی که خود دستآویز طراحی این باغ – ویلا شده است. ارتفاع نباید از حد سایر پلاکها (حدود ۸ متر) بالاتر باشد، در نتیجه زیر بنای بیش از ۴۰۰ متر درخواستی کارفرما در سطح اشغال حدود ۱۵% زمین، در دو طبقه و در این ارتفاع قابل دستیابی نبود. همچنین، پلاکها با پرچین و دیوارهای کوتاه و فَنس از خیابان و زمینهای کناری جدا شدهاند که این شرایط موجب میشود خانهها از اطراف دیده شوند. برای رسیدن به سطح مورد نیاز کارفرما، به طبقه سومی نیاز بود که با توجه به ضوابط در زیر زمین باید تعبیه می شد. به همین دلیل باغ را به دو بخش تقسیم شد، یکی هم تراز خیابان و دیگری پائین تر از سطح زمین که یک گودالباغچه پدید آوَرد. باغچهای که فضاهای خصوصی خانه، حیات و استخری که در آن است از دید مصون می ماند و به تلطیف هوای گرم و خشک کویری در تابستان کمک می کند.
ساختمان باغ از سه ردیف دیوار در امتداد شرقی-غربی و چهار ردیف دیوار در امتداد شمالی- جنوبی شکل گرفته که ترکیب عمودی و افقی این دیوارها مکعبهایی را بهوجود آورده است. ازکنار هم نشستن آنها فضاهای عمومی، خصوصی و فضای ما بین شکل گرفته است. به نحوی که چشم از هرطبقه به طبقه دیگر بدَوَد و از میان این گشایشها چشماندازهایی از باغ قاب شود و در عین حال همین ترکیب سازه و نمای اصلی بنا را نیز ساخته است.
در واقع ساختار اصلی این خانه و دیوارهای حائلی که خاک گودال باغچه را مهار کردهاند و نیز هر چیز دیگری که معماری این طرح را پدید آورده از کنار هم چیدن دیوارهای بتنی مدولار یک در یک (به متر) به دست آمده است. لغزش دیوارها روی هم، جلو و عقب نشستن آنها ، به هم رسیدن یا فاصله گرفتن آنها از هم فضاهایی را به وجود آورده تا بنا ساکنینش را در آغوش بگیرد و به باغ نگران باشد. ساختمانی باشد خنثی که در “درون” اشیاء واشخاص و رنگ هایی که به آن افزوده می شود خاطره ها را شکل می دهند. و در “بیرون” گیاهان و سبزینگی به دوشش سوار میشوند. بنایی به رنگ خاکستری فارغ از هر تزیین و الحاق، نشسته بر بستر سبز باغ، مجالی که با خاطرهها و یادگارها رنگ تعلق بگیرد، در شور و هیجان اتفاقات سهیم شود و باز به سکوت و ارامش خود برگردد.
جهت دسترسی به پروژه های بیشتر به این صفحه از سایت مراجعه کنید.
” تمامی حقوق مادی و معنوی محتوا متعلق به پایگاه خبری جهان معماری می باشد “