- خانه
- معرفی پروژه
- پروژه های داخلی
- پلتفرم رُست – دفتر معماری اشعری


























































































































در بسیاری از مناطق شهری ارزشمند، فضاهای مسکونی بدون توجه به اصول برنامهریزی شهری و زیرساختها به فضاهای تجاری تبدیل میشوند. این روند منجر به آشفتگی بصری شده، هویت شهری و حس مکان را تضعیف میکند. در نتیجه، حس تعلق و ارتباط اجتماعی کاهش یافته و امنیت شهری نیز افزایش مییابد.
محل پروژه پیشتر یک فروشگاه مبلمان بوده است. در نمایی که رو به بلوار ملکآباد مشهد داشت، یک کمد بزرگ نصب شده بود که بهطور ضمنی یادآور نظریه «ساختمان تزیینی» رابرت ونچوری و دنیس اسکات براون است. این نظریه تأکید دارد که هویت یک ساختمان از طریق فرم و معماری آن شکل نمیگیرد بلکه از طریق تزئینات و یا تابلوهای گرافیکی در نمای ساختمان شکل میگیرد.
در مقابل، نمای رو به خیابان بزرگمهر نتیجه گسترش تجاری کنترلنشده بود که با سطوح شیشهای وسیع و پر از اطلاعات بصری مشخص میشد.
هر دو این رویکردها در معماری تجاری رایج هستند، اما به اختلال بصری و آشفتگی شهری کمک میکنند. رفع این مشکل بهعنوان یک دغدغه اصلی در طراحی پروژه مطرح شد.
سوالی اساسی در طول فرآیند بازسازی پیش آمد:
چگونه میتوان طراحی مجدد را طوری انجام داد که هویت منحصر به فردی برای پروژه ایجاد کند و از آشفتگی بصری بیشتر در شهر جلوگیری نماید؟
نمای خارجی نمایشگاه با رویکردی انتقادی طراحی شده است—فرم آن ساده، سفید و یکپارچه است که حداقل شفافیت و ابعاد کوچکی برای ویترینها دارد. باوجود سادگی، پانلهای نمای خارجی بهطور ملایم در گوشهها به سمت داخل خم میشوند و بهطور یکپارچه با دیوارهای داخلی که فضای نمایش محصولات را احاطه کردهاند، ترکیب میشوند. این رویکرد یکپارچه، هویتی را ایجاد میکند که از درون فضا سرچشمه گرفته و به حیطه عمومی امتداد مییابد.
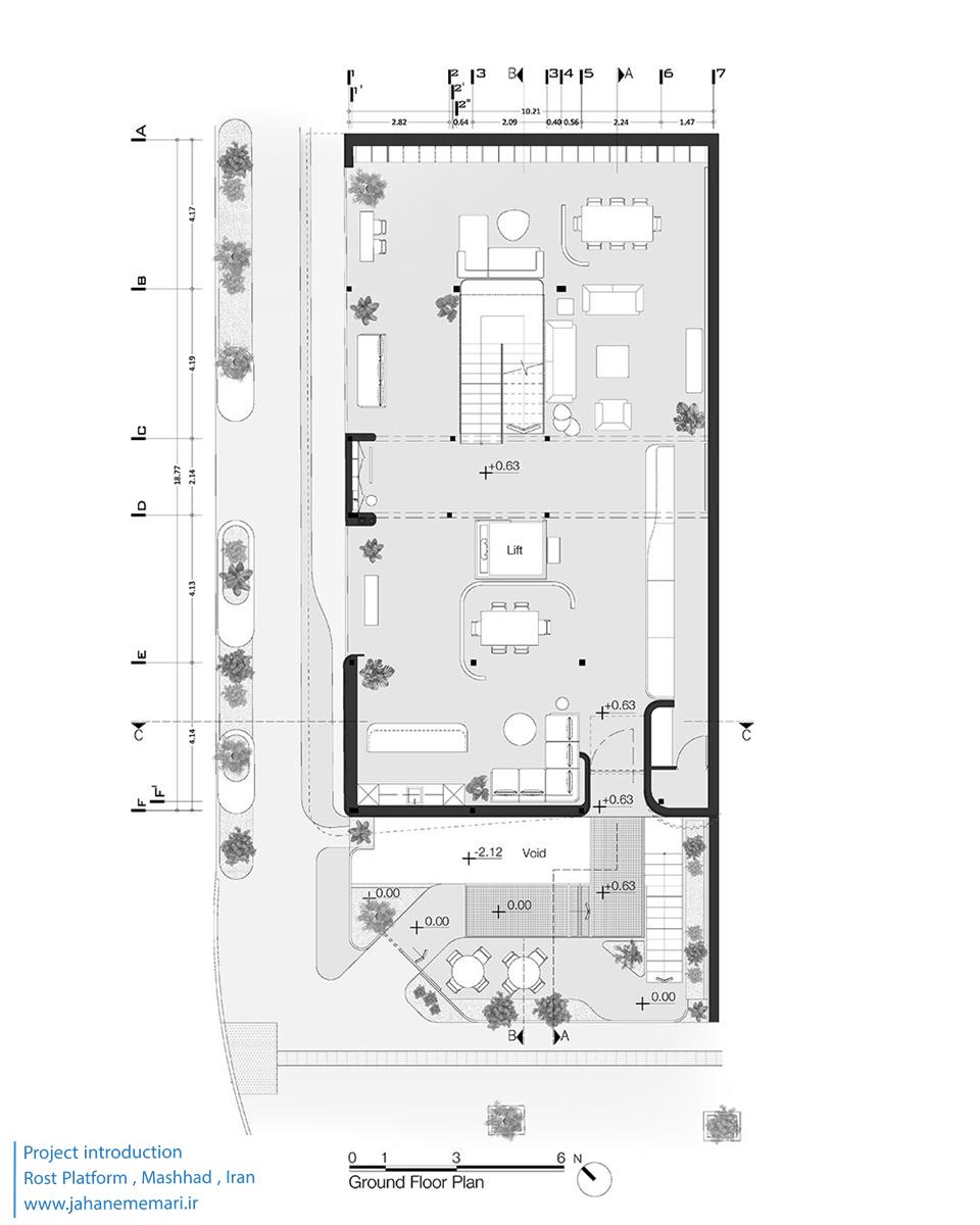
چیدمان جدید ورودی را در گوشهی ساختمان قرار میدهد. با شکستن مسیر و ایجاد سلسلهمراتب فضایی، انتقال به داخل نمایشگاه تدریجی میشود و بازدیدکنندگان از محیط پرهیاهو شهری به داخل فضایی آرامتر هدایت میشوند. این طراحی حس کنجکاوی را برانگیخته و بازدید از فضا را ترغیب میکند.
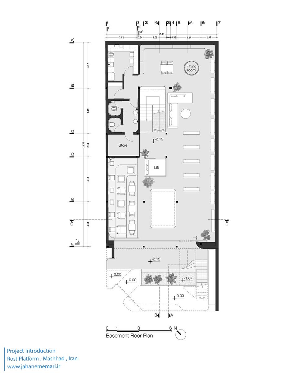
مسیر ورودی شامل یک پل معلق است که به طبقهی همکف میرسد و پلههایی که به حیاط پایینرفته هدایت میشود. علاوه بر ایجاد سیالیت در حرکت و خطوط دید، این رویکرد نور طبیعی را به طبقات پایینتر وارد میکند.
در نمای خارجی، بازشوهایی با طراحی دقیق نمایانگر دیدهایی از باغ ملکآباد هستند که همزمان اجازه میدهند تا برشهای کنترلشدهای از نور طبیعی وارد فضا شوند. این بازشوها بهعنوان دعوتهای ظریفی برای عبورکنندگان عمل میکنند و علاقهمندی به کشف فضای داخلی را برمیانگیزند.
در گذشته، نمایشگاهها فضای نمایش محصولات و تعامل مستقیم با مشتریان بودند. اما با بازتعریف این مفهوم فراتر از یک عملکرد منفرد—با امکان برگزاری رویدادهای فرهنگی و اجتماعی—این پروژه داینامیک اجتماعی بیشتری را در بافت شهری اطراف ایجاد میکند.
سوالی دیگر در این مسیر مطرح شد:
آیا نمایشگاههای خصوصی و نمایشگاههای مبلمان میتوانند بهعنوان پلتفرمهایی برای رویدادهای فرهنگی و اجتماعی عمل کنند؟
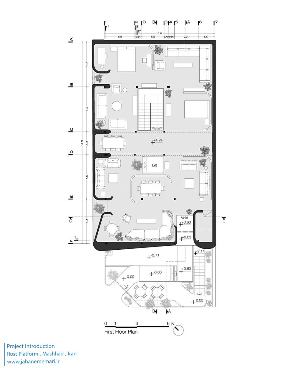
در پاسخ به این سوال، طراحی به انعطافپذیری پرداخته و به فضای امکان تطبیق با عملکردهای مختلف در طول زمان، از جمله گردهماییهای فرهنگی و اجتماعی، میدهد. برای رسیدن به این هدف، نیاز به یک سازمان فضایی باز و بدون موانع وجود داشت.
با این حال، ساختار اصلی—که شامل یک چیدمان فشرده و سقفهای پایین بود—منجر به ایجاد فضاهایی تکهتکه میشد که با قابلیت انطباق مشکل داشتند. برای رفع این مشکل، تقویتهای ساختاری اعمال شد و بخشهایی از دیوارها و سقف برداشته شد تا محیطی بازتر و انعطافپذیرتر ایجاد گردد. در جایی که تفکیک فضایی لازم بود، پنلهای پلیکربنات معلق به فضا اضافه شد. این عناصر نیمهشفاف مرزهایی تعریف میکنند در حالی که پیوستگی فضایی را حفظ کرده و نگاههای انتزاعی از فعالیتهای مجاور ایجاد میکنند و حس کنجکاوی و بازیگوشی را برمیانگیزند.
پلتفرم رُست خود را از ساختمانهای تجاری اطراف با سادگی و حذف اضافات متمایز میکند و موجب میشود که مخاطبان بهطور دقیقتری با آن درگیر شوند. این رویکرد نهتنها نقش اجتماعی پروژه را در شهر تقویت میکند بلکه فراتر از یک نمایشگاه معمولی قرار میگیرد. با فراهم کردن فضایی برای رویدادهای فرهنگی، پروژه خود را بهعنوان یک پلتفرم—فضایی پویا و در حال تحول که فراتر از کارکرد تجاری خود عمل میکند—تعریف میکند.
جهت دسترسی به پروژه های بیشتر به این صفحه از سایت مراجعه کنید.
” تمامی حقوق مادی و معنوی محتوا متعلق به پایگاه خبری جهان معماری می باشد “