- خانه
- معرفی پروژه
- پروژه های خارجی
- موزه ملی هنر قرن بیست و یکم ( موزه ماکسی ) | MAXXI Museum



























معمار: Zaha Hadid Architects
سال: 2009
مساحت: 27000 متر مربع
شهر: رم
کشور: ایتالیا
توضیحات پروژه ارائهشده توسط معماران: (متن ترجمه شده از انگلیسی)
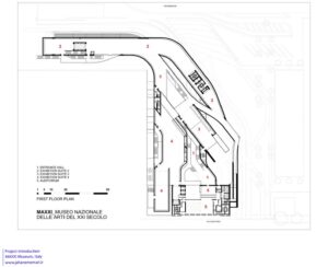
با ورود به وبسایت دفتر معماری زها حدید، صفحهی اصلی شامل پیوندهای مختلفی به بخشهای گوناگون این دفتر است که روی یک پلان شماتیک نمایش داده شده؛ این پلان، پلان موزه ماکسی (MAXXI Museum) یا همان موزه هنرهای قرن بیستویکم در رم است. این نکتهی جانبی نشاندهندهی اهمیت موزه ماکسی در میان پروژههای اجراشده توسط زها حدید است. این موزه پس از ده سال تکمیل شد و اخیراً طی پیشنمایشی برای عموم گشایش یافت.
به گفتهی معمار، این موزه «یک شیء یا محفظهی نگهدارندهی آثار نیست، بلکه پردیسی برای هنر است»؛ جایی که جریانها و مسیرها بر هم منطبق و متصل میشوند تا فضایی پویا و تعاملی ایجاد کنند. گرچه برنامهی فضایی در پلان بهصورت واضح و سازمانیافته تعریف شده، اما انعطافپذیری در استفاده، هدف اصلی پروژه به شمار میرود. پیوستگی فضاها آن را به مکانی مناسب برای هر نوع نمایشگاه متحرک و موقتی تبدیل کرده است، بدون دیوارهای اضافی یا وقفههای فضایی.
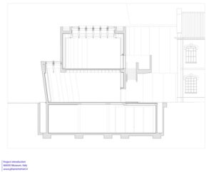
با ورود به آتریوم، عناصر اصلی پروژه آشکار میشوند: دیوارهای منحنی بتنی، پلههای سیاهِ معلق، و سقف باز که نور طبیعی را به درون جذب میکند. زها حدید با استفاده از این عناصر، قصد داشت نوعی «فضامندی سیال نوین با نقاط دید چندگانه و هندسهی قطعهقطعهشده» را بیافریند؛ فضایی که بازتابدهندهی «سیالیت آشفتهی زندگی مدرن» باشد.
این بیانیهی معمار – مانند همیشه در آثار او – پرسشی را مطرح کرد که آیا مفهوم «سیالیت واگسیخته» با هویت شهری «ایستا» چون رم و با میراث کلاسیک آن سازگار است یا نه. پاسخ منتقدان و عموم مردم مثبت بود. بهویژه در این بافت، یعنی در ارتباط با ساختمانهای موجود، دیوارهای منحنی و صیقلی موزه در گفتوگویی هماهنگ با نماهای متقارن نئوکلاسیک قرار میگیرند. این ارگانیزم جدید در گسترش خود ساختمان جلویی را نیز دربر میگیرد و با سطوح تمیز و بدون بازشو در طرفین، امکان و ضرورت همزیستی را آشکار میسازد.
موزه بهخوبی در بافت شهری بلوک خود جای گرفته و از خطوط راهنمای آن تبعیت میکند، در حالی که بالهای بریدهی انتهاییاش بهصورت دیدگاههایی پانورامیک به شهر گشوده میشوند.
توجه ویژهای به نور طبیعی شده است؛ تیرهای بتنی باریک در سقف، همراه با پوششهای شیشهای و سامانههای فیلترکننده، نور را کنترل میکنند. همین تیرها دارای ریلهایی در بخش زیرین هستند که آثار هنری از آنها آویخته خواهند شد. تیرها، پلکانها و سیستم نور خطی، بازدیدکنندگان را در امتداد مسیر داخلی هدایت میکنند که در نهایت به فضای وسیع طبقهی سوم میرسد. از اینجا، پنجرهای بزرگ چشماندازی رو به شهر ارائه میدهد، هرچند هستهی حجیم ساختمان تا حدی این دید را مسدود میکند.
این موزه بهصورت فعال با موقعیت خود – شهر رم و حاشیهی نخست آن – در تعامل است؛ نه بخشی از مرکز تاریخی، اما همچنان در قلب شهر. محلهی فلامینیو در سالهای اخیر درگیر برنامهای برای بازآفرینی و جذب عمومی بوده است؛ تازهترین نمونهی آن تالار موسیقی طراحیشده توسط رنزو پیانو است. فرآیند طولانی ساخت موزه ماکسی ایدهی شهر نوسازیشده را کامل میکند.
علاوه بر این، ماکسی نخستین موزهی ملی هنر معاصر در ایتالیاست. این موزه توجه گستردهی عمومی و رسانهای را به خود جلب خواهد کرد و همزمان فعالیتهای اقتصادی پیرامون خود را افزایش میدهد؛ بهگونهای که این بنا به نقطهای مرکزی برای شهر رم تبدیل خواهد شد، شهری که همواره در جستجوی هویت معاصر خود است.
— آندرهآ جانوتی
جهت دسترسی به پروژههای بیشتر به این صفحه از سایت مراجعه کنید.
” تمامی حقوق مادی و معنوی محتوا متعلق به پایگاه خبری جهان معماری می باشد “