- خانه
- معرفی پروژه
- پروژه های داخلی
- ساختمان مسکونی دعا – استودیو مکعب سفید






















در زمینهای که تراکم شهری تنفس را دشوار کرده و مرزها در اختیار و تصرفاند، «خانه دعا» تلاشی است برای ایجاد مکثی آرام در جریان پرشتاب زندگی شهری.
حجمها نه برای نمایش، بلکه بر اساس نیاز و ضرورت جابهجا شدهاند؛ هر حذف و افزایشی پاسخی است به نوری که باید عبور کند و امکانی برای نگاهی که از خلال شیشه افق را لمس میکند.
ایجاد فضاهای نیمهباز متنوع، که در نتیجهی اثر دومینویی حجمها شکل گرفته، از نقاط قوت تجربهشده در خانه دعاست. این پروژه بهجای آنکه نمایانگر یک ایدهی ثابت باشد، چارچوبی انعطافپذیر برای خلق سبکهای متنوع زندگی فراهم میکند؛ موقعیتهایی که بسته به زمان روز، فصل و عملکرد، تجربهای تازه و چندلایه را برای ساکنان ارائه میدهند.
جابجایی حجمها نهتنها یک حرکت فرمی بلکه روشی است برای تعریف تغییرات در شدت نور، کیفیت دید و مرزهای حریم خصوصی. هر پیشروی و عقبنشینی زاویه و شدت نور را تغییر میدهد، الگوهای جریان هوا را بازتعریف میکند و تعاملات بصری میان فضاهای داخلی و بیرونی را تنظیم میکند.
سنگ تراورتن روشن یادآور خاطرهای از سپیدی است که نه برای پوشاندن، بلکه برای آشکار کردن خطوط سکوت و سایه به کار رفته است. بالکنها، بهعنوان آستانهای میان درون و بیرون، جایی هستند که باد، صدا و نور از آن عبور میکنند و زندگی در لبهها جریان مییابد. شیارهای تیره روی پیکرهی دعا همچون رگهایی پنهان، تصویری آرامشبخش در تضاد با سپیدی ایجاد میکنند.
دعا چیزی فراتر از یک سکونتگاه صرف است؛ بازتفسیر معاصر مفاهیمی چون حریم خصوصی، گشودگی، و تجربهی فضایی چندلایه در بستر زندگی شتابزده و پرهیاهوی امروز است. این پروژه یک شیء ایستا نیست، بلکه تجربهای است که در آن معماری و زندگی، در درهمتنیدگی پر و خالی، سایه و نور، خلوت و گشودگی، میکوشند به تعادلی پویا دست یابند.
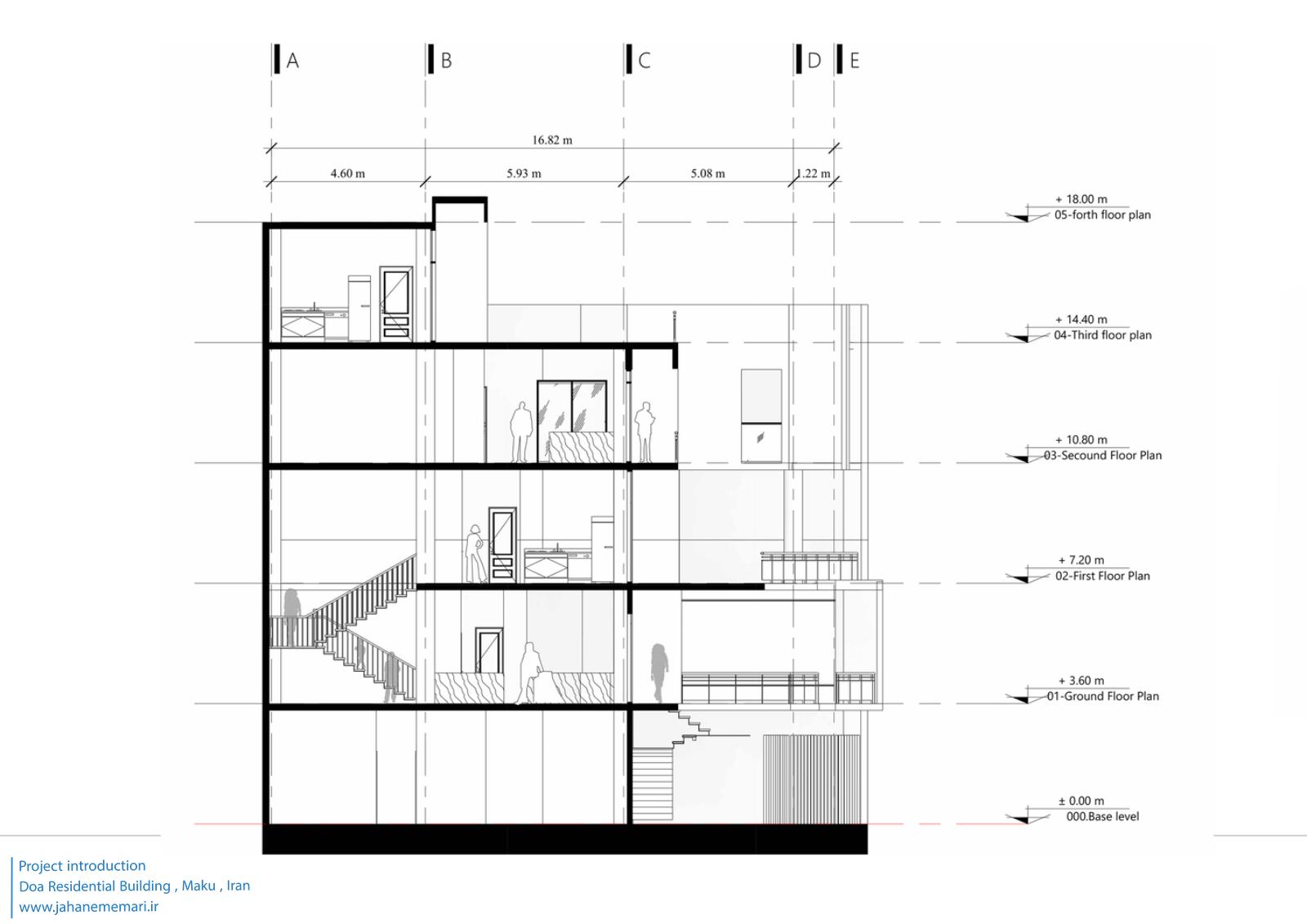
پروژهی دعا در پنج تراز اصلی سازماندهی شده است که هرکدام ادامهای طبیعی از ایدهی کلی طراحی و پاسخی به نیازهای عملکردی ساکنان محسوب میشود.
طبقهی همکف که به پارکینگ اختصاص دارد، ارتباط مستقیم با هستهی عمودی شامل پلکان اصلی و آسانسور فراهم میکند. از این هسته، یا از طریق پلکان بیرونی، میتوان به طبقهی اول رسید؛ جایی که آشپزخانه و نشیمن بهعنوان قلب خانه قرار گرفتهاند و با پلکانی داخلی مستقیماً به طبقهی دوم متصل میشوند. این ارتباط عمودی، افزون بر کارکرد خود، کیفیت فضاییای ایجاد میکند که حس پویایی و پیوستگی را در سراسر خانه تقویت میکند.
طبقهی دوم که فضایی خالی در مرکز پروژه را در بر میگیرد، شامل یک اتاقخواب، یک نشیمن دنج و یک اتاقخواب مستر بزرگ است که نور، دید و آرامش را در خود ترکیب میکند.
با ادامهی مسیر از طریق پلکان اصلی و آسانسور، به طبقهی سوم میرسیم؛ جایی که یک واحد دوخوابه قرار دارد و تنوع عملکردی این طبقه امکان استقلال و انعطافپذیری در زندگی روزمره را فراهم میکند.
در نهایت، مرتفعترین تراز پروژه به فضای نشیمن و ناهارخوری روباز اختصاص یافته است که در مقابل آن استخری کوچک قرار دارد — فضایی که تجربهی سکون و آرامش را در بلندترین نقطهی ساختمان کامل میسازد.
جهت دسترسی به پروژه های بیشتر به این صفحه از سایت مراجعه کنید.
” تمامی حقوق مادی و معنوی محتوا متعلق به پایگاه خبری جهان معماری می باشد “
بسیار عالییه زشتی زمین که قناس باشه طوری طراحی کردیید که زیبایی زمین شده منم میخاستم ساخت و ساز کنم حتمن با این گروه هنرمند تماس میگیرم