- خانه
- معرفی پروژه
- پروژه های داخلی
- خانه هم سنگ – استودیو گلچین



































در میانه های خیابان میثم، روبروی مدرسه دو نوبتۀ اباذر خانهای هست که از مستخدم مدرسه و سازندگانش تا همسایهها، به سبب ارتباط فامیلی دور و نزدیک با کارفرمای خانه، با آن هم داستان هستند: داستان هویت محلی.
در فرهنگ واژگان معین واژۀ همسنگ برابر با 1. هم وزن و 2.هم – شأن ، هم رتبه است. نامی که بر اساس رفتار خانه با دیگران برای آن انتخاب شده است. در قدم اول سعی شده تا خانه (منزل) به مثابۀ کاربرانش در جامعۀ اطراف خود رفتاری متین داشته باشد تا بتواند منشا اثر شود.
خانۀ همسنگ در شهرستان دولتآباد اصفهان، برای یک خانواده چهار نفره شامل پدر، مادر و دو فرزند طراحی شده است. طرح از دل گفتوگویی عمیق با بافت شهری و تاثیرپذیری از فرهنگ محلی زاده شده است. کانسپت شهری این بنا امتداد حضور بی آلایش در یک کانتکست کم هیاهو است. در دولتآباد، معماری مسکونی از الگوی آشنایی پیروی میکند که برای همۀ اقشار یک استاندارد دارد؛ خانه برای زندگی کردن، فردی، خانوادگی، و یا بعضاَ جمعی! در این الگو ارزشهای فضایی و فرهنگی، بر جلوههای ظاهری ارجحیت دارند. افراد هم در این اجتماع کوچک همسنگ هستند!
زندگی در این شهر همچنان در حد توان حول خانههای حیاطی شکل میگیرد؛ حتی مجتمعهای مسکونی افقی هستند! خانواده ها در حد توان، به هم نزدیک می شوند، مادربزرگ و پدربزرگ به نوه ها نزدیکند؛ فرزندان جدا از والدین نیستند؛ و این الگو تکرار می شود، و این بنا سعی دارد به این زنجیره کمک کند که تا حد امکان خانه همچنان جایی باشد برای تعامل خانواده. جایی باشد که همه بتوانند سهمی از آن را داشته باشند تا شاید به سبب بهتر شدن وضع زندگی، کسی به شهرهای بزرگتر نرود. در واقع به دور از هیاهوی کلمات و فرمهای سنگین و ناخوانا، این پروژه برای ما تمرینی بود برای عمق بخشیدن به همزیستی افراد. در این تمرین، خانه پیام است از نسل گذشته به حال و همینطور برای آینده، که بمانید و این راه را ادامه دهید و شهر خود را زیست کنید!
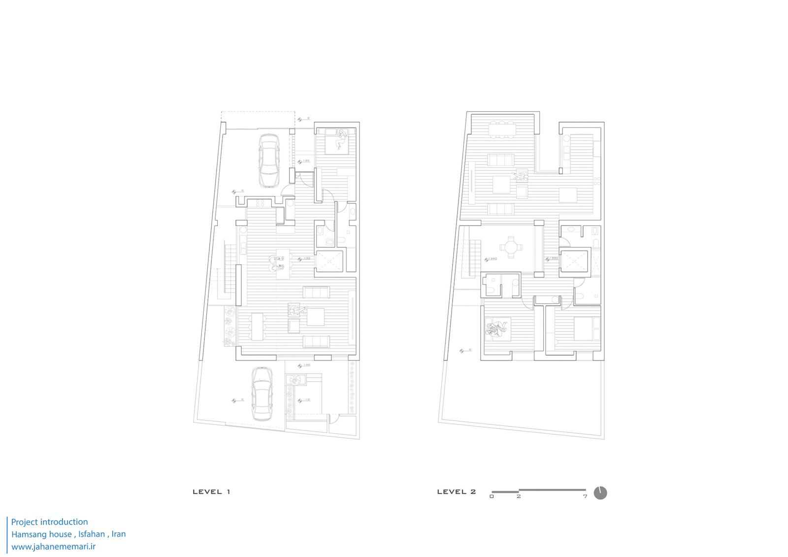
اولویت کارفرما انتخاب زمینی در نزدیکی خانه پدر و مادر (پدربزرگ و مادربزرگ) بود، حتی اگر کوچک و در یک ضلع ناگونیا باشد. این انتخاب نهتنها فاصله ها را کم کرد، بلکه امکان داد تا فضایی برای رفت و آمد آنها به این خانه پیش بینی شود. کانسپت اصلی بنا جانمایی تمامی لکه های پلان حول محور فصاهای باز است: هر لکه عملکردی باید در کنار خود گشودگی ببیند، که همانا پیام آور دید و نور و تهویه است؛ فصاهای مطلوب برای فعالیت جمعی و فردی!
انتخاب مصالح ریشه در هویت محله دارد. بدنهی ساختمان با آجر سنتی دستی پوشانده شده تا پیوندی بصری و فرهنگی با بافت ایجاد شود.
جانمایی بازشوها در نما از دل پلان سرچشمه میگیرد و کاملاً عملکردی است. هر بخش نما دقیقاً در جایی شکل گرفته که نیاز عملکردی به آن وجود داشته باشد: در جایی پنجره، در جایی حفره و در جایی دیگر حیاط و دسترسی. به واقع در کانسپت اصلی برای ما معماری چیزی جز همسنگی با بافت نبوده اما در درون خانه جایی که تعاملات خانوادگی رخ میدهد، تمرین سامانۀ بازشوها برای اینجاد فضاهایی متنوع برای کاربران فضا بود. هر پنجره یک روایت از بیرون به درون و یک ماجرا از درون به بیرون دارد!
به دلیل کوچک بودن زمین و عرض کم حیاط، حیاطهای تکمیلی چندعملکردی متناسب با سبک زندگی جمعی پیش بینی شدهاند. در طبقه بالا نیز یک حیاط مرکزی تعبیه شده که هم بهعنوان مفصل بین فضاهای خصوصی و جمعی عمل میکند، هم نورگیری را بهبود میبخشد و هم ارتباط میان طبقه پایین و بام را فراهم میکند. طراحی فرم و نمای این بنا چهار هدف اصلی را دنبال میکند: تأمین نور طبیعی بهینه – ایجاد حریم میان بنا و همسایهها، و همچنین میان فضاهای داخلی خانه – حذف دید و سر و صدای نامطلوب – تاثیر مستقیم پلان بر نما.
سازماندهی پلان به گونه ای است که هم با ضلع شمال و هم جنوب زمین به خوبی کارکند. پارکینگ و دسترسی عمودی پله به عنوان یک ضلع در سمت غرب جانمایی شدند تا ناگونیا بودن زمین را خوشایند کنند و همزمان فضای کافی برای ایجاد دیگر عملکردها را فراهم کنند. اتاق مهمان در ابتدای ورودی برای سهولت تردد پدربزرگ و مادربزرگ در نظر گرفته شد اما به گونه ای که برای ساکنین هم براحتی قابل استفاده باشد. آسانسور در قلب خانه مسئول جابجایی افراد در طبقات را برعهده دارد اما همزمان دستگاه پله تمامی لکه ها را متصل می کند؛ اما وظیفۀ اصلی اش اتصال ورودی های پایین به قلب پلان بالاست: حیاط جمعی! پلان در تلاش است تا برای تک تک سکانس های بصری چیزی بجز دیوارهای سفید داخلی فراهم کند: آشپزخانه ها هر دو به سمت بیرون دید و تهویه دارند، سالنها هردو به سمت حیاط دید بصری دارند و اگر آب و هوا یاری کند، تهویه نیز با نسیمی خنک از پنجره ها وارد می شوند. فضاها نور جنوب دارند و نفس می کشند، حتی پارکینگ از حیاط شمالی نور می گیرد و از حیاط جنوبی، به سبب اتصال غیر مستقیم، هوای تازه می گیرد: پارکینگ به گونه ای طراحی شده تا در مناسبت های خاص که خانواده با تعداد زیاد دورهم جمع می شوند، با اتصال به حیاط و آشپزخانه، تبدیل به فضای خدماتی و یا پذیرایی شود. راهروی اتاق های بالا با توجه به همجواری راهروی خدماتی، می تواند به صورت جدا کار کند، به گونه ای که افراد با پله یا آسانسور بدون عبور از فضای جمعی به سمت هرکدام از حیاط ها و فضاهای طبقه پایین بروند. آجرچینی ضلع غربی راهروی خدماتی در طبقه بالا علاوه بر بهینه کردن آفتاب غرب نقش پارتیشنی نامرئی را بازی می کند.
حیاطِ خانوادگی در طبقه بالا مرکز به هم رسیدن افراد و اتفقات بناست جایی که هرکس در هر زمانی به دیگری می رسد و تجربه و پیامی رد و بدل می کند: قلب تپندۀ خانۀ همسنگ با بافت …! لوکوربوزیه در جایی می گوید: “خانه ماشینی است برای زندگی کردن.” اگر این جمله به دست یک دولت آبادی بازنویسی شود چه می نویسد؟ تلاش ما بر این بوده تا در جواب آنها تاثیرگذار بوده باشیم…
جهت دسترسی به پروژه های بیشتر به این صفحه از سایت مراجعه کنید.
” تمامی حقوق مادی و معنوی محتوا متعلق به پایگاه خبری جهان معماری می باشد “