- خانه
- معرفی پروژه
- پروژه های داخلی
- آپارتمان 1+5 – معماران رویداد



























یکی از معمولترین و پرتعدادترین پروژههای غیر عمرانی شهرهای مدام در حال توسعه ما، پروژههای مسکونی پنج طبقه روی پیلوت Infill “مشارکتی” هستند که بر اساس منطق بازار تنها بر اعتماد مالکین بر سازنده شکل میگیرند. معماران در این ساخت و سازهای بی انتها معمولا جایگاهی ندارند!
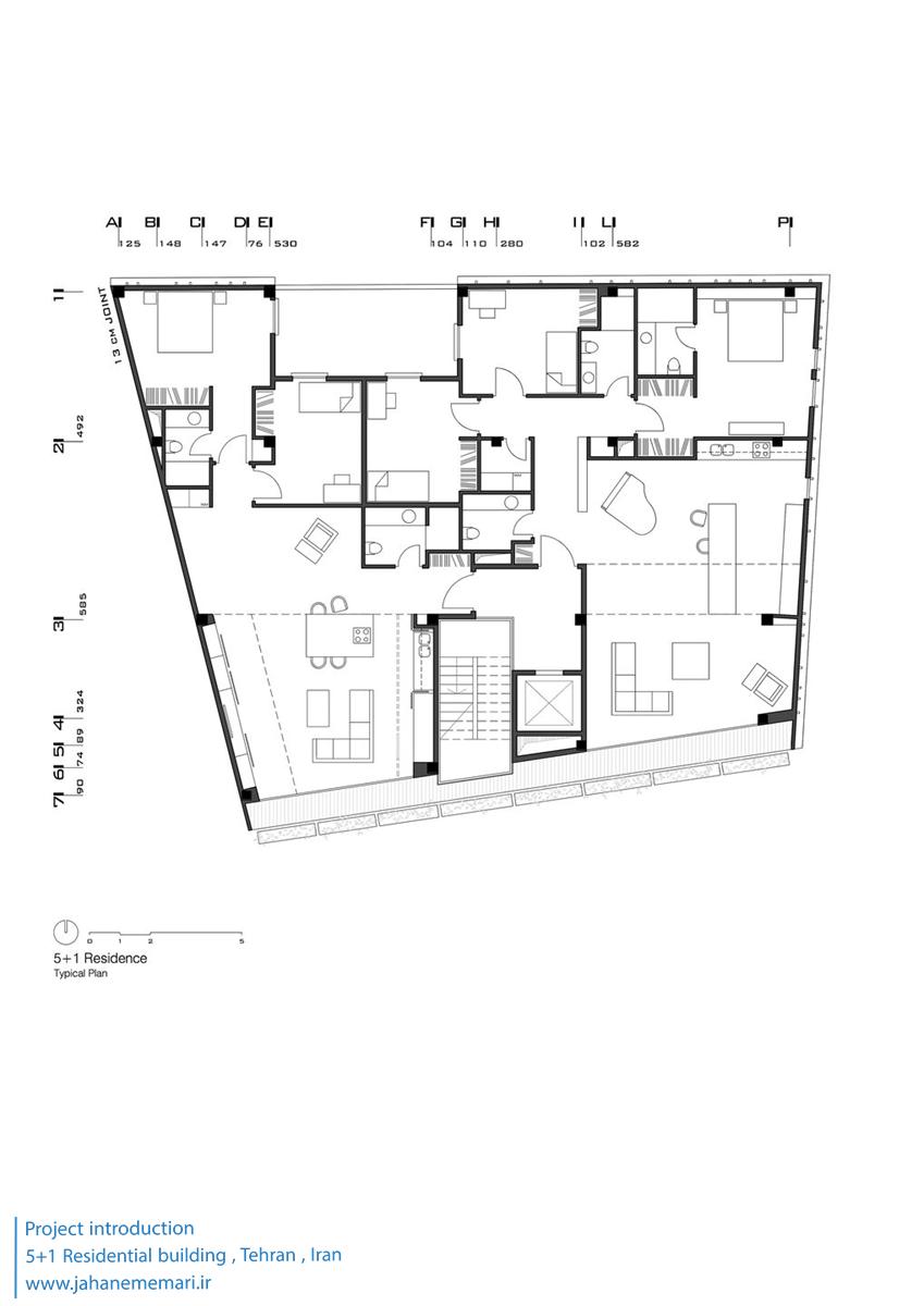
پروژه مسکونی “پنج بعلاوه یک” از این دست پروژهها بود. پنج مالک با ۶۰% سهم و یک سازنده با ۴۰% سهم، بعلاوه یک لیست متریال سفت و سخت! علاوه بر قوانین و ضوابط شهری حاکم) سطح اشغال، محل ساخت مجاز، تراکم مجاز، زون قرارگیری جعبه پله منطبق بر قوانین آتشنشانی و …( و منطق سرمایه محور بازار املاک و اقتصاد، قرارداد مشارکت دستورالعمل گریزناپذیر این پروژه روتین شهری بود! طبق قرارداد طبقات به واحدهای شرقی و غربی با مرز مشخص در حد دسیمتر مربع منطبق بر سهم هر فرد تقسیم شده بودند. ساکنین آتی واحدهای شرقی مالکین به ترتیب طبقات معین سکونت قدیم و واحدهای غربی متعلق به سازنده بود.
ببین دیازپام ده خوراندهاند خلق را
ببین چگونه کردهاند مُد، ریای دلق را
ببین چگونه بشکنند جای شیشه طلق را
ببین چگونه پول میدهیم، نفت و آب و برق را
ببین احاطه کرده است عدد، فکر خلق را
عدد عدد عدد عدد عدد عدد عدد بده
عدد عدد عدد عدد عدد عدد عدد بده
عدد عدد عدد عدد عدد عدد عدد بده
عدد عدد عدد عدد عدد عدد عدد بده
اینبار ما به عنوان معمار در تلاش بودیم کیفیت معماری که در این دست پروژهها به دلیل تصور کاهش سود سازنده، فراموش شدهاند را بدون تحمیل هزینه مازاد ارتقا دهیم. نوعی تلاش برای وارد کردن نقش معمار در معاملات پرتعداد مالکین و سازندگان! سعی کردیم فراتر از متریال )که مشخص بود( و فراتر از تنوع تقسیمات پلانها ) با وجود اعداد سهمی معین و رقابت شخصی مالکین با هم( با راهکارهایی معمارانه، تجربی و صنعتی در خلق و تجربه فضا از یک سو و فنآوری جزئیات خود ساخت بجای تکنولوژی و مصالح وارداتی از سوی دیگر، کیفیت فضاهای زندگی را بالا ببریم.
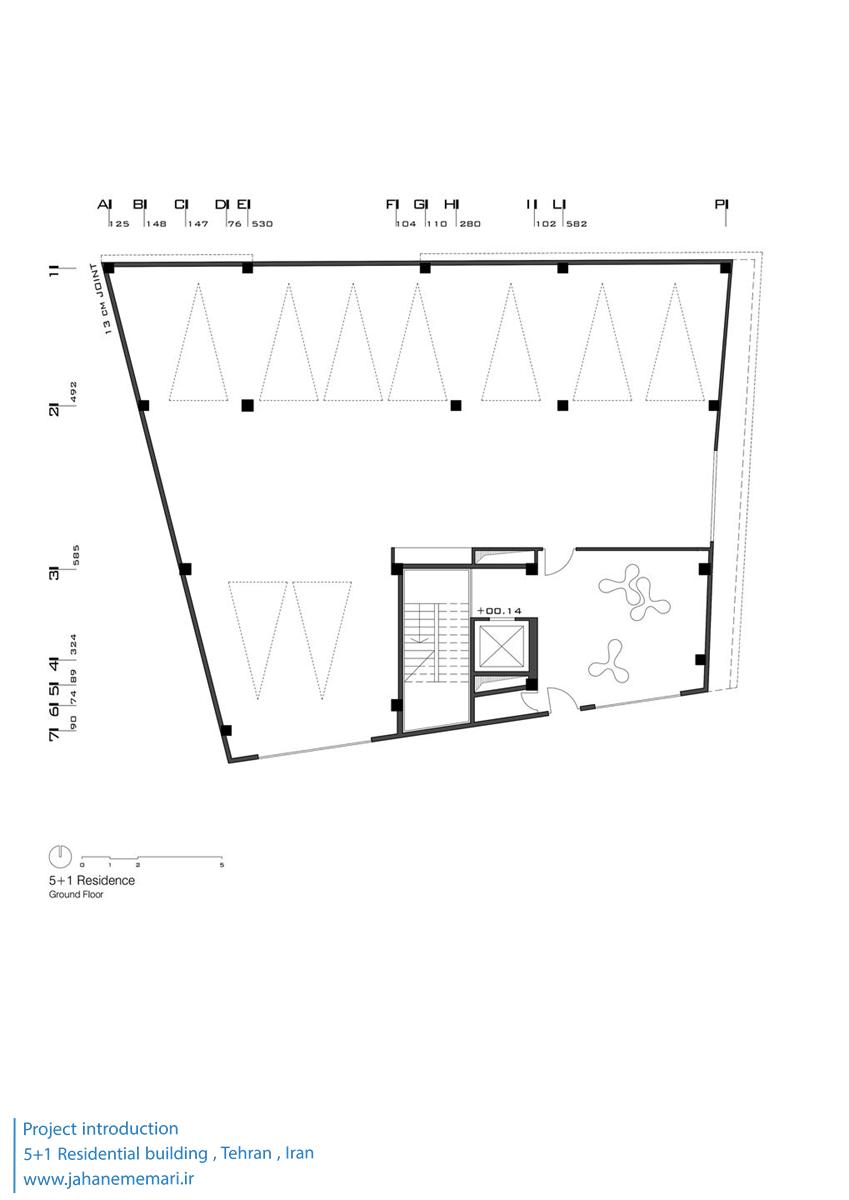
صورت مساله پنج بعلاوه یک سایت پروژه زمینی است از ضلع شرق همجوار با گذر دوازده متری، از سمت شمال مجاور حیاط همسایههای شمالی، از غرب دسترسی به کوچه چهار متری پشتی بعلاوه بنای قدیمی و از جنوب مجاور نه قطعه ناهمگون قدیمی بیسند و وقفی با عرضهای سه تا چهار متر و تعداد طبقات متفاوت، میباشد. با توجه به ضوابط شهری قرارگیری کالبد بنا، امکان نورگیری از اضلاع شرق و جنوب امکانپذیر بود. ضلع شرق رو به بلوکهای تعاونیساز ناجا و ضلع جنوب همسایگان همیشگی خردمقیاس که در هر دو صورت مجاورت با ساختمانهای نازیبا که دید همه طبقات در ترازهای متفاوت به سمت آنها بود کیفیت ارتباط با محیط پیرامون از داخل را کاهش میدادند.
نتوانستیم چشممان را بر این بد منظر ببندیم. تصمیم گرفتیم چشماندازی برای پروژهای که هیچ منظری نداشت خلق کنیم، چه از درون و چه از بیرون! ایدههای از پیش تجربه شده همچون نقاشی برروی جداره روبرو، تعریف پوستهای با بافت و نقش و متریال و … به نظر ناکارآمد و تزئینی میآمدند. از سویی دیگر خانه در مفهوم کهن خود ترکیبی از بنا و باغ بود، با گذشت زمان و رفته رفته باغها جای خود را به باغچه های حیاطها و از آن پس به باکسهای گل در تراسها دادند که چندی بعد در اثر بیتوجهی و آبیاری نامنظم خشک شده و این بستههای خاک در تراسها تنها فضا اشغال کردند. فکر کردیم برای احیای این مفهوم دورافتاده و تقویت حس تعلق در خانه، استفاده از فضای سبز را دستاویز مساله پروژه “پنج بعلاوه یک” قرار دهیم.
یک صفحه سبز، فیلتر سبز، پرده سبز یا همان نمای سبز که از بیرون و درون هر دو چشمانداز را احیا کند. یک سطح سبز با استفاده از گیاهان سازگار با اقلیم شهر تهران با تمام جزئیات دقیق و فکر شده مدیریت و استفاده مجدد آب، باکسهای دوپوسته برای محافظت از ریشه گیاه و کابلهای عایقدار جهت محافظت از ساقهها ایجاد کردیم. دیواری که ضمن داشتن سبزینگی مطبوع به واسطه فضاهای پر و خالی، بد منظره جنوبی را خارج از عمق میدان و بصورت محو در پسزمینه قرار میدهد و بدین ترتیب اصلاح مطلوب مساله پروژه از درون و بیرون حاصل میشود!
در واقع این صفحه سبز دیدهای ناخوشایند به ساختمانهای نامتجانس همسایه را فیلتر کرده و حتی در فصلهایی از سال امکان عدم استفاده از پرده را به ساکنین میدهد. با کمک این صفحه سبز ما این بدمنظر را مسدود نکردیم، با نقاشی نپوشاندیم و نسبت به آن جهتگیری نداشتیم، تنها آن را به پس زمینه منتقل کردیم و از وضوح دیداری خارج کردیم.
نور جنوبی بناها در تهران در تابستان احتیاج به کنترل دارد. این صفحه سبز به استفادهکنندگان از فضا امکان کنترل نور داخل ساختمان را به فراخور فصول مختلف میدهد. تابستان با عمودی شدن خورشید انعکاس نور از لابلای برگهای سبز که در متراکمترین حالت خود قرار دارند، روشنایی طبیعی خوشایندی در فضای داخلی فراهم میکنند. در زمستان با متمایل شدن اشعه خورشید و برگریزی گیاهان امکان ورود این نور مطلوب فراهم میشود. همچنین این صفحه سبز باعث کاهش دمای مرز خارجی ساختمان و به تبع آن پایین آمدن تبادل حرارتی در فصول گرم شده و در نتیجه انرژی جهت کنترل دما را کاهش میدهد.
همواره ثابت بودن و بدون تغییر بودن نمای ساختمانها تبدیل به عادت روزمره گردیده است. طراحی نماها با استراتژی کنتیک و با باز و بسته شدن یک پترن بر روی نما یک پاسخ است. اما پاسخ ما تعریف یک ارگانیزم کاملا زنده و پویا روی جداره است. نمایی که با گذشت زمان سبزتر و پربارتر میشود و حس رشد را تداعی میکند و الگویی زنده برای محیط تعریف میکند. همچنین کنش و پویایی این صحنه با تغییر فصول نیز به ظاهر ساختمان تنوع میبخشد. سبز بهار، سبز تابستان، نارنجی پاییز و باغ بیبرگی زمستان.
تعریف صفحه یکپارچه و مدولار سبز موجب یکپارچگی و تمامیت بیشتر پروژه شده و همچون پردهای جزئیات غیر ضروری داخل تراسها را میپوشاند.
پوشش ساختمان یکی از ابتداییترین عناصر معماری است. این پوشش علاوه بر نقش محیطی به شکل ابزاری برای بازنمایی عمل میکند و محدوده و مرز، لبه و محوطه و نقاط مشترک را شکل میدهد. تراکم ساختمانهای شهری بخصوص در تهران در کنار استفاده حداکثری سطح اشغال سبب شده است این پوشش به موضوع و موضع نما تبدیل شود. حجم به دو صفحه پشت و رو تقلیل یافته و طرح معماران به کمپوزیسیون صفحات تخت یا احجام خرد و یا ترکیبی از هر دو، نقاشیوار محدود شده است. برای ما اما این موضوع و موضع، اتصال دهنده درون به بیرون و متاثر از پیرامون جهت بازنمایی ایده “کل تمامیت یافته” بجای ترکیب فرم، متریال ، پترن ، کمپوزیسیون و … است. با توجه به قرارگیری بنای “پنج بعلاوه یک” و عدم پیوستگی از سه جبهه، تعریف حضور مادی کل واحد خالص Wholeness معنادار شد. مکعب صامت سنگی )متریال فیکس شده قرارداد مشارکتی( که عمدتا نماد معماری کلاسیک است با حداکثر سطح اشغال )بازار املاک و اقتصاد( با بیانی نو، در سه جبهه در خدمت تعریف معماری وحدت یافته، واقعگرا و غیر شکلی ما قرار گرفت. برای تاکید حضور تمامیت یافته Presence ، بنا بر روی جدارهای صامتتر طبقه همکف، روی زمین نشست و جهت درک این کلیت و وحدت بصری حتی بازشوها )دربهای ورودی، پارکینگ، پنجرهها و …( تعریف بصری مشخص پیدا نکرد.
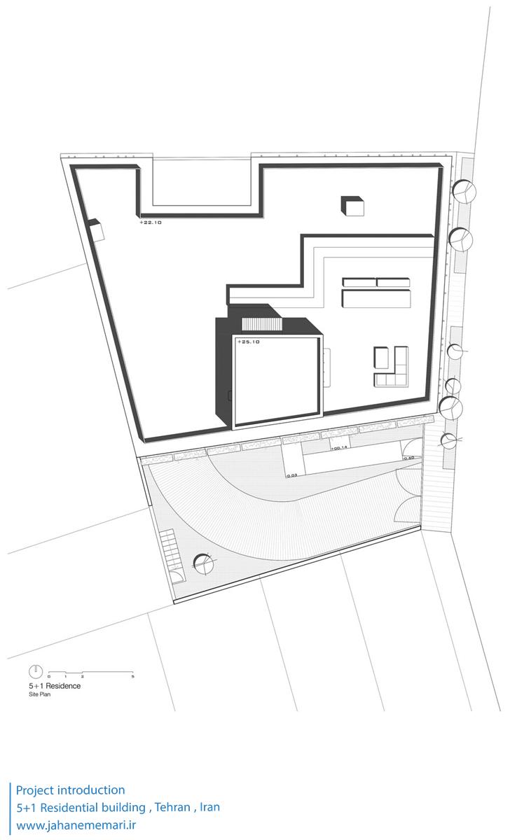
در راستای هماهنگی و ارتقای سرانه فضای سبز، این سطح سبز در سطح حیاط از یک سو و بام، به عنوان نمای پنجم از سوی دیگر امتداد یافت. به این ترتیب نوعی کیفیت باغ مسطح با نمودی معاصر و پایدار به این قطعه Iinfill شهری تزریق شد.
با عقب نشستن و افست کردن سراسری بدنه اصلی نمای جنوبی به داخل، فضای بینابینی In-between شکل گرفت که از یک سو با سطح بزرگ شیشهای از داخل خانه-آپارتمانها و از سوی دیگر با سطح سبز از فضای شهر جدا شده بود. تعریف متفاوتی از تراس و ایجاد فضایی نیمه خصوصی و نیمهباز که علاوه بر کارکردهای فنی در رسیدگی به دیوار سبز، با داشتن ارتباط حداکثری با فضای داخل و حفظ محرمیت مختص حیاطهای قدیم، برای انواع فعالیتهای جذاب تکی و دو نفره مناسب میباشد. این چنین معماری از درون و بیرون دائماً زنده است، با آدمها و گیاهان! این فضای بینابینی در عین حال رابطه بنا با شهر )بصری و ادراکی( را تلطیف کرده و باعث شده ساختمان فاقد یک مرز Threshold قطعی با محیط باشد. این فضای بینابینی با فیلتر دیواره سبز و سایبان سقفی از تابش مستقیم محافظت شدهاست و همینطور به دلیل همجواری با گیاهان دارای رطوبت و دمای مناسب نسبت به محیط است. به این صورت به عنوان یک محفظه تعدیل کننده دما و رطوبت عمل میکند.
بنابر گزارشات رسمی تعداد ازدواجهای ثبت شده سال ۹۶ نسبت به سال گذشته هشت درصد کاهش یافته است. همینطور آمار طلاق به بالاترین حد خود رسیده است. میانگین سن ازدواج افراد هر ساله افزایش پیدا میکند. گرایش افراد به ازدواج سفید بیشتر و بیشتر میشود. تعداد زوجهای متمایل به داشتن فرزند کاهش پیدا میکند و …! نتیجه ظهور طیف جدیدی از افراد جامعه است که تمایل به زندگی مستقل فردی دارند! وقتی در ایران بحث معماری خانه میشود بطور اتوماتیک طراحی با محوریت مفهوم “خانواده” در معنای کلاسیک خود مطرح میشود! قلمرویی جمعی که نقش سازماندهنده مرکزی برای قلمرو فردی را ایفا میکند! از طرفی در مواجه با این طیف نوظهور، معماری معاصر ما به نوعی از روبرو شدن با این مساله اجتماعی پرهیز کرده است! پیش فرضها و عرف طراحی خانه-آپارتمانهای ما تنها به راهکارهایی جهت جانمایی و چیدمان عملکردهای مشخص خانواده در روابط پلانی محدود شده است و نهایت خلاقیت، طراحی چند تیپ متفاوت پلانی و کلاژ آنها در طبقات است.
با نگاهی به این دسته از افراد جامعه در شیوه زندگی، روابط کاری جدید )دورکاری، کار در دنیای مجازی، کار در خانه و …(، ارتباط با دوستان و بطور کلی عملکردهای ناشناخته و منحصربفرد هر یک، بازتعریف مفهوم خانه ضروری مینماید. استراتژی ما در طرح، مخاطب قرار دادن این طیف نوظهور در جهت چالش حاصل از شناخت این بستر جدید از یک سو و نیازهای رفتاری جدید آنها از سوی دیگر بود. نتیجه، خانه-آپارتمانهایی است که در آنها مرز و فضای مشخص عملکردی محو و با ترکیب و درهم واردشدگی عملکردها از یک طرف و انعطافپذیری و قابلیت تغییر عناصر در فضا، امکان تبدیل خانه به فضای کار، فضای کار به سالن مهمانی، سالن مهمانی به نشیمن، نشیمن به کتابخانه، کتابخانه به اتاق تلویزیون و اتاق تلویزیون به… فراهم شده است. صحنهای است که هر روز چیده میشود و نوع استفاده از آن از پیش تحمیل نشده است! درست مثل خود زندگی!
جهت دسترسی به پروژه های بیشتر به این صفحه از سایت مراجعه کنید.
” تمامی حقوق مادی و معنوی محتوا متعلق به پایگاه خبری جهان معماری می باشد “