- خانه
- معرفی پروژه
- پروژه های داخلی
- خانه دو بر – علی موسوی، غزال امینی



















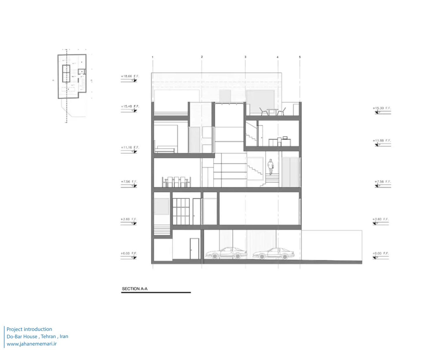
پروژه در زمینی شیبدار به مساحت تقریبی 200 متر مربع که از غرب با خیابان (خیابان اسلامی) و از جنوب با کوچه ای 10 متری همجوار است، واقع شده است. نفوذ بافت تجاری خیابان پاسداران به خیابان های اطراف باعث تغییر جداره شهری شده است. در این خیابان (خیابان اسلامی) با ساختمان هایی روبه رو می شویم که در طبقه همکفشان کاربری های تجاری با ارتفاع بلند و جداره های شفاف قرار گرفته و طبقات فوقانی آن را واحد های مسکونی تشکیل داده است. این الگو باعث تقسیم شدن جداره شهری به دو قسمت شده است؛ در حالی که الگو خانه های مسکونی محله ساختاری یکپارچه دارند.
خانه ای با فضاهای متنوع که به دنبال فاصله گرفتن از شلوغی خیابان است و از سوی دیگر باشگاهی در مجاورت با خیابان که سعی بر استفاده از این همجواری دارد، در داخل پوسته ای آجری یکپارچه شده است. در داخل خانه فضاهای متنوعی با تغییر مقطع ایجاد شده که کاربری های مختلفی را در طبقات دوم و سوم ساختمان جای داده است. فضاهای خانه با وید های عمودی داخلی و خارجی که در طبقه سوم به هم رسیده اند، به هم مرتبط شده اند. تراس هایی میان خانه و خیابان که به وید های عمودی متصل شده اند مرزی شفاف مابین فضاهای خانه و خیابان ایجاد کرده است.
جهت دسترسی به پروژه های بیشتر به این صفحه از سایت مراجعه کنید.
” تمامی حقوق مادی و معنوی محتوا متعلق به پایگاه خبری جهان معماری می باشد “