- خانه
- معرفی پروژه
- پروژه های داخلی
- خانه تک طاق – دفتر معماری آینه


















الگوى «طاق چشمه» چنان در خانههاى تاريخى نجفآباد غلبه دارد كه سيماى مواج آن غالب معابرى از شهر را بهطور كامل تحتتأثير قرار داده و هويتى بصرى و قابل اعتنا براى مدرنسازى در معمارى امروز، براى آن ساخته است. در فضاى داخلي اين خانههاى تاريخى، هر طاق عملكردهايي متنوع از نشيمن تا آشپزخانه و فضاى پذيرايي و گاه ادغامى از چند عملكرد در زير يك طاق را دربرگرفته است.
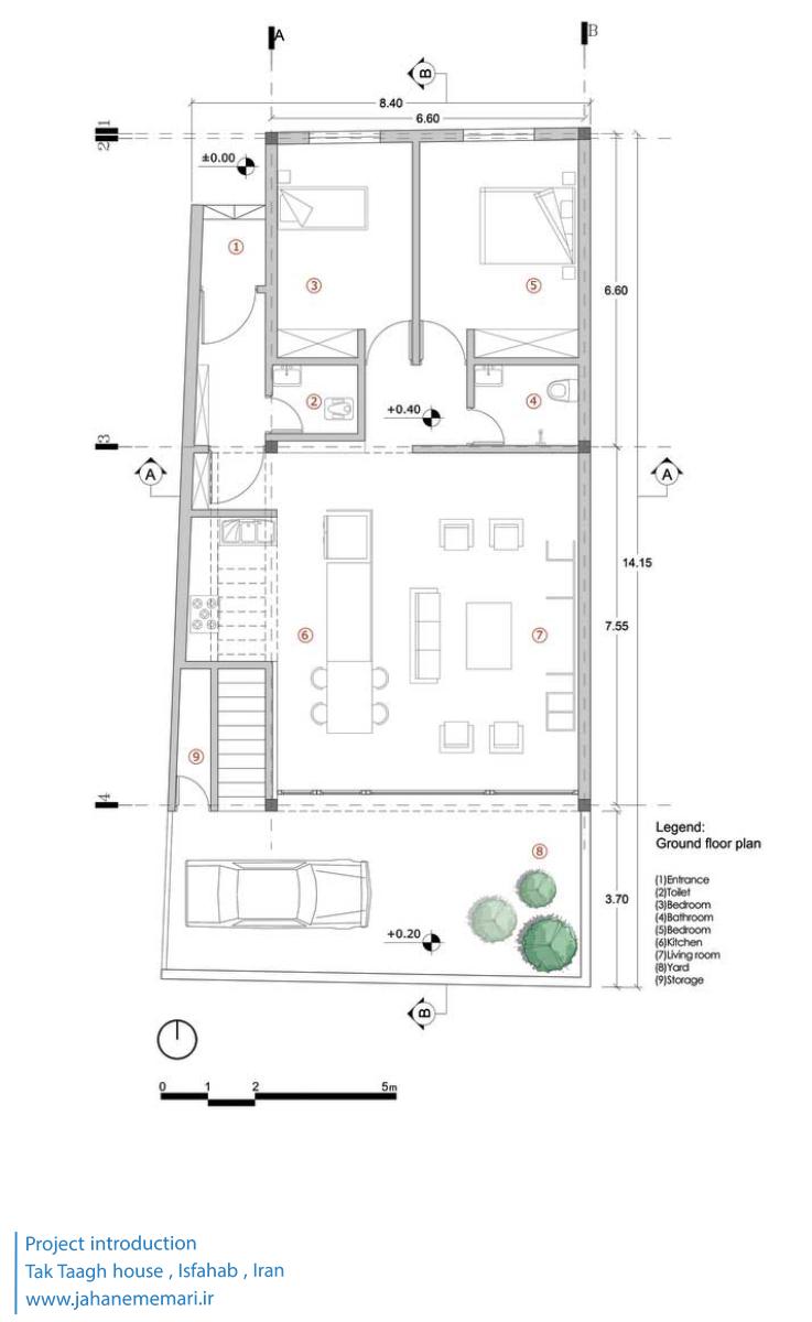
در خانۀ تكطاق، كوچك بودن ابعاد زمين و تقاضاى كارفرما براى ارزان ساختن در يك طبقه، چالشى بود كه طراح را به مدد گرفتن از الگوي تاريخى طاق چشمه واداشت. با توجه به توافق كارفرما با شهردارى و فضاهاي مورد نظر او، حدود هشتاد درصد از زمين به ساخت اختصاص يافت. پلان خانه ساده است؛ نشيمن و پذيرايي در سمت جنوب، آشپزخانۀ نوارىِ باريكى در غرب، همه در زير يك طاق. همچنين دو اتاق خواب در سمت شمال با ارتفاع كمتر، با حياطكى بر بام آن.
از آنجا كه زمين باقيمانده براى حياط جنوبى بسيار كوچك و ساختْ يك طبقه است، بخشى از بام بهعنوان فضايي زنده در امتداد حياط، در شمال زمين، نقش بازى مىكند. پلهاى در غرب ساخت و مجاور معبر، براى دسترسي به بامِ اتاقها قرار دارد. ازآنجاكه لازم بوده گوشۀ شمال غربىِ ساخت به خاطر قرارگيرى در نبش كوچه، پَخ بخورد، با عقبنشينى در آن نقطه ورودى خانه ايجاد شده است. بهاينترتيب ورودى از فاصلۀ بين بخش خصوصى و عمومى به خانه وارد مىشود.
طاق اصلى تا جايي ارتفاع گرفته كه فضاى داخلى، از سمت شمال به حياط بالا (روى بام بخش خصوصى خانه) هم ديد داشته باشد. اين حياط و پلۀ دسترسى به آن، بهواسطۀ ديوارِ مجاورِ معبرِ غربى كه قناسى زمين خانه نيز در پسِ آن حل شده، از ديد رهگذران محفوظ مانده است.
به منظور يكپارچه ساختن بدنه و سقف، تمام بنا از باريكههاى سنگ بومى اين منطقه، كه از نظر اقتصادى بهصرفه بود، پوشانده شده است. بهاينترتيب، تمام فضاهاى عمومى خانه بهطور يكپارچه در زير طاقى وسيع شكل گرفتهاند تا احساسى از دلبازى را بههمراه خاطرهاى از خانههاى تاريخى شهر به مخاطب عرضه كنند. خانههايى كه هنوز هم، مجاور اين خانه، در معابر اطراف به چشم مىخورند.
جهت دسترسی به پروژه های بیشتر به این صفحه از سایت مراجعه کنید.
” تمامی حقوق مادی و معنوی محتوا متعلق به پایگاه خبری جهان معماری می باشد “